查看完整案例

收藏

下载
小宅空间
Insight Studio
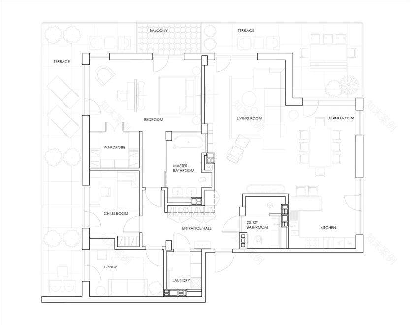
空间布局
灵感的来源是空间本身和住宅区,公寓周围环绕着宽敞的露台,透过全景玻璃可以看到美丽的森林景色和充足的阳光。因此,决定保持空间的宽敞和明亮,一个宽敞而壮观的空间,以开放的混凝土表面和暴露的工程系统的形式展示。
客厅的开放空间,与厨房和餐厅结合在一起。
为了不让室内超载,设计师以白色墙壁为基础,作为艺术品、极简装饰和光线的背景。
电视区优雅时尚的搁架单元强调了3.5米高的天花板和垂直节奏。
浮动镜子反射来自客厅的自然光,让黑暗的空间充满光线。一个悬挂式建筑立方体形式的大衣柜撞入客厅,营造出一种单一空间的感觉。
卧室对于业主来说是一个非常重要的空间,与公共区域一样,按照单一体量的原则进行规划。一方面,它毗邻豪华浴室,与床之间由玻璃隔断隔开。第二个隔断采用镂空设计,分隔了更衣区,其中包括一个单独的存放衣服的房间、一个梳妆台区域和一个休息室。
设计师为身为心理学家的业主打造了一间独立的办公室——一间舒适而明亮的房间,柜子家具和明亮的绘画形成了鲜明的对比。
与其他房间一样,从办公室可通往露台,可以在温暖的季节放松身心,欣赏美丽的风景。
客服
消息
收藏
下载
最近


























