查看完整案例


收藏

下载
本期的家,只需要考虑两个人的习惯和喜好,相同职业让这对小情侣保持着同样的生活步调——可让两人都舒适办公的宽敞书房,是他们的一致需求。
想要简约明亮又温馨不单调,想要不动声色的增加收纳又不显厚重拥堵,在千变万化的可能性中,用设计去寻找最合适的一种。
精装房总是拥有着不合心意的原始基调,这时候就需要用设计去完善功能、提升美感。
一些细微的调整,让家更好住:
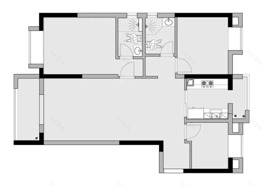
▣ 原始平面图
Original Plan
01
结构
进门空间不够开阔
且存在大门对卫生间门的问题
地面原始拼花也不够美观
02
材质
原始的门和柜门偏老气
需对材质、造型、颜色
进行重新设计
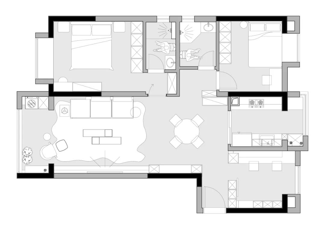
改造后
▣
平面方案 Design Flat Plan
◍入口处房间化身开放式书房,沿墙生长而出的长条书桌轻松容纳两人办公,公区储物量UP,扩宽视野;
◍储物柜+端景台,巧妙化解大门看到卫生间的尴尬;
◍更换原本房门、柜门、地砖,小的材质造型调整换来家的崭新面貌。
INFO
项目地址︱碧桂园十里春风
设计类型︱精装改造
项目面积︱120㎡
设计风格︱现代ins风
项目设计︱武汉咫尺空间设计
将外界的嘈杂拒之门外,理性而克制的家,没有一丝浓烈的色彩,却有着它独特的格调。入户之后会不自觉被尽头处的端景吸引着前进,转而被一盏光泽感极强的金属吊灯抓住目光,看向更宽阔的横厅。
刚柔并济在这里体现的淋漓尽致,大面积的背景墙有着硬朗的直线分隔,这很好的让通往主卧的隐框门藏在墙体之中;柔和的居家氛围也是需要的,于是圆润优美的曲线从顶到地贯穿餐厅,让人放松很多。
地面材质提示着功能分区,深色木地板界定出办公区域,结合黑色百叶帘,轻松get沉浸式居家办公体验,特意留出的空隙、趣味造型的落地灯都给这种体验加分。
天然材质的使用,给清冷白色系蒙上一层自然质朴的柔和滤镜。餐边柜的加入让小物件能很好的进行摆放、收纳,随着更多细节的填充而变得更有生活气息。
- 2022年 -
2022阿里巴巴每平每屋设计挑战赛top300
2021-2022年广州芒果奖全国TOP100:云梦台
2021-2022年第九届立邦“未来之星”青年设计师TOP30
2021-2022年上海国际设计周新锐设计奖:W小姐的家
2021-2022年第一届阿里巴巴寻找国民好设计TOP30
2022年-2023年上海国际设计周新锐设计奖
2022-2023年城市设计星南区50强
金堂奖2022年度杰出作品奖:W小姐的家
2022年度金堂奖【湖北十佳设计师】
2022-2023年上海国际设计周新锐设计奖(年度城际榜)
WYFD2022年度(大中华区)100大杰出设计青年
2022年金岸奖 全国优胜奖
- 2021年 -
2021金堂奖-优秀住宅公寓空间设计奖
2021我要去米兰-中国设计力青年榜武汉Top10
2021金住奖-中国(武汉)十大居住空间设计师
2021-40UNDRE40中国(武汉)设计杰出青年
2021芒果奖-中国住宅优胜奖
2021未来空间智装营-未来空间智装师Top10
2021上海国际设计周-新锐设计奖城际榜
2021第九届‘未来之星’青年设计师全国三十强
2021第九届立邦“未来之星”青年设计师大赛全国三十强(住宅组)
- 2020年 -
2020芒果奖-中国住宅优胜奖
2020-40UNDRE40中国(武汉)设计杰出青年
红棉中国设计奖-2020室内设计奖
好好住-2020营造家华北赛区Top100
她设计奖-2020年度优秀软装设计奖、
2020“自然 共生”G+设计精英大赛全国Top100
M+中国高端室内设计2020武汉“头号设计师”
2020PCHOUSE AWRED全国BEST100杰出设计机构
2020设计本最佳软装搭配、最佳别墅/豪宅空间奖
客服
消息
收藏
下载
最近












