查看完整案例

收藏

下载
架构师提供的文本描述。这座房子位于巴伦西亚附近的一个村庄,在一个狭小的地块上,有860米长的立面和15米长的深度,道路两侧各有5米长的深度,以创建主花园和后花园。
Text description provided by the architects. The house is located in a village near Valencia on a narrow plot with 8,60m long facade and 15m long depth and another 5m long depth each side on the road to create main and back gardens.
© Germán Cabo Arnal
(C)格曼·卡波·阿纳尔
产生这个项目的主要思想是一个内部庭院来组织房子的每一层。
The main idea which generates the project is an internal courtyard that organizes each floor of the house.
© Germán Cabo Arnal
(C)格曼·卡波·阿纳尔
庭院将底层的白天空间分隔开来,强调从一个立面到另一个立面的观点。它还选择楼梯的位置,就像你总是意识到庭院的景色和楼梯使用时与天空的关系一样。
The courtyard divides the diurnal space of the ground floor and emphasizes the views from one facade to other. It also selects the position of the staircase in the way that you are always conscious of the views of the courtyard and the relationship with the sky when the stairs are used.
© Germán Cabo Arnal
(C)格曼·卡波·阿纳尔
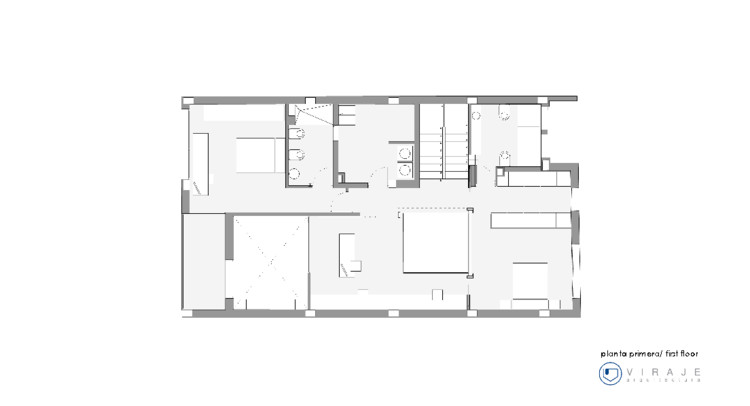
在一楼,庭院安排主房间。几扇推拉门关在墙里。当它们被关闭时,院子周围的开放空间就会被细分。主卧室、工作室和走廊可以是一个或几个空间。
On first floor, the courtyard organizes the main rooms. Several sliding doors close are hided inside the walls. When they get closed, the opened space surrounding the courtyard becomes subdivided. Main bedroom, studio and corridor could be one or several spaces.
© Germán Cabo Arnal
(C)格曼·卡波·阿纳尔
同样的事情发生在地下室,但这里的院子不是玻璃的。它变成了一个储存元素,把空间分成健身房和休闲场所。
Same thing happens on the basement, but here the courtyard isn’t a glassed one. It becomes into a storage element that divides the space into a gym and a place for leisure.
First Floor Plan
一层平面图
客服
消息
收藏
下载
最近
























