查看完整案例

收藏

下载
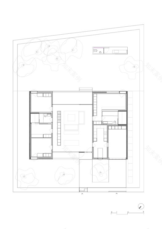
架构师提供的文本描述。该项目的起点有两种明显的情况:一方面,地块位于尚未巩固的郊区殖民地,在Villarcayo郊区,没有任何重大价值,只有很少的法律约束,这与目前标准的实现有关,这些标准主要确定了高度、适宜建造和挫折。另一方面,业主,一个与当代建筑相认同的年轻家庭,他们定义了两个问题:一栋只有一层楼的房子是必须的,这样才能最大限度地扩大他与花园的关系,而这个项目必须在有限的预算范围内明确无误。因此,该建议应比其他前提更符合业主所要求的“乐观”和“优化”,假设这些是出发点,即“真正的背景”。这个程序比较常见,是由客户准确地定义的,它基本上分为两类:一方面是一个大客厅和露台,可以直接进入花园,另一方面是最私密的空间的定义,附设在一个主卧室内,除了两个卧室外,还有一个浴室,另一个浴室和一个空间,供他们的孩子学习和玩游戏,此外,厨房和车库。同时,地块面积小,地势平坦,基本呈长方形,单面可通街道,南北方向与对角线重合,不存在任何其他显著的物理环境特征。
Text description provided by the architects. The starting point of the project answers to two clear situations: in one hand the plot is located in a suburban colony not yet consolidated, in the outskirts of Villarcayo, which does not have any significant value and with very few constraints but legal ones, linked to the accomplishment of the current standards, which mainly defined the heights, suitability for building and setbacks. And in the other hand, the owners, a young family identified with the contemporary architecture, they defined two questions: a house with just ground floor was a requirement in order to maximize his relationship with the garden and the project had to be unequivocally within a limited budget. Hence, the proposal, should answer, over other premises, to the “optimism” and to the “optimization” which were demanded by the owners, supposing those as the starting point, its “real context”. The program, relatively common, was defined with accuracy by the clients, it was divided basically in two categories: in one hand, a big sitting room and terrace with direct access to the garden and in the other hand, the definition of the most privates spaces, annexed, consisting in a main bedroom incorporating a bathroom, besides two bedrooms, another bathroom and a space for their children to study and play games, additionally kitchen and garage. At the same time, the plot, with a small size, topographically flat, with a substantially rectangular shape and with a single side having access to the street, the orientation north-south coincided with the diagonal, it does not exist any other remarkable characteristics of the physical environment.
© Pedro Pegenaute
佩德罗·佩佩诺特
该项目符合客户的条件和口味,它期望解决一个现代空间,即家用集装箱,利用与自己的室外空间的密切关系所提供的乐趣,并在单一楼层的水平上提供便利。简言之,该项目寻求在这些空间之间建立适当的当代伙伴关系,将其作为单一家庭生活方式与不同类型的生活方式的内在联系。由于地块和住宅有限,这项建议界定了一所住宅,把整幅土地扩展为“居住空间”,周围有植被,四周种植的植物会不断生长,直至成为家庭生活的极限,并有一个更大、更开放的家园的想法。
The project is aligned with the conditions and the taste of the customer, it expected the resolution of a modern space, domestic container, taking advantage of the pleasure provided by the close relationship with an own outdoor space and facilitated by the horizontal of a single floor. In short, the project seeks an adequate contemporary partnership between those spaces as something intrinsic to the way of life in a single family home versus different typologies. The proposal, due to the limited plot and dwelling, defines a home which is expanded incorporating the whole plot to the “living space”, surrounded by vegetation, which planted around the perimeter will grow until becoming the limit of the family life with the idea of making a bigger and open home.
© Pedro Pegenaute
佩德罗·佩佩诺特
房子的体积有一个紧凑的发展,以这样的方式保证一个调整的建议。该项目的定义是一个“无各向同性”的组织,以寻求一种在两个方向上都有其自身差异的情况。一方面,在调整地块的两侧盲目,在这个意义上消除了房子拒绝最近住宅的存在的限制,并保持正前方的开放,将花园划分为两个不同性质的空间,以直接的方式利用太阳。该提案显示出该项目的组织非常清晰,几乎是综合性的,可以将其定义为一种方案:最私人的空间在整个过程中都被安置在靠近混凝土的盲边,在这两者之间腾出空间,成为通往花园的开放式“生活”,受到门廊过滤器的保护,并寻求东西的方向和与它们的密切关系。有了这种“中心”配置的主空间,“生活”,就被明确地作为一个聚会场所来建立熟悉的关系,在这里,所有的空间都与花园和房子相遇。定义了更私人的辅助区域,有明确的痕迹、紧凑的限制和压缩到最低限度,使尽可能多的公共空间,将整体翻译成一个简单而自由的当代造型,符合业主的要求。特别要提到的是浴室:它们被庭院穿过,带来了它们的基本需求,并为全球范围带来了额外的复杂性。
The volume of the house has a compact development, assuring in such manner an adjusted proposal. The project is defined with a “no isotropic” organization seeking a situation which make its own difference in both directions. In one hand, blind on the sides where the plot is adjusted eliminating in this sense the limit of the house rejecting the presence of the nearest dwellings and keeping open both front sides, hierarchizing and qualifying the garden in two spaces of different character which allow in a direct way, to take advantage of the sun. The proposal shows a very clear organization of the program, almost synthetic, allowing to define as a scheme: the most private spaces are accommodated close to both blind concrete sides all along its length, making free the space in between, as an open “living” to the gardens, protected by the filter of the porch and seeking the orientation East_West and the close relationship with them. With this “central” disposition of the main space, the “living”, is assured unequivocally as a meeting place to build familiar relationship, where all the spaces of the house and garden met. The more private auxiliary areas are defined, with clear trace, with compact limits and compressed to the minimum, to make available as communal as much space as possible, translating the whole in a simple and free volume of contemporary figuration which suited with coherence to the requirements of the owners. Special mention require the bathrooms: they are crossed by courtyards bringing their basic needs and providing this extra of complexity to the global volume.
© Pedro Pegenaute
佩德罗·佩佩诺特
我们定义了两种不同类型的空间;一方面,中央空间的空间被收回并在深度上获胜,将门廊定义为适合居住的空间,使人们能够对户外空间进行深邃而谨慎的浏览。另一方面,那些在辅助空间的紧凑型限制上练习的,以“个体化”的特征解决,散落在壁面上,并练习到那些木板图案上仍然粘着的百叶窗,作为不干扰整体体积纯度的材料公式。中部地区的不同空间,部分建筑没有木工,在几种情况和角度下,很难注意到内部和外部之间的接缝,以这种方式肯定是直接捆绑在一起的。
Two different types of spaces are defined; in one hand, those of the central space, which are retracted and winning in depth, defining the porch as habitable spaces which allow this glance, deep but discreet, of the outdoor space. In the other hand, those which are practiced on the compact limits of the auxiliary spaces, solved with “individual” character, scattered on the parquetted surface and practiced to the shutters remaining agglutinated at the pattern of those wooden panels, as material formula to not disturb the purity of the global volume. The different spaces of the central area, partially built without carpentry, make in several situations and perspectives, difficult to notice the seam between interior and exterior, remaining in that manner definitely tied in a direct way.
© Pedro Pegenaute
佩德罗·佩佩诺特
房子漂浮,它似乎是豁免遵循三条准则。实际情况:这块地块是在洪水泛滥的地区,几乎没有殖民,因为它被建议把房子抬高。空间:高度差异允许愉快的主导观点从内部到花园,与无数的现代建筑参考。概念上:精确的卷把场地的所有权作为一个展馆,出现在花园上,希望揭示它与居住在被接受的空间上的人们之间的关系,概括地指出这个悖论-它的“真实背景”。
The house floats, it seems to be exempt following three guidelines. The physical: the plot is on a flooding area and with very little colonization, because of that it was advised to elevate the house. The spatial: the height difference allowed the pleasant dominant perspective from the interior to the garden, with innumerable references of the modern architecture. And the conceptual: the precise volume takes the ownership of the site as a pavilion, appears put on the garden, wishing to reveal its relationship with the people who lives over the space which is accepted, in summary identifying this paradox its “real context”.
© Pedro Pegenaute
佩德罗·佩佩诺特
确定体积的材料,混凝土和木材,被扩展到符合国内条件的内部,提供了以温暖的一面为特征的自然舒适,但同时又使材料干燥。材料的连续性和这些元素的质感改变了人们对空间的感知,改变了生活在单一体验中的事实,使之远离大众,与假装拥有的生活类型相一致。建设性地,将全球体积定义为一种手段的混凝土被纳入室内,将地板和天花板的平面定义为最低限度的行使,从项目的起源开始,就把简单和连贯与形式简单的味道联系在一起。中央空间的家具作为建筑的一部分被改造成隔膜,引导着卧室的隐私,同时允许把生活空间延伸到私人的极限。最后,仔细研究照明,定义不同的场景,以避免干扰空间的纯净。同样的方式,体积和花园是以同样的标准激发的。
The materials which define the volume, concrete and wood, are extended to the interior qualifying the domestic conditions, providing them with a natural comfort characterized by the warm aspect but at the same time dry of the materials. The continuity of the material and the texture of those elements change the perception of the spaces and transform the fact of living in a singular experience, keeping far of the popular and according with the type of live which pretended the ownership. Constructively, the concrete which defines the global volume, as an artifice, is incorporated in the interior defining the plane of floor and ceiling as exercise of minimums, with simplicity and coherence followed from the origin of the project being identified with the taste of the formal simplicity. The furniture of the central space, being incorporated to the architecture is transformed as part of it, works as diaphragm which guides the way to the privacy of the bedrooms and at the same time allows stretching the living space until the limits of the private. Finally, the careful study of the lighting, defines different scenographies, being designed to not disturb the purity of the space. In the same manner, the volume and the garden are inspired with the same criteria.
客服
消息
收藏
下载
最近













