查看完整案例

收藏

下载
架构师提供的文本描述。这一项目涉及到墨尔本武马代尔黄金外壳烘焙厂的大规模重修。保留了原有的建筑结构,并制定了广泛的内部方案,其中涉及到建筑物的工业历史。插入了一座新的桥梁,连接了两座主要建筑,在分隔的空间之间提供了一种社会联系。
Text description provided by the architects. This project involved an extensive re-furbishment of the Golden Crust Bakery in Armadale Melbourne. The original building fabric was retained and an extensive interior scheme was developed which engaged with the industrial history of the building. A new bridge was inserted which connected the two primary buildings providing a social connection between separated spaces.
© Shannon McGrath
C.Shannon McGrath
该项目于2006年开始,作为一个住宅仓库,适合前黄金外壳面包店在武装。在其最近的生活中,黄金外壳面包店遭受了模拟的法国省级改造,这是不符合原来的建筑。这座建筑物的情况严重恶化,虽然据认为有可能满足我们的客户要求,但拆除的可能性是一个严肃的考虑因素,因为该建筑物没有受到任何遗产覆盖的保护。
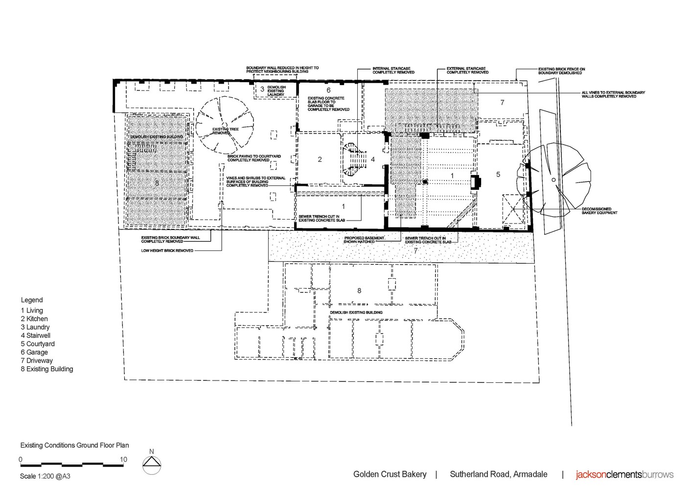
This project commenced in 2006 as a residential warehouse fit-out of the former Golden Crust Bakery in Armadale. In its more recent life the Golden Crust Bakery had suffered from a mock French provincial make over that was incongruous with the original architecture. The building was in a state of serious deterioration and whilst it was perceived to have potential to meet our clients brief, the possibility of demolition was a serious consideration on the basis that the building was not protected by any heritage overlays.
© Shannon McGrath
C.Shannon McGrath
虽然我们的客户因其朴素的特色而被吸引,但他们最主要的吸引力是有可能满足他们庞大的家庭住宿要求,其中包括四名十多岁的儿童(来自前一次婚姻)、两名最近的子女以及祖父母(居住在海外)的定期探视。某种“布雷迪一群”。
Whilst our clients were attracted to the building because of its modest character, their primary attraction was the potential to address their expansive family accommodation requirements which included four children in their late teens (from a prior marriage), two recent children and regular visits from grandparents (who reside overseas). A “Brady Bunch” of sorts.
© Shannon McGrath
C.Shannon McGrath
客户们很早就决定保留面包店,它在街景上受到了周围邻居的高度评价。该项目是根据客户和建筑师之间的共同理解进行的,即该建筑将重新焕发活力,仔细注意适当的细节,这将既保留并增强其半工业吸引力,客户对维护和改进现有结构的坚定承诺为该项目的最终成功奠定了基础。
The clients made an early decision to commit to retaining the Bakery which was highly valued in the streetscape by the surrounding neighbours. The project was approached on the common understanding between client and architect that the building would be re-invigorated with careful attention to appropriate detailing which would both preserve and enhance its semi-industrial appeal. The client’s uncompromised commitment to the preservation and enhancement of the existing fabric provided the foundation for the project’s ultimate success.
© Shannon McGrath
C.Shannon McGrath
该项目的简要说明相当直截了当,然而,在一个大家庭中,将分离和社会融合结合起来的要求往往是复杂的。作为回应,这份简报被浓缩成四个基本区域:
The brief for the project was reasonably straightforward however the requirement for a combination of separation and social integration in a large family is often complex. In response, the brief was condensed into four basic zones:
© Shannon McGrath
C.Shannon McGrath
父母(一楼的主卧室宿舍和一楼的书房与生活区分开)。家庭(一个宽敞的聚会区,用于餐饮/生活和厨房区域-房子的心脏)儿童(在靠近主卧室区域的主建筑楼上)青少年(从主住宅分隔开来的前马厩大楼,包括三个儿童房、一个客房和喧闹区)。
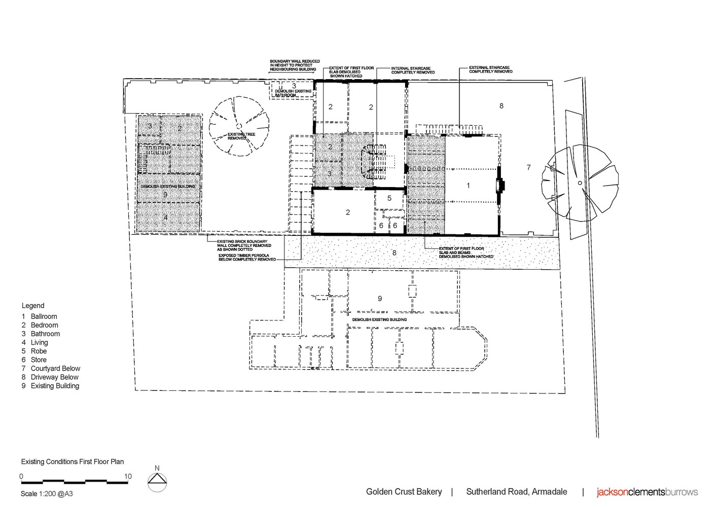
Parents (master bedroom accommodation on First floor and ground floor studies separated from Living areas). Family (an expansive congregational area for dining / living and kitchen areas – the heart of the house) Kids (upstairs in main building closer to Master Bedroom Areas) Teenagers (Rear former stables building separated from main house including three kids rooms, a guest room and rumpus area).
© Shannon McGrath
C.Shannon McGrath
与建立单独区有关的一个重要考虑因素是必须确保维持和鼓励社会融合。实现这一体化的主要手段是引入一座桥梁,将主楼一楼(幼儿)和马厩一楼(十几岁儿童)连接起来。一个令人兴奋的雕塑空间,让“小东西”直接与“大人物”…接触。在一些日子里,让人想起年轻的战士和公主手挽着手跨过拉桥进入闹鬼的城堡…。
An important consideration associated with the creation of separate zones was the need to ensure that social integration was maintained and encouraged. The primary device for achieving this integration was the introduction of a bridge which linked the first floor of the main building (young kids) and the first floor of the stables (teenage kids). An exciting sculptural space which allowed the “littlies” to directly engage with the “biggies”…..on some days, reminiscent of young warrior and princess arm in arm crossing the draw-bridge to enter the haunted castle…
© Shannon McGrath
C.Shannon McGrath
青少年儿童与主要生活区的身体隔离(通过过桥或在桥下通过有盖的户外空间提供)也决定了他们日益增强的独立感。
The physical separation of the teenage kids from the primary living areas (provided by passing over or under the bridge through covered outdoor space) also defines their growing sense of independence.
© Shannon McGrath
C.Shannon McGrath
该桥梁通过提供重要的遮阳保护,不受东、西太阳的影响,扩展了其功能。其他公共服务电子化策略包括:所有东面和西面玻璃的自动外部百叶窗、建筑遮阳装置、VRV A/C系统、太阳能热水系统、太阳能池供暖、自动电气管理和12万升地下雨水储存,用于厕所、水池和花园灌溉。
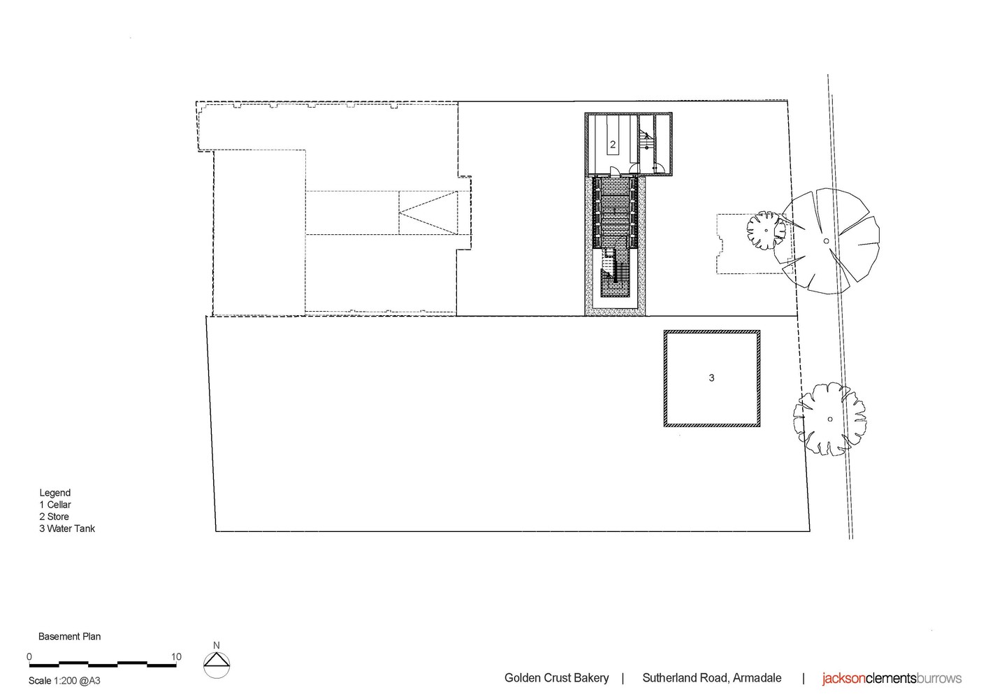
The bridge extends its function by providing important shading protection from both east and west sun. Other ESD strategies include automated external shutters to all primary east and west facing glass, architectural sun-screening devices, VRV A/C systems, solar hot water systems, solar pool heating, automated electrical management and 120,000L of underground rainwater storage for use in toilets, pool and garden irrigation.
Ground Floor Plan
客服
消息
收藏
下载
最近




























