查看完整案例

收藏

下载
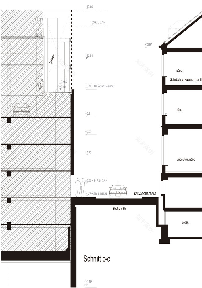
架构师提供的文本描述。对门面的评估旨在发展一种立面概念,以便计划在慕尼黑的“塞尔瓦托普拉兹”停放多层楼的加高。在重建办公室和车库的背景下,多层停车场增加了21/2层。从历史环境和位于单一纪念碑和纪念碑保护之下的库存建筑的角度来看,新立面的组织工作具有非常重要的意义。这个多层的停车场坐落在慕尼黑古镇的中间.从前中世纪的城墙和1430年的“丛林公园”的部分直接与多层停车场接壤。现有的弗兰兹哈特多层停车场(1964/65)是面向前城墙。暴露的地砖墙已被吸收和恢复。
Text description provided by the architects. The appraisal of the façade intended the development of a façade concept for the planned heightening of the multi-story can park at ‘Salvatorplatz’ in Munich. In the context of the reconstruction of an office and garage building the multi-story car park has been increased by 21/2 floors. In the view of the historical surrounding and the inventory building, which stands under single monument and under monument protection and lies in embraced of an ensemble range, the organization of the new façade has been of great importance. The multi-story car park is situated in the midst of the old town of Munich. Leaving of the former medieval city wall and parts of the ‘Jungfernturm’ of 1430 directly border the multi-story car park. The existing multi-story car park of Franz Hart (1964/65) is oriented on the former city wall. The exposed lying brick wall has been absorbed and resumed.
© Florian Holzherr
(C)FlorianHolzhe
利用计算机生成的呼气相,研制出了由镀锌钢制成的彼得·海梅尔新型钢表面结构,并给出了新的定级样品。在20000根棍子的基础上发明了一种类似网络的网络,其宽度为库存建筑物用的薄型砖,工作人员长度为1.5米。
The new steel façade structure of Peter Haimerl made of galvanized steel has been developed through computer generated expirations, which generate new order samples. A netlike network has been invented on the basis of 20 000 wands with the width of the thin formatted brick used at the inventory building and a constant staff length of 1.5 m.
© Florian Holzherr
(C)FlorianHolzhe
采用计算机控制等离子切割设备生产镀锌钢板表面,符合直接利用计算机生成的数据的思想。这意味着将草稿数据直接转换到机器生产,而不使用设计架构师的手绘。
The production of the façade of galvanized steel plates through computer-controlled plasma cut equipment corresponds to the idea of direct use of computer generated data. This means a direct transition of the draft data to machine production without the use of hand drawings of the designing architect.
© Florian Holzherr
(C)FlorianHolzhe
外墙周围的加高像一个体积和一个透明的覆盖新的停车场甲板。结构的密度由上往下降。由于结构的透明性和材料的基因稳定性,现有的Solidium仍未被触及。
The façade surrounds the heightening like a volume and a transparent covering for the new parking decks. The density of the structure decreases from down upward. As a result of the transparency of the structure and the gene constantness of the material the existing solidium remains untouched.
© Gero Wortmann
格罗·沃特曼
库存建筑是钢筋混凝土骨架建筑,以熟料砖为幌子,多层停车场的加高是钢筋混凝土复合地板的结构钢结构工程。高8.50m,宽2.50m的立面钢板固定在停放甲板的结构钢结构上。
The inventory building are buildings of reinforced concrete skeletons, disguised with clinker brick-work The heightening of the multi-story car park is a structural steel work with reinforced concrete composite floors. The steel plates of the façade with the height of 8.50m and the width of 2.50 m are fastened at the structural steelwork of the parking deck.
客服
消息
收藏
下载
最近



















