查看完整案例

收藏

下载
架构师提供的文本描述。巴达霍兹是一座中等规模的西班牙城市,位于埃斯特拉马杜拉自治区南部,毗邻葡萄牙边境。虽然梅里达是社区的首都,也是社区的旅游中心,但巴达霍兹在经济健康和一般基本服务方面是该区域最大、人口最多、可能是最相关的城市。这主要是由于它在边境附近的历史存在、商业传统(葡萄牙人过去常来这里购买焦糖)和地球物理特征,例如Gévora河(该市位于与更大的瓜迪亚纳河相连的地方)。
Text description provided by the architects. Badajoz is a medium-sized Spanish city located in the southern Estremadura autonomous community, next to the Portuguese border. Although Merida is the capital of the community and its touristic reference, Badajoz is the largest, most populated and probably the most relevant city of the region, both in terms of economic health and general basic services. This is mostly due to its historical existence near the border, commercial traditions (the Portuguese used to come here to buy caramels) and geophysical characteristics, such as the Gévora River (the city lies at the point where it connects with the larger Guadiana River).
© Daniel Schäfer
c.Daniel Sch fe
Caja Badajoz银行是这个自豪的社区的重要银行。它是镇上主要的储蓄银行,也是那些保守的居民最重要的经济代表。该项目的主要目的是通过在上述河流两岸的普恩特真正桥旁边的一块地块上建造新的银行总部,使这种非物质的重要性得到强有力的体现。在2007年的有限招标后,被选中的球队是马德里的工作室拉梅拉建筑师.
The Caja Badajoz is an important bank for this proud community. It's the main savings bank in town and it's the most relevant economic representation of the inhabitants, who are quite conservative. The main goal of this project was to give a powerful physical expression to that immaterial importance by building the new headquarters of the bank on a plot located in the banks of the aforementioned river, next to the Puente Real Bridge. After a restricted tender back in 2007, the chosen team was the Madrid-based Studio Lamela Architects.
© Daniel Schäfer
c.Daniel Sch fe
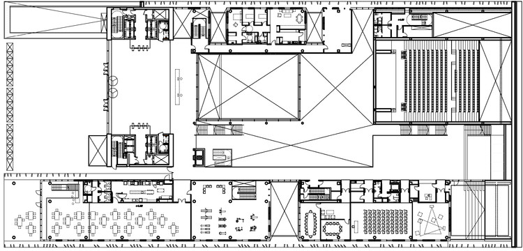
该建筑占地28,500平方米,预算3,500万欧元,显然试图通过两个不同的体积要素与大桥突出的垂直结构和大河宽度进行对话。该建筑的水平底座为正方形结构,集主大厅、展览厅、礼堂、餐厅/酒吧等所有配套功能于一身。垂直的体积-一座高出基地16层的塔楼-是公司的办公场所。
With 28,500 m2 of covered area and a budget of 35 million euros, the building clearly attempts a dialogue with the bridge's prominent vertical structure and the great width of the river by engaging two different volumetric elements. The horizontal base of the building has a square configuration and gathers all the support functions, such as the main lobby and exhibition hall, auditorium, restaurant/bar, etc. The vertical volume – a tower with sixteen floors above the base – hosts the general offices of the company.
© Daniel Schäfer
c.Daniel Sch fe
建筑物的整体形象是对强大的Estremadura太阳的直接回应。为了减轻冲击,两个正面都有一个双层表皮,里面是玻璃,外面是大的“金属”条纹:垂直塔上的是水平条纹,底座的水平体积是垂直的。室内设计的主要理念是创造透明的空间,这使得开阔的视野可以看到景观。
The overall image of the building arose as a direct answer to the powerful Estremadura sun. In order to mitigate its impact, both facades have a double skin composed of glass on the inside and large 'metallic' stripes on the outside: horizontal ones in the vertical tower and vertical ones in the horizontal volume of the base. The main idea for the interior was the creation of diaphanous spaces, which privilege the open view towards the landscape.
客服
消息
收藏
下载
最近

























