查看完整案例


收藏

下载

翻译
To improve the living quality of the campus, a new building is built with multi-functions as canteens for students and professors, lecture hall and exhibition hall for the campus, office and service hall for the Tsinghua Career Center and food storage for all the canteens at the center of the campus of Tsinghua University.
The project paid close attention to those points in design:
1. The former chaotic site with blind corner should be transformed and integrated as a convenient and complete public place for the campus.
2. The terrain of the site should be in good use for easy accessibilities in all directions. The trees and vegetation should be preserved to keep the continuity and sustainability of the environment.
3. As a public building in campus, it should be a sustainable, low cost and low energy consumption building, which means that passive strategies, local materials and appropriate construction methods are essential.
4. Architecture represents the spirits of campus and will be passed down in future. The brickwork could be designed as artwork, just like painting or sculpture, which mixes art and wall together.
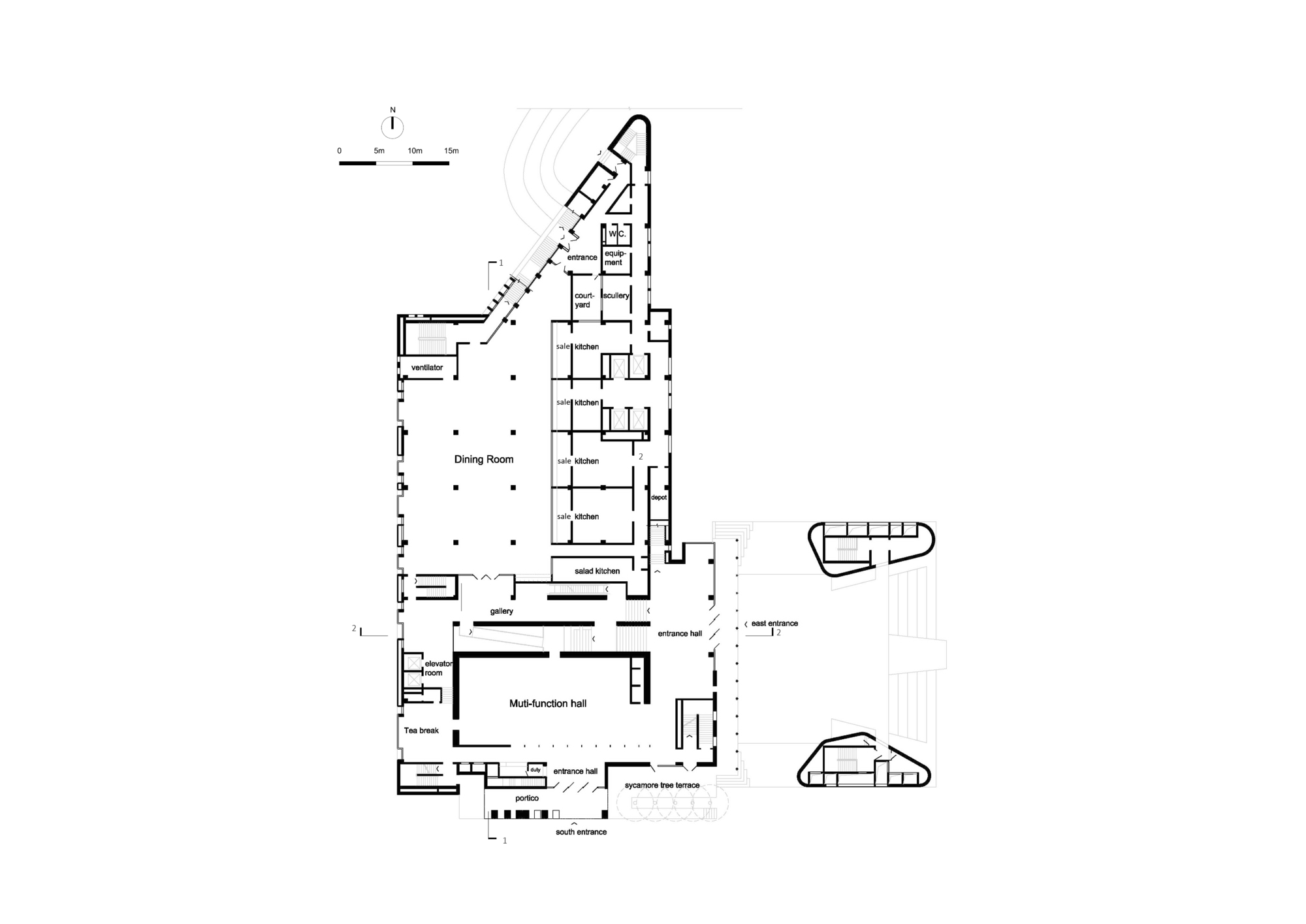
The site of project used to be a blind corner in the center of campus, with dead end road, chaotic traffic, mixed logistic and service route, unattended courtyard. All of these were mismatched with the location. The core idea of design is to repair the urban texture in the campus context, to improve the fluency of the site, to make it easy to get in for the public from all directions.
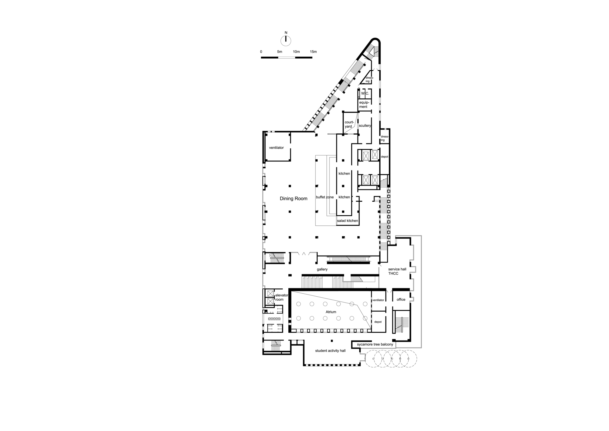
The section design takes the full advantage of the terrain of the site, creates a three-dimensional indoor street for the public, through ground floor on east and B1 floor on west. The north and south are also available as entrance. The entrance floor of the building on the one hand is functional and solid and on the other hand is a kind of cluster of open public space, which makes students possible to access and go across the building in all directions. Moreover, the entrance floor serves as shortcut and meeting places for students in the campus.
The old trees and landscape terrain in the site are preserved as much as possible. The project is built on the site of former canteen and former chaotic backyard, without occupation of the former open green space and vegetation in north and west of the site. To keep the sycamores on southeast corner alive and create more nature friendly outdoor space, the outline of the building was designed to keep at least 5 meters distance away from the trunks, and provide double-deck balcony, bay window and wooden cafe terrace for people.
Sustainable strategies, especially passive design strategies are adopted in the project to make the space more comfortable and reduce the cost and energy consumption in operation.
The building above ground is divided into two main functions: canteen and career center, which are operated independently. They are connected with a public atrium, which connects public spaces on different stories, like a traditional inner Chinese courtyard. On the top of the atrium there are seven egg-shaped skylights, which bring natural daylight to the atrium. Each of the skylights has a small window on the side frame wall above the roof, which could be opened as outlet vent for natural ventilation. The 3-story high atrium works like a stack and with all inlets and outlets open, there is a stack effect to accelerate the natural ventilation and prevent the whole space from being overheated and make the atrium more comfortable in summer. Obviously, it significantly reduces the maintain cost and energy consumption for artificial lighting and air-conditioning in operation phase.
The depth of the building is more than 40 meters, to improve the daylight and natural ventilation for the public space and offices, a roof garden with side windows is inserted to the 3rd floor. The glass curtain wall with grating, facing south, draw more sunlight to the atrium courtyard. The flat roof windows on the timber floor of the roof garden will bring natural light down to the lecture hall. Among which two raised boxes with side windows are used for low cost chimney to accelerate the natural ventilation for the hall. The roof garden can be used as open cafe or party for the campus.
The exterior brick wall is also designed with the idea of sustainability. In this project, the brick masonry walls are built not only as enclosure wall, they are also as sun-shading system and ventilation openings. The width of the gaps between bricks could gradually change from 30 mm to 100mm, to satisfy the required aperture ratio.
Bricks are constructed in more than 5 ways: in conventional way, in zigzag way, brick indented, brick overhung and brick sun-shading system. They bring various textures for exterior walls and meet different functional demands.
The brick for the sun-shading façade is using a kind of specially customized brick with two rectangular holes, every piece of which should be integrated with reinforced bar through the holes in vertical, and every 8 layers bricks will be integrated with stainless flat steel in horizontal. All the bars will be welded on the flat steel, and they will be integrated with the main structure to keep the brick sun-shading facade safe and stable. The rectangular holes are set to suit the gap between bricks, which could be changed according to the design, to meet the needs of sun- shading or ventilation, and to keep the wholeness of the brick façade.
The masonry wall, as handmade constructed wall, could be more than a mere functional element. Some brick walls are designed as pieces of art work, to emphasize the specificity of the space. Taking the wall under the east steel porch, next to the east entrance as an example, the overhung bricks are settled like a painting, the brick wall is embodied with the capitalized characters of GHUA as part of "TSINGHUA", the name of the university.
The advantage of handicraft is adopted in the project. Since the brick walls are designed like artwork, the traditional craftsmanship is prevailing.
客服
消息
收藏
下载
最近




























































