查看完整案例

收藏

下载
架构师提供的文本描述。杜亚酒店曾是一家百货公司,它占据了现有的一栋大楼,这是高雄酒店的最新亮点。无论是在加尔各答还是克林姆林宫,酒店的外观都是一样的,要想摆脱这种普遍的平庸,杜阿酒店是在考虑地域背景的情况下被概念化的。
Text description provided by the architects. Occupying an existing building which was previously a departmental store, Hotel Dua is the latest addition to the hospitality scene in Kaohsiung. Determine to break away from the pervasive banality of hotel look that appeared identical be it in Kolkata or Kremlin, Hotel Dua is conceptualized with regional context in mind.
Courtesy of Koan Design
柯安设计
最初设想为办公大楼,但后来改为部门商店在15年前的建设中,这座大楼后来被用作办公室和后来的健身房。因此,设计师还被赋予改变建筑物外观的任务,从典型的办公大楼外观转向周边窗口和复合面板幕墙。采用带有3M胶膜的铝型材立式百叶窗,提供一个统一和平静的外观。
Conceived originally as an office tower but later changed to departmental store used in the midst of construction 15 years ago, the building was subsequently used as offices and later a gymnasium. As such, the designer was also given the task to alter the façade of the building, diverting away from the typical office building block look with the bands of perimeter window and composite panel curtain wall. Vertical louvers of aluminum sections with 3M adhesive films was adopted to provide a unity and calm look for the façade.
Courtesy of Koan Design
柯安设计
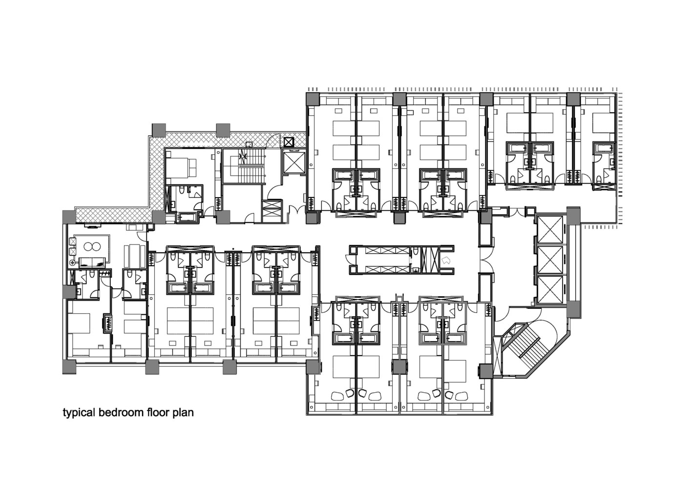
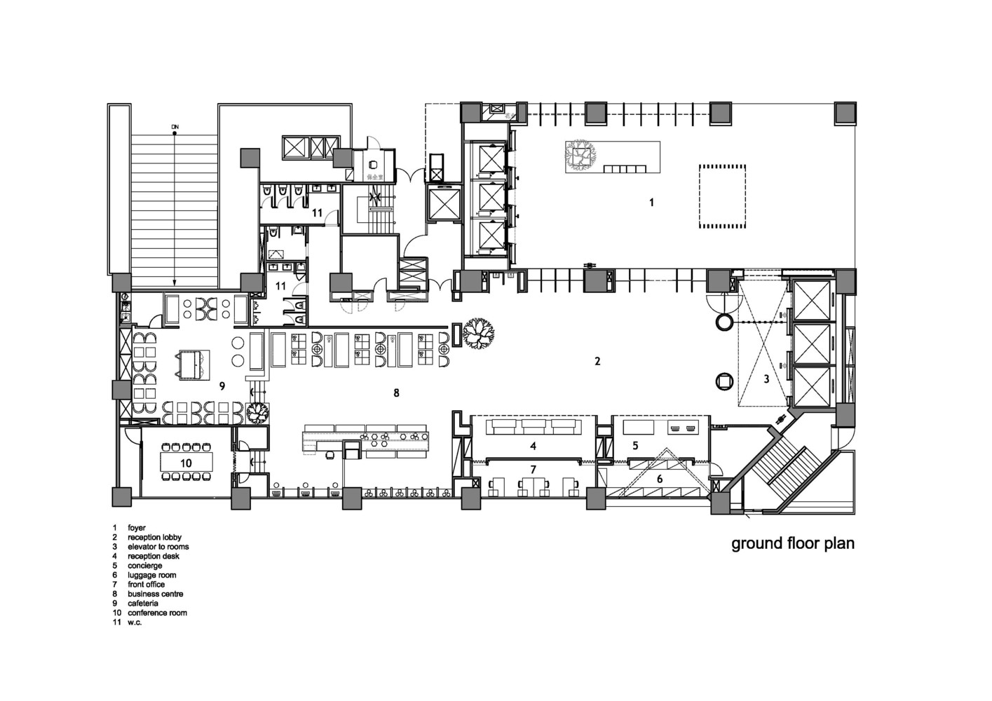
由于场地的限制,酒店没有车辆停放区.相反,一楼的很大一部分是作为半室外门厅分配的,接待室在里面退得更远。这是很好的工作,因为大堂及其独立电梯现在被用于外部客人进入楼上的餐厅,这些餐厅是公开的,而不影响酒店的内部流动。
Due to site constraint, the hotel does not have a drop-off area for vehicles. Instead, a substantial portion of the ground floor was allocated as a semi-outdoor foyer with the Reception Lobby recedes further inside. This works well as the Foyer with its independent elevators are now used for outside guest to access restaurants upstairs, which are open to public, without interfering with the internal flow of the hotel.
© Kyle Yu Photo Studio
图室
背景仅限于有限的材料调色板,主要设计意图是为室内提供一种宁静感,一个疲惫的旅行者的避难所。随着这一基调的确立,内地其他地区对此表示赞赏,并在此过程中反映了当地文化的元素。这些都可以通过使用传统元素,如编织图案(挂灯罩/金属屏风/接待大厅地毯)、中国传统水墨画(典型地板升降大厅的地毯图案)和当地花纹织物(扔枕头/台灯底座/浴室瓷砖)等来看。除了地区性的努力外,还有一两件当代经典。斯堪的纳维亚的椅子也在一些地区被引进。为什么不行?谁不爱他们?
With a backdrop restricted to limited material palette, the primary design intent is to provide the interior with a sense of serenity; a sanctuary for weary travelers. With that setting the tone, rest of the interior was complimenting it and in the process reflecting elements of local culture. These can be seen through the usage of traditional elements such as weavingpattern (hanging lamp shade/ metal screen/ reception lobby carpet), traditional Chinese ink painting (carpet pattern at typical floor Lift Lobby) and the local floral-pattern fabric (throw pillows/ table lamp base/ bathroom tiles) and etc. The effort of being regional aside, one or two pieces of contemporary classic. Scandinavian chairs were also introduced in some area. Why not? Who doesn’t love them?
Courtesy of Koan Design
柯安设计
客服
消息
收藏
下载
最近



































