查看完整案例

收藏

下载
墨西哥工作室Paola Calzada Arquitectos已经完成了卡萨Loas de ChasultPec项目。
建筑师们改建了位于墨西哥城住宅区洛马斯-德查普尔特佩克的1980年的一栋房子。
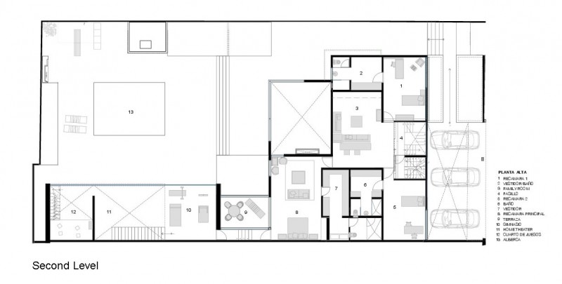
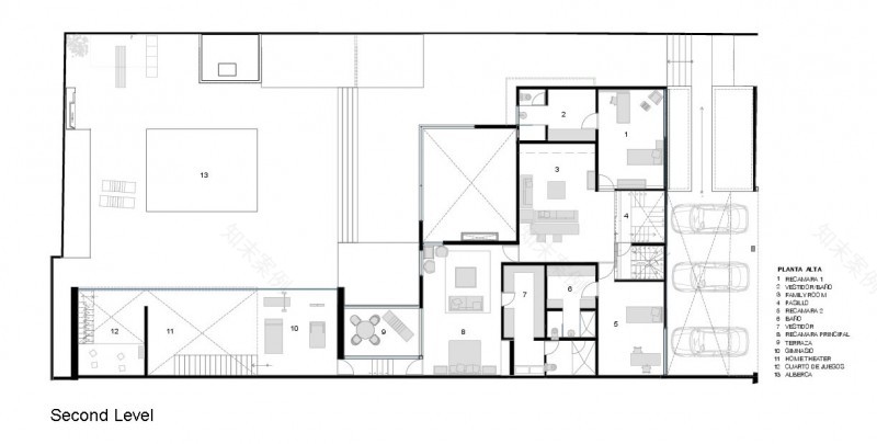
画廊中的视图
我们推荐这些项目,由Paola Calzada ArquArchtos House Vieyra ArquArchtos II在靠近墨西哥城的洛马斯乡村高尔夫俱乐部设计一个当代之家。
画廊中的视图
画廊中的视图
画廊中的视图
画廊中的视图
画廊中的视图
画廊中的视图
画廊中的视图
画廊中的视图
画廊中的视图
画廊中的视图
画廊中的视图
画廊中的视图
画廊中的视图
画廊中的视图
画廊中的视图
图片来源:Jaime Navarro
keywords:Bathroom Contemporary House Dining Room Glass Walls Kitchen Living Room Lomas de Chapultepec Mexico Mexico City Paola Calzada Arquitectos Swimming Pool Terrace
关键词:浴室,现代住宅,餐厅,玻璃墙,厨房,起居室,墨西哥城,保拉,卡尔扎达,阿奎特,游泳池露台
客服
消息
收藏
下载
最近


















