查看完整案例

收藏

下载
幻灯片:圣保罗郊区的一扇神秘的橙色门通向一座由建筑师伊赛·温菲尔德设计的梦幻屋和花园。
这所房子包括电影院、宽敞的户外露台供娱乐,还有一个游泳馆。
构成这座房子的四个正方形都是在不同的材料中完成的--起居室用卵石砌成的混凝土,办公室用的裸露混凝土,娱乐区用的木头,餐厅用的喷砂混凝土。
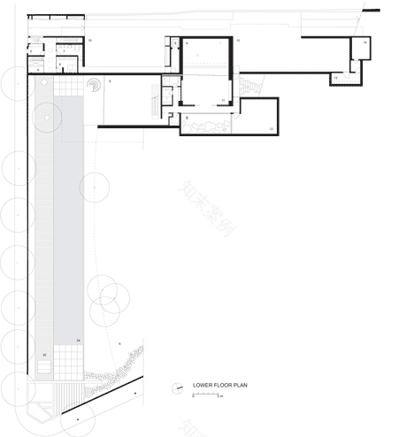
室内花园通向主楼层,客厅、厨房、卧室和娱乐区都在那里。
娱乐区包括五个露台、一个电影院和一个长长的游泳池。
楼下是健身房和儿童游戏室,地下室是桑拿。
一个大车库也为房主收集的经典汽车提供了空间。
在保持温度冷却的同时,房子和病人被定位成使自然光中的大部分成为自然光。
场地上现有的树木被纳入了露台的设计中,一个植物填充的中庭与多个天窗坐落在房子中心的走廊之间。
最近,我们在圣保罗的另一栋房子里出现了Isay Weinfeld。请看这里建筑师的更多作品。
在这里可以看到更多巴西的故事。
照片由费尔南多·格拉拍摄。
以下是建筑师提供的更多信息:
格雷西亚大厦
格雷西亚大厦位于巴西圣保罗的一个住宅区,占地4.830平方米。
客户想要一间房子,在那里他可以很享受他的孩子和朋友的陪伴。
为此,他要求提供宽敞和各种娱乐场所,例如电影院、儿童娱乐室和桑拿浴室。
作为一名运动爱好者,他希望房子里有一个大健身房和一条长长的泳道。
从正门,一个靠近房子-设置在后面的陆地-步行,向上和穿过一个森林地区,并跨越一个广阔的花园。
然后,这座房子完全被人看到了:四个连接但又不同的街区,分别覆盖着卵石爆破的混凝土斑块(起居区)、裸露混凝土(办公室)、木板(娱乐区)和喷砂混凝土斑块(餐饮区和服务区)。
在房子后面设置的车道可供乘车到达的人使用。
单击上面以获得更大的图像
经过一个车库,主人把他的古董车收藏起来,穿过一个郁郁葱葱的室内花园,一个人来到了主楼层,所有的起居和娱乐区域都可以找到--除了位于楼下的健身房和娱乐室,以及地下室的桑拿浴室。
单击上面以获得更大的图像
房屋的位置也由(巨大的)现存的树木定义。这个概念的一个重要部分,决定围绕他们建造小庭院和花园允许宽敞的自然光和通风在房子里面,帮助保持温度凉爽和愉快的绿色视图以任何方式。一个人看着。
单击上面以获得更大的图像
项目信息
建筑作者:Isay Weinfeld合作者:Domingos Pascalis项目经理:Monica Cappa Santoni团队:Gustavo Benthien,Leandro Garcia
总承包商:MFC ConStrutora
结构工程师:Eduardo Duprat
基金会工程师:Apoio Consultores
单击上面以获得更大的图像
机械、电气、管道工程和空调:TaseTecnologia e Consultoria de Sistemas em Engenharia有限公司
预制混凝土面板:Concresteel Pré-Fabados de Concreados de混凝土-Pedras belas Artes-Montagem Stamp Painéis Arquide et Nicos GMM tecnologia em Fia o o de Rochas
单击上面以获得更大的图像
景观设计:Isabel Duprat
制造商:预制混凝土面板:Concresteel Stamp Painéis arquiet Nicos
单击上面以获得更大的图像
旧木地板:Brasil Jacaranda玻璃镶嵌:Vidrotil玻璃制品:Queiros Vidros陶瓷瓷砖:NGK照明:Companhia de Ilumina o金属工人:Serralheria Clone,Meteúrgica swat卫生洁具:Deca Stone地板和墙壁覆盖:Lesec Marmoraria Woodframework和外部木板:Legno Marcenaria Woodworks:Legno Marcenaria Woodworks:Legno Marcenaria Woodworks:Legno Marcenaria Woodworks:Legno Marcenaria Woodworks:Legno Marcenaria Woodworks
单击上面以获得更大的图像
材料外部装饰:墙:木/预制混凝土面板/混凝土地板:木甲板游泳池:瓷砖窗:钢化玻璃12毫米/木框架护栏:夹层玻璃20毫米
室内装饰墙:灰泥漆白色/预制混凝土板/木板/织物板地板:古董木天花板:石膏板门:漆木
单击上面以获得更大的图像
项目上层客厅、餐厅、电视房、办公室、卫生间、卧室、浴室、亚麻布柜、家庭房、庭院、员工间(客厅、卧室和浴室)、游泳池、厨房、洗衣房、存储
一楼儿童室、健身房、更衣室、音乐工作室、停车场
地下室桑拿浴室浴室机械室
客服
消息
收藏
下载
最近




























