查看完整案例

收藏

下载

翻译
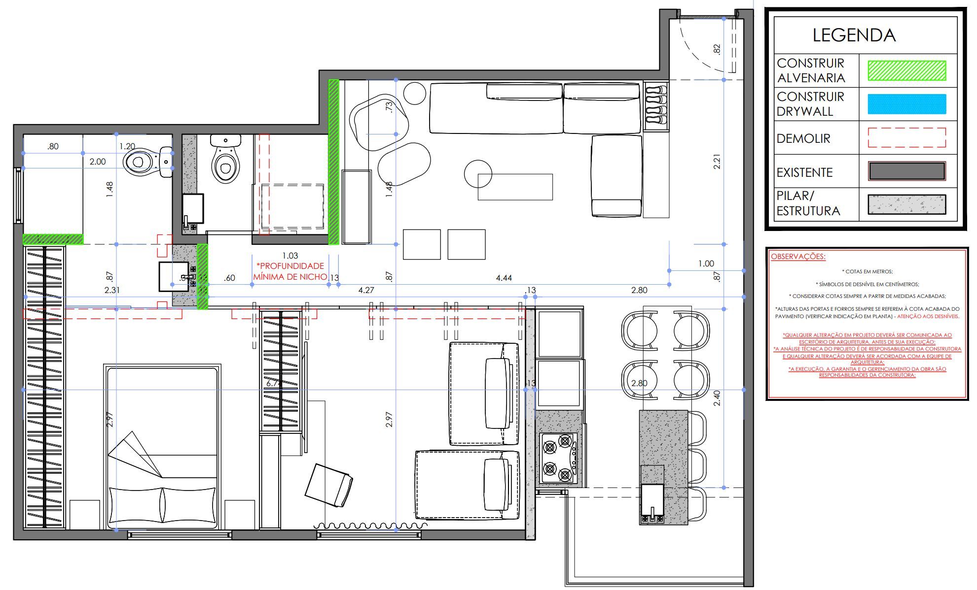
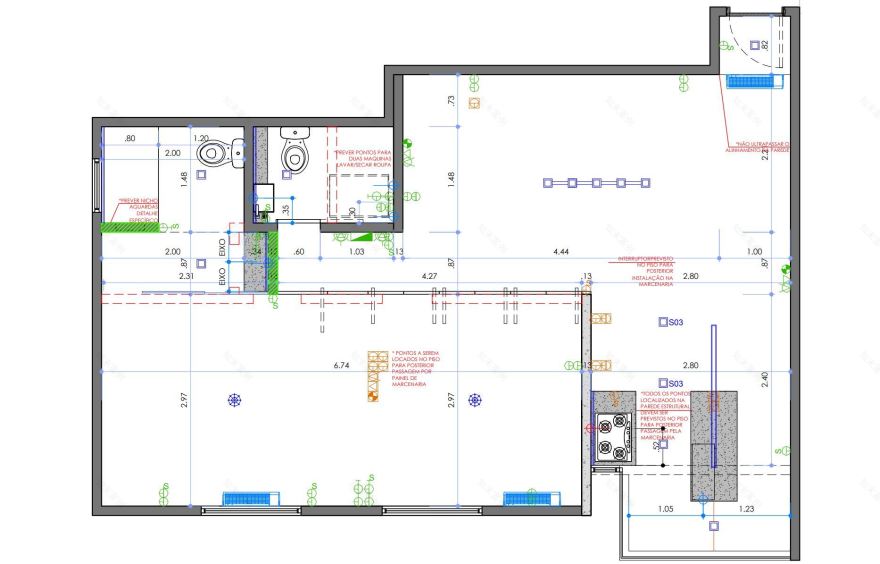
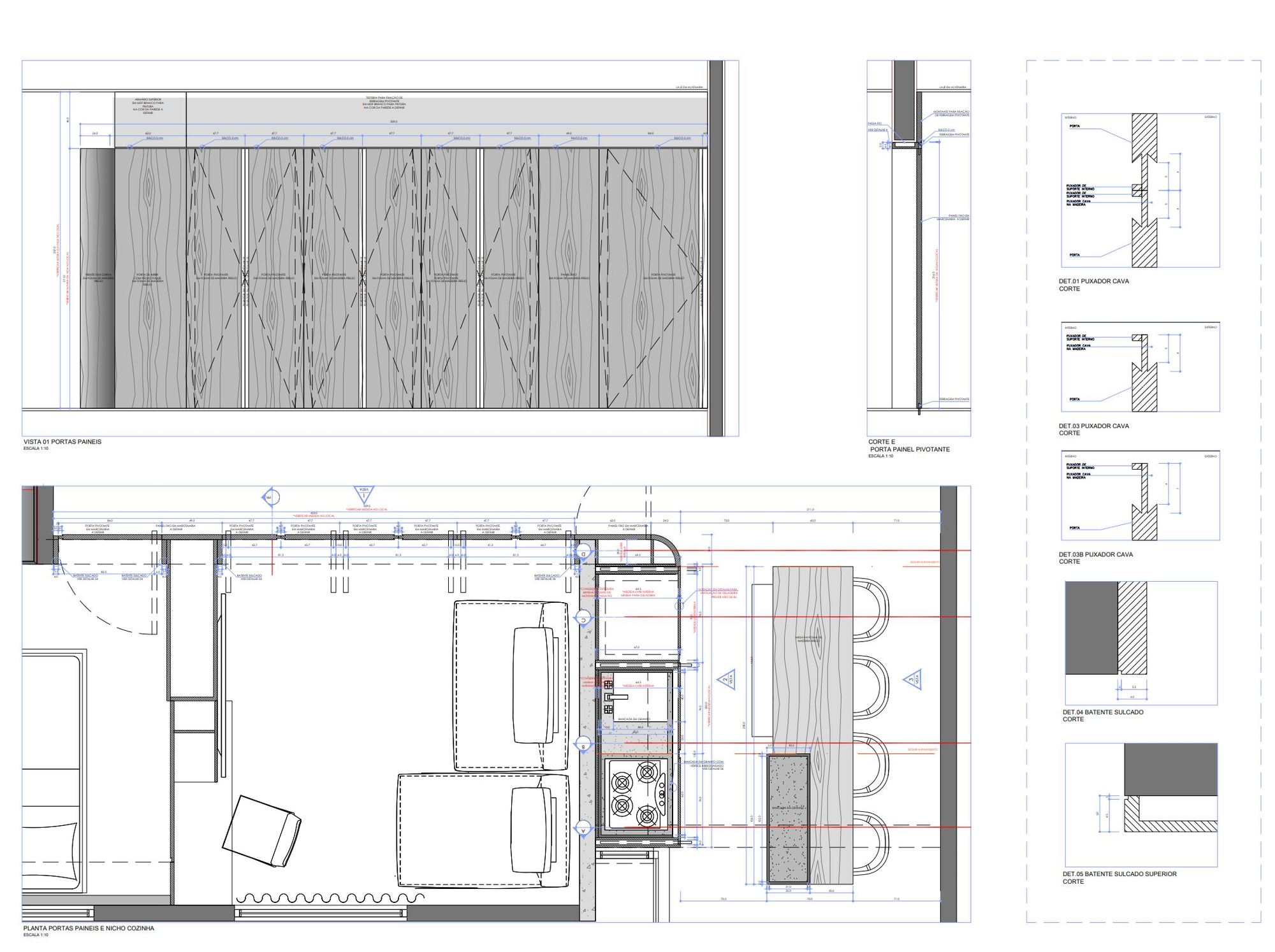
A main wooden element, composed of curves, doors and panels, is the protagonist of the space. It is born from the rigidity of a structural wall that does not allow demolition to integrate the kitchen and intimate room and becomes the beginning of the project and universe of possibilities.
With many possible scenes in 65m2, reflecting the desire of customers to optimize the area, mimic the kitchen and have the flexibility of an intimate room that can integrate. The panels that occupy two sides are a vehicle for transformation and possibility.
The kitchen mimics and integrates into the space through retractable doors that close completely or open in parallel with the furniture. Through the articulation of these panels, the kitchen service sector, composed of equipment, tub and workbench, can be completely independent of the support island, also a sideboard, and dining table, which makes up a more social space of the architectural atmosphere. Allowing different uses of the kitchen and bringing possibilities according to the demand of the domestic routine, very important for a couple who do not cook often, but like to receive people at home.
This element of possibilities continues in the living room and, with a different opening system, pivoting doors with a breeze aesthetic, allow horizontal integration and passage between the living room and intimate environments. As the last transition of the panels, this includes the bedroom door at the end of the corridor.
Other elements with new materiality, work together with all the carpentry thought to its maximum potential, which functions as panels, room dividers, brises, cabinets. Etc. We bring a steel, upholstered bookcase, color point in the bathrooms and lavabo, enriching the whole and always seeking to optimize the potential of the area with demand for many functions.
客服
消息
收藏
下载
最近







































