查看完整案例

收藏

下载
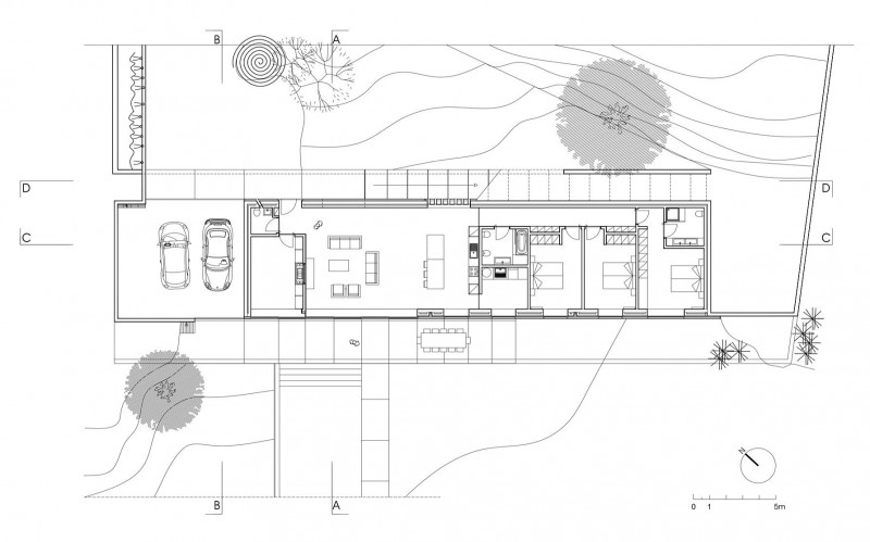
布拉加的工作室Topos Atelier de ArquArchtura最近已经完成了在美国铝业的房子项目。
顾名思义,这座2900平方英尺的单层住宅位于巴西莱里亚区和葡萄牙奥斯特分区的一个城市美国铝业。
画廊中的视图
我们建议这些项目将由ToposAteLeerdeArguecuraHouseCasaEemAldoar通过ToposAtemierdeArguecura的CasaNoBOM耶稣来推荐这些项目
画廊中的视图
画廊中的视图
画廊中的视图
画廊中的视图
画廊中的视图
画廊中的视图
画廊中的视图
画廊中的视图
画廊中的视图
画廊中的视图
画廊中的视图
Topos Atelier de ArquArchtura在阿瓦巴萨的住宅:
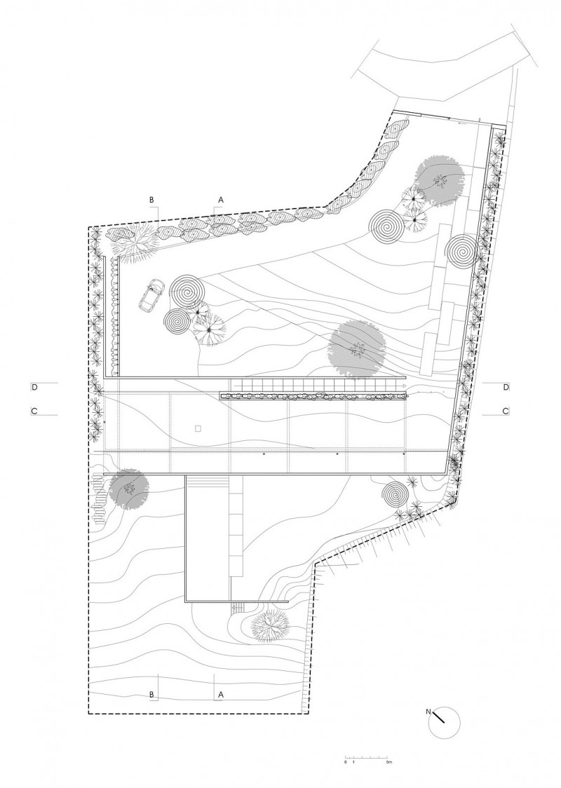
“在阐述这个项目时,由于我们的客户对景观的美丽感兴趣,我们试图创造一种尽量减少对环境的干扰的建筑。我们选择了一个单一的计划,它被合理化和简化,以被刻在情节的宽度中。
土地不是为物体“房子”提供环境,而是与建筑融为一体,就像土地艺术的作品一样。这一程序有效地保存了景观,提高了可持续性,并最终允许自然返回属于她的地方,加强了能够居住在景观中的感觉。“
画廊中的视图
画廊中的视图
画廊中的视图
画廊中的视图
画廊中的视图
画廊中的视图
画廊中的视图
画廊中的视图
画廊中的视图
图片来源:ArchDaily
keywords:Concrete House Glass Walls Portugal Single Story Swimming Pool Topos Atelier de Arquitectura
关键词:混凝土房屋玻璃墙葡萄牙单层游泳池Topos Atelier de ArquArchtura
客服
消息
收藏
下载
最近























