查看完整案例

收藏

下载
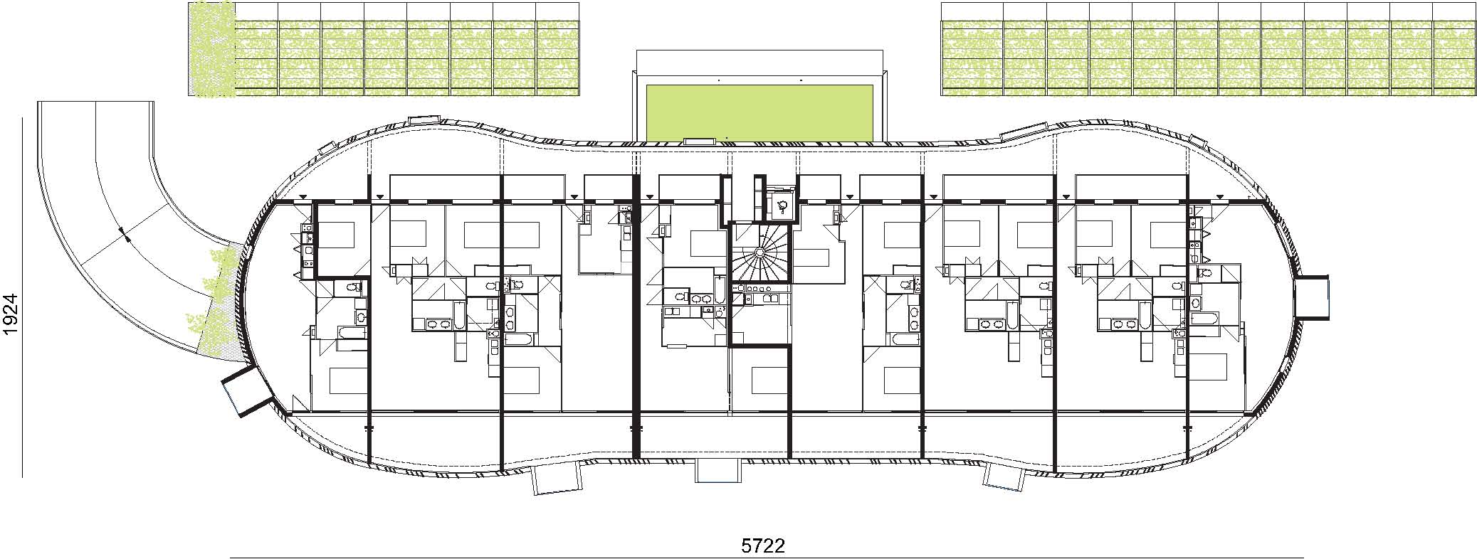
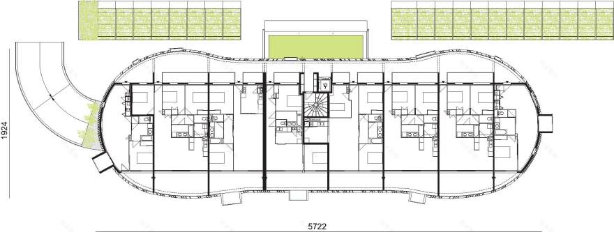
Arc en ciel‘s’Intenteàl‘entrée du quartier du Grand Parc,àl’角度des rue Portmann,Huyard et de l‘Avenue Emile CounordàBordeaux。‘.’.Potionnéau niveau d‘un Carreford et proche d’un Center Commerce(qui fait pare d‘un projet de rénovation),il se doit de gérer dans on Context urbain,les通量de voitures,les通量du缆车和donc les通量des piéton。Cette浓度a engendréla création d‘un parvis minéral促进剂les déposadant d’assoir le b timent dans la Continitédu domaine public。
Firm Agence Bernard Buhler
Type Commercial › Office Residential › Multi Unit Housing
YEAR 2010
SIZE 300,000 sqft - 500,000 sqft
BUDGET $5M - 10M
keywords:architecture, architecture news, interiors, interior design, portfolio, spec, brands, marketplace, products Arc en Ciel
关键词:建筑,建筑新闻,室内设计,组合,规格,品牌,市场,产品
客服
消息
收藏
下载
最近






























