查看完整案例

收藏

下载
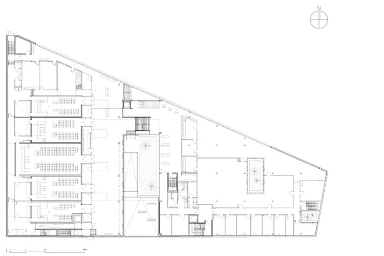
架构师提供的文本描述。该项目设置分配的整个地块。一个巨大而黑暗的混凝土支架保护着他郊外的建筑,并注意到了这一限制。从赫克托·贝利奥兹街到保罗·瓦兰特大道,一个交叉断层创造了混凝土支撑的透明度,在这些城市空间上打开了由露台和大厅组成的项目的入口、主要空间,在法语中被称为“帕斯-佩尔德斯”(Salle des Pas-perdus)。
Text description provided by the architects. The project sets up the entire plot that is allocated. A massive dark concrete support protects the building on his outskirts and notes significantly this limitation. A cross fault creates a transparency in the concrete support, from the Hector Berlioz street to Paul Vaillant boulevard, opening on theses urban spaces the entry, main space of the project composed by the patio and the hall which is called “salle des pas-perdus” in French.
该项目的建筑目标之一是确定游客的自然方向,并让他们立即进入他所选择的管辖范围(商业法庭或劳工法庭)。因此,古典法院广场被建筑中央的一个庭院所取代。从外面的地方,甚至在进入大楼之前,公众就会发现主要的室内空间:
One of the architectural goals of the project was the natural orientation and immediately of the visitor to the jurisdiction of his choice (commercial-court or labour court). For that, the classical courthouse’s square was replaced by a patio in the middle of the building. From the outside place, even before having entered into the building, the public will identify the main interior spaces:
-接纳两个司法管辖区,
- The reception of the 2 jurisdictions,
-走失的房间,
- The lost-step room,
-进入审判室。
- The access of the courtrooms.
© Fernando Guerra | FG+SG
费尔南多·格拉
与暗支撑相对的是,这两个辖区的接收空间是白色的、透明的、充满光线的。巨大的支撑上是一个半透明的玻璃棱镜,里面有工作空间。玻璃皮保护用户的隐私:从外部看,半透明遮挡了窥视的眼睛,而在这个同样的半透明窗口里,可以看到整个表面。
In opposition of the dark support, these receptions spaces of the 2 jurisdictions are white, transparent, filled up light. On the massive support is a translucent glass prism containing workspaces. The glass skin preserve the privacy of users: from outside, the translucency blocks prying eyes, while inside this same translucent window lets in views of the entire surface.
© Fernando Guerra | FG+SG
费尔南多·格拉
这个玻璃棱镜就像一个巨大的灯笼,一个城市中心,肯定了这座建筑的制度地位。
This glass prism is like a monumental lantern, an urban center, affirming the institutional status of this building.
四座灯光井和各种室内露台在他的中心挖出了这座建筑。它们提供了一种被城市噪音保护的内部景观,为这个机构提供了一种平静而宁静的氛围。
Four lights wells and various interiors patios planted dig the building in his center. They offer an inside landscape protected of the urban noises, a calm and serene atmosphere necessary for this institution.
© Fernando Guerra | FG+SG
费尔南多·格拉
该项目由一个简单的正交几何图形表示,提供了一个体积净化读数:
This project expressed by a simple and orthogonal geometry provides a volumetric purified reading:
-具体支助,
- Concrete support,
放置玻璃棱镜,
- Glass prism placed,
-露台凹陷。
- Patio recessed.
© Fernando Guerra | FG+SG
费尔南多·格拉
客服
消息
收藏
下载
最近








