查看完整案例

收藏

下载
架构师提供的文本描述。建筑背景
Text description provided by the architects. Context of the Building
© Sharrin Rees
(Sharrin Rees)
莫里斯引理室内体育中心(MIISC)是韦恩·麦克菲(WayneMcPhee)设计的。
The Morris Lemma Indoor Sports Centre (MIISC) was designed by Wayne McPhee & Associates, Architects, with a team of engineering specialists. As a community facility for the people of Canterbury, our beginning of the design process was to capture the context of Riverwood, a “poetic” place name combining both river and wood. This understanding of the geographic and cultural context was a springboard to the creative design process for the building.
© Sharrin Rees
(Sharrin Rees)
我们相信,里弗伍德这一重要项目的设计,将为以前的居民留下一个记忆的地方,并将对子孙后代有意义。
We believe the design of this important project at Riverwood possesses a place for memories of the previous inhabitants, and will have meaning for the generations to come.
设计理念还是“哲学”
The Design Concept or “Philosophy”
作为一个社区体育设施,MIISC包含并表达了该网站的文化、特征、性质和体育用途。这座大楼不仅表达了功能和业务需求,而且表达了通过慷慨的政府财政捐助实现的社区和社会愿望。我们的设计方法是最大限度地发挥网站的潜力,并为居住者提供运动和改善生活方式的机会。
The MIISC as a community sporting facility contains and expresses the culture, character, nature and sporting uses of the site. The building expresses not only functional and operational requirements but community and social aspirations which have been realized through generous government financial contributions. Our design approach has been to maximize the potential of the site and provide the occupants sporting and improved lifestyle opportunities.
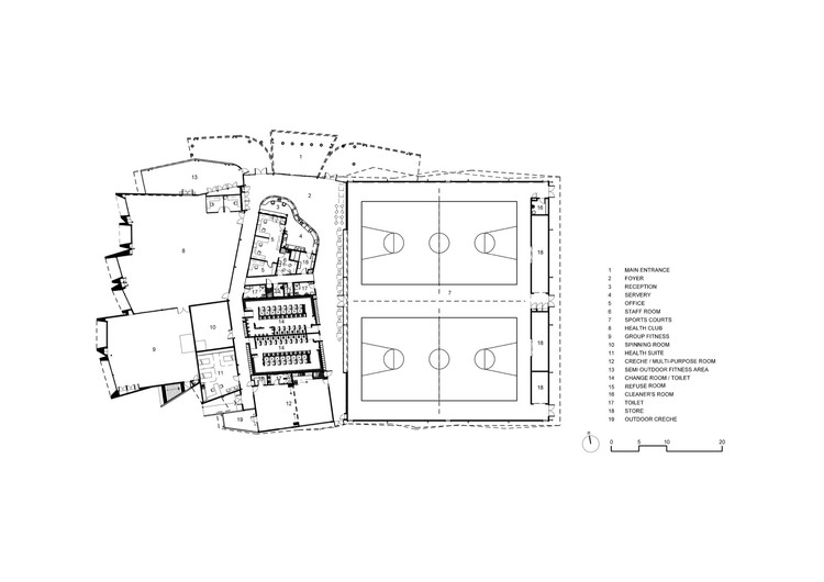
室内体育中心表现为一个强大的肌肉建筑,紧跟本局提供社区健康、健身及力量中心的简介。该地点向东/西流动,我们设计了一座建筑物,将这些水流通过屋顶形式以“手指”条表示。
The Indoor sports centre expresses itself as a strong muscular building, closely following Council’s brief to provide a centre for community health fitness and strength. The site flows east/west and we have devised a building which channels these flows which are expressed in the roof form as ‘finger’ strips.
© Sharrin Rees
(Sharrin Rees)
金属包着的“手指”从主运动场向西延伸到贝尔莫尔路。每个“手指”都有一个盒子形状的图片窗口末端,提供了一个视觉连接的乘员和过路人-给予高度能见度的室内空间,在白天和晚上。这些“手指”在形状上是动态的,入口遮阳棚和树冠的形状也是动态的,是运动的象征。
The metal clad ‘fingers’ extend from the main sports hall west towards Belmore Road. Each ‘finger’ has a box shaped picture window end providing a visual connection between the occupants and passers-by giving high visibility to the interior spaces during both day time and evening. These ‘fingers’ are dynamic in shape, and the entrance awning and canopy forms are also dynamic and emblematic of motion.
这座建筑封装了体育人士熟知的抽象形式的活力和活力:压缩和稀薄表示为屋顶形态的波浪模式:由屋面桁架表示的拉伸和抓地力,在建筑内部明显可见。大型室内空间设备齐全,培育和发展体育、娱乐和文化追求,也鼓励社会互动、团队合作和文化多样性。
The building encapsulates the dynamism and vibrancy of abstract forms well known to sports people: compression and rarefaction expressed as wave patterns of the roof forms: stretch and grip expressed by the roof trusses evident within the building interiors. The large well appointed interior spaces nurture and develop sporting, recreational and cultural pursuits, they also encourage, social interaction, teamwork and cultural diversity.
© Sharrin Rees
(Sharrin Rees)
色彩在设计中起到了很大的作用,其目的是提高人类的体验,给建筑使用者带来欢乐,并在中心附近和中间移动时感到惊讶。内部和外部都有运动的动力。
Colour has played a big part in the design which aims to heighten human experience to give the building users joy, and surprise when moving around and through the centre. Within and without there is dynamism of movement.
© Sharrin Rees
(Sharrin Rees)
客服
消息
收藏
下载
最近











