查看完整案例

收藏

下载
温哥华的凯丽雷诺兹室内工作室已经完成了雅尔敦阁楼项目。
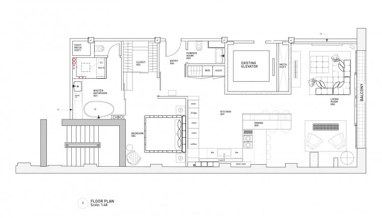
位于温哥华的一个建于1921年的仓库,1996年被改建为公寓/阁楼,2009年和2010年对这1,000平方英尺的阁楼进行了改造,以恢复原来的仓库感觉。
画廊中的视图
我们推荐这些项目,都灵学士阁楼内部由Mg2建筑公寓仓库改造在旧金山
画廊中的视图
画廊中的视图
画廊中的视图
画廊中的视图
画廊中的视图
画廊中的视图
画廊中的视图
画廊中的视图
画廊中的视图
画廊中的视图
画廊中的视图
画廊中的视图
画廊中的视图
画廊中的视图
画廊中的视图
凯利·雷诺兹(Kelly Reynolds)的雅尔敦阁楼:
“这是终极单身汉客户的终极单身汉公寓。这是一个指定的遗产级住宅(按温哥华标准)1921年仓库,它被改造为公寓/阁楼在1996年。业主在2006年底买下了这个阁楼,2007年初,有一天醒来时,他打开了一个标准的石墙外墙,发现了后面有100年历史的砖块。这使得机器运转了几个月,然后由于没有计划而被拆除。
输入2009年,所有者决定重新启动项目的时间。在两名失败的室内装饰师之后,业主找到了室内设计师凯利·雷诺兹(Kelly Reynolds),当时他是水果设计公司的设计师,与客户合作,并提出了一个总体计划,以完成该项目,并帮助恢复原来的仓库感觉,但在此基础上进行了一些大城市改造。
画廊中的视图
最初的计划是一套2卧室2浴室的标准公寓配置,这是20世纪90年代初的风格,很少考虑人们的实际生活方式。
有了这个计划,每堵墙都倒塌了,阁楼变成了一间卧室,有两个浴室。仓库的感觉,然后复活与大的生活空间,原来的砖暴露和未完成形成混凝土作为一个特色墙。
光线现在能够穿透大部分新的平面图通过9英尺大的窗户。尽管这座房子的建造只考虑了一个人,但很多人都在考虑为业主提供健康的生活环境。
画廊中的视图
图片来源:ArchDaily
keywords:Canada Contemporary Interior Design Exposed Brick Walls Kelly Reynolds Interiors Loft Remodeling Vancouver Warehouse Conversion
关键词:加拿大当代室内设计裸露砖墙凯利雷诺内部阁楼重塑温哥华仓库改造
客服
消息
收藏
下载
最近




















