查看完整案例

收藏

下载
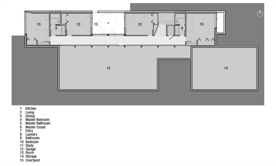
密歇根州的许多家庭都有一个传统,就是在靠近该州湖泊的小屋里度过周末和假期。希金斯湖被认为是最壮观的内陆湖泊之一和空巢谁委托这间小屋,希望能够分享这些资源与他们的大家庭和许多朋友。为了做到这一点,他们要求有一个很大的聚集地供烹饪、吃饭和放松,有二十多岁的人睡觉,相对于邻近的房子来说,小木屋的面积比较大,这个项目的中心挑战就是在一个狭小的场地上安装一座大的建筑物,而不让邻居们望而却步,
Firm Jeff Jordan Architects LLC
Type Residential › Private House
STATUS Built
YEAR 2011
keywords:architecture, architecture news, interiors, interior design, portfolio, spec, brands, marketplace, products Higgins Lake House
关键词:建筑,建筑新闻,室内设计,组合,规格,品牌,市场,产品希金斯湖屋
客服
消息
收藏
下载
最近



















