查看完整案例

收藏

下载
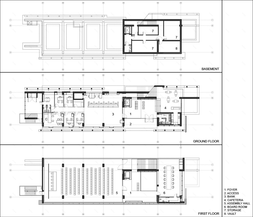
这座建筑位于拉纳卡区的基提村、佩尔沃利亚村、特莱凡努村和梅内乌村的合作银行,位于村庄北端的一块地块里,紧邻公司的商业设施,靠近当地的高中,除了银行,它还打算创建一个公共场所,为邻近社区提供一个会议区、一个集会大厅、讲课的可能性和机会。展览及一间小型咖啡厅,三层楼共占地1070平方米,占地6730m2。该大厦位于中心街,与中学相对,加强了街道的公众特色,但亦与繁忙的交通构成一个连续的直线屏障,通往大厦的通道是内部广场,将大厦与商业部现有的设施连接起来。停车场和创建的小型公共公园。银行区和咖啡厅设在一楼、演讲厅和一楼的会议室。仓库、档案室和服务器室都放在地下室里,建筑物的不同功能在中央双高中庭周围排列成不同的组。这确保了银行区与在其他地区开展的活动有关的安全功能,从而创造了一条免费螺旋通道,引导游客从中庭穿过咖啡厅,到达一楼的公共设施。建筑物的内部布局和水平和垂直循环在海拔上的投影。它们强调不同的层次和内部螺旋路径,根据内部空间功能,在自然光和人工光的质量上也给予了Emphasis。在底层,大的玻璃开口被混凝土和木质遮阳遮住,这样自然光线就可以进入室内空间,而不妨碍内外之间的光学接触。地面的总透明度与第一级窗户的聚焦透视图形成对比,穿透不透明的混凝土墙壁和u-玻璃表面的半透明表面。面板混凝土表面,幕墙和u型玻璃双层玻璃配置.
Firm amsa
Type Commercial › Office Government + Health › Community Center
keywords:architecture, architecture news, interiors, interior design, portfolio, spec, brands, marketplace, products Synergasias Co-Op Bank
关键词:建筑,建筑新闻,室内设计,组合,规格,品牌,市场,产品协同行动银行
客服
消息
收藏
下载
最近



















