查看完整案例


收藏

下载

翻译
The apartment is located in Brasilia, an iconic city of modernism, built in 1960 by architect Oscar Niemeyer. The building has a concrete structure, a functional and clean plan, with typical modernist elements, such as the hollow brick and large window frames, with abundant natural light. The apartment had a lot of potential due to its clean structure, with few pillars and the absence of apparent beams, which would give me more freedom to create an open layout. This characteristic matched perfectly with the briefing given by the couple, to highlight the modernist character of the building and create an open plan in which the rooms are visually connected, with lots of natural light and cross ventilation.
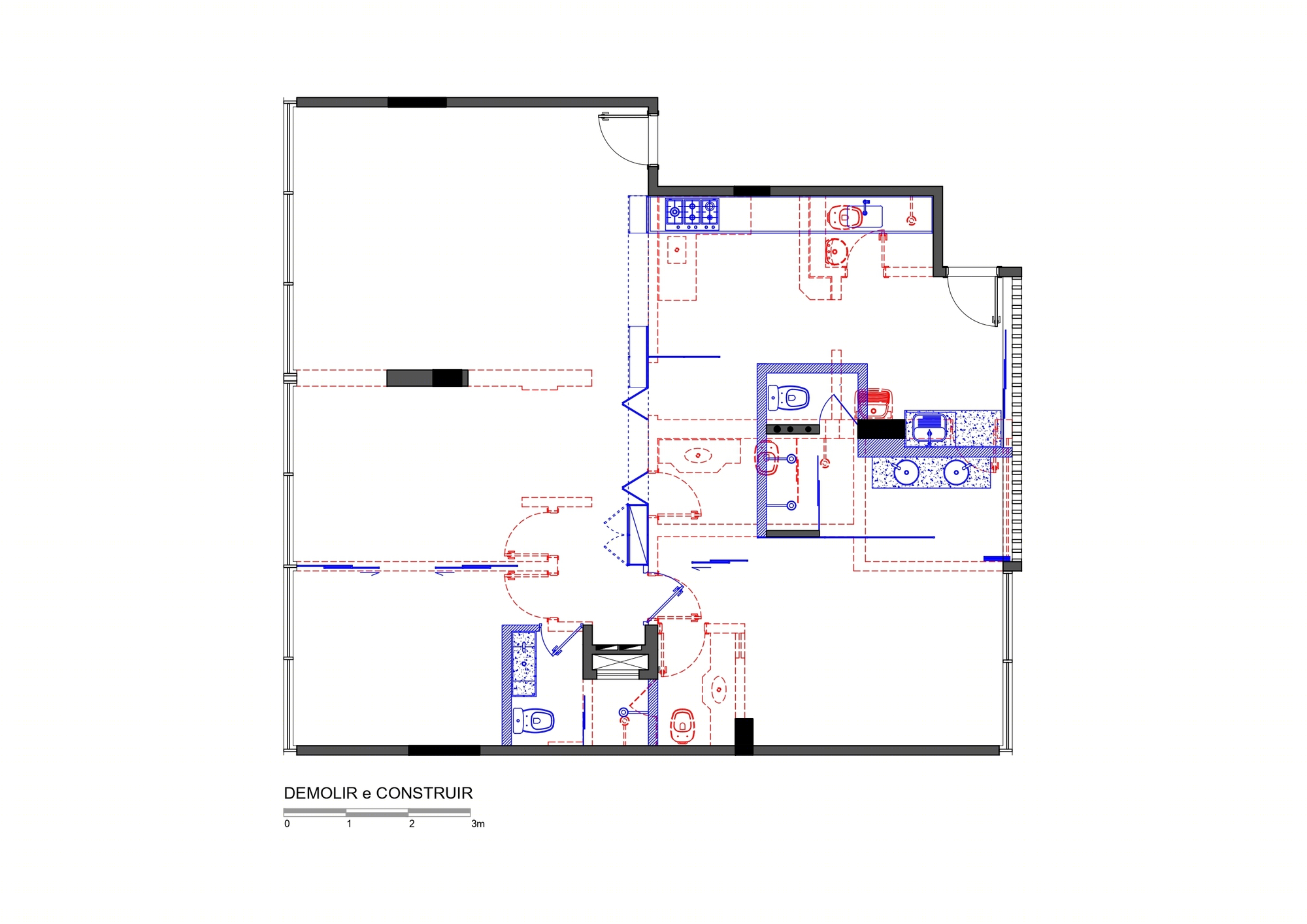
Before the renovation, the 120 m2 apartment had 02 bedrooms and 01 master suite, a closed kitchen and a large laundry room, which was disproportionate to the customers' needs. The residents' lifestyle gave me carte blanche for a layout revolution, where the social area is prioritized. In the project, the third bedroom was eliminated and became the dining room. The former second bedroom gave way to the TV room, enclosed by iron and glass doors. The residents' master suite also gains more openness when it integrates with the bathroom - a subtle transparent partition separates the two spaces and keeps them visually connected. The laundry was minimized to meet customers' needs, which allowed the kitchen to be rearranged, with direct access to ventilation coming from hollow bricks from the façade. Thus, the kitchen was integrated into the social area to host gastronomic moments with friends. At the central area of the apartment is the home office, with direct access to the suite and the social area.
The key words for this project are visual integration and openness and the challenge was to create this strong connection between the rooms but at the same time allow privacy. The solution that marks the project are partitions and doors in iron and glass, to isolate acoustically but not block the view and natural light of the spaces. Curtains were installed to provide privacy in the couple's suite. The visual permeability given by the transparency of the glass prevails in the main spaces and contrasts with the wooden volumes that comprise the social bathroom, laundry and kitchen cabinets.
The long iron bookcase appears as a multifunctional element - it closes the office, keeps the collection of vintage photographic equipment, plants and objects, and gives way to a high counter in the kitchen. This element reinforces the continuity between all spaces and gives the apartment its personality. The predominant color is gray in different tones and textures.
The gray tones create a neutral base for experimenting softer colors, which bring warmth and break the coldness of the concrete, such as blue, green and dust pink, present in art, furniture and objects. Natural and contrasting materials were used to bring balance to the spaces. Cement plaster is used in abundance - it is present in the floor, walls and ceiling - it brings a sense of rusticity throughout the apartment. In the bathrooms, the nobility of the nero marquina marble breaks the rawness of the concrete, in the same way that the wood from the woodwork contributes by bringing more warmth to the space.
Several materials were also chosen in gray tone but which differ sensorially from each other due to their texture, such as concrete, kitchen tiles, woodwork and ceiling painting. The black painted iron is present in the partitions and in all the multifunctional element that includes the bookcase and the kitchen counter. This material resulted in lines that are striking and yet lightweight. With the transparency of the glass, it reinforces the concept of an open and permeable space and becomes the protagonist of the home. As the resident works from home, the request was to create an open home office connected to the living area, with the possibility of sound insulation, without giving up natural light. In the project this room occupied the central area of the apartment and has a direct connection to both the social area and the suite, through iron and glass doors. At the same time, those in the home office can also see the kitchen, which allows a scenario where several activities take place at the same time in different spaces, with a lot of visual fluidity and a feeling of spaciousness.
Through the abundant use of concrete and the appreciation of the building's original characteristics, the project brings a strong reference to the Brutalism so present in the daily life of Brasília, a city admired by the owners. In Brutalist buildings, the structure is evident and the functions are apparent. The project also sought to expose, through transparency, the functions and activities that take place in the different rooms of the apartment. The atmosphere of the project is born from the balance of opposites - raw and elegant, cold and cozy. Through the use of different textures and contrasts between materials, a multisensory atmosphere is created where what stands out is the art, objects and pieces of Brazilian and Italian design. Merlot, the residents’ cat, was also a great source of inspiration. During the briefing I always ask clients to briefly describe what they want for the apartment. They summed up the ideal atmosphere in three words "elegant, soft and gray ... like our cat Merlot". From that simple phrase the concept and the name of the project were born.
客服
消息
收藏
下载
最近

































