查看完整案例


收藏

下载
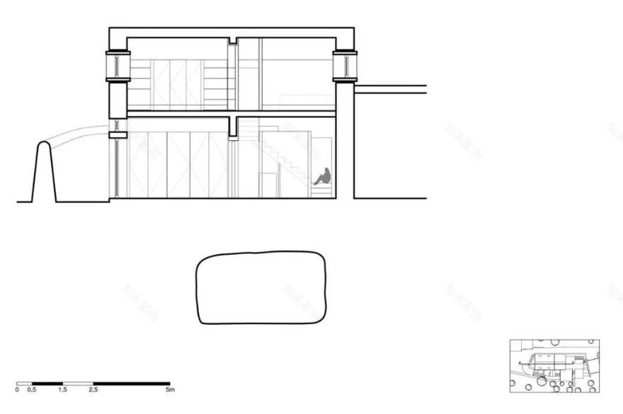
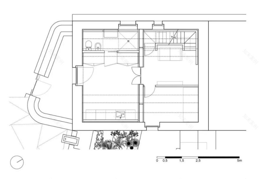
这个住宅位于意大利的莫迪卡是 18 世纪的建筑房子有两层,面积为 50㎡完全由石头建造而成
通过 zerozero 改造实现了近零能源的住宅设计
▲轴测图
▲立面图
▲平面图
进入室内可以看到墙面经过翻修
既保留了原始的石头墙
又有现代化元素
这样的混搭设计别有一番风味
客厅灰色沙发嵌入木质柜中
与古朴的木板置物搭配在一起
别有一番风味
厨房与客厅在同一空间
粗犷的白墙让装修少了几分刻意
多了一丝自然
一张木质餐桌摆在中央,搭配上四张餐椅,作为石墙和白色落地柜之间的过度,古朴的就餐环境增加了不少复古韵味和禅意。
卫生间的洗漱区与淋浴区用玻璃门隔开,石墙和黑灰色的瓷砖搭配,极具时尚感。
通往上层的楼梯
使用金属和水泥拼接
从上至下看
每一个角度都很有设计感
楼梯上方有天窗能保证室内有足够的采光隐藏的灯带照明映射出不规则的屋顶使这个区域显得更加简约大方
主卧的墙面被刷成全白色
两个小天窗和一扇圆窗
保证了室内的通风和采光
也很好的缓解了上宽下窄的室内格局
设计:zerozero
地点:意大利、莫迪卡
设计师:
客服
消息
收藏
下载
最近































