查看完整案例

收藏

下载
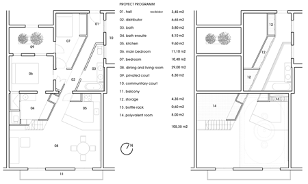
巴塞罗那工作室MielArqu外露已经完成了在西班牙巴塞罗那的一套公寓的翻新工程,该公寓被两条金色条对角分割。
这座名为桑佩雷47的开放式室内有一个楼梯,楼梯上有一面镜子,上面挂着玻璃,形成了铺地毯的脚印的倒影。
墙壁和楼梯的凹槽加上夹层地板提供存储空间。
两条金色的条状分隔公寓对角线以上的头部高度,形成外套挂钩,酒架和支持梯子到阁楼的过程中。
这里有一些来自建筑师的信息:
改变巴塞罗那的安纳基平原。“圣彼得堡”
对SANTPERE 47公寓的改造是对19世纪末典型的空间结构的重新解读,是一系列孤立的房间和断断续续的法院。
SANTPERE 47通过新的物理和视觉连接来溶解墙壁的结构。
当我们在笛卡尔的地块上发现一个几何上的巧合时,我们正在读这套公寓,这是一条斜轴,沿着入口的空隙,中间的一个过道,还有一扇面向街道的大窗户。
这种方式产生了组织项目的对角线。
单位原有空间的重构让位于视觉意料之外,其根源始终是“控制室”时代的主体空间。
从它的对面,你看到了另一个房间,在分销商对面出现了一个浴室,浴室的另一端是活生生的;正是这个“稀释”的浴缸,让你可以用光线和街道树木的倒影来刷牙。
两个金色的导轨跟随身体在对角线两侧滑动,两个技术指南支持电线向上,照明,门的向导和一个滑动的楼梯。
这些金色的线条在公寓中建立了一个水平的分隔:最多2,20米,它流过起居空间,在给定的空间浮标之上,另一种规模的组织存储,瓶架,在浴缸或多价房间的天象灯的入口。
SANTPERE 47是一个新鲜的对话,它的起源是在餐厅的金色艺术工艺天花板和点点滴滴的水滴之间,在木梁的触觉体验中,它们支撑着你可以在阁楼或楼梯上触摸到的地板--这些家具是由马赛克重新组合而成的,这些家具是由古老的生活构成的,反射倍数就像一块神奇的地毯。
工作室名称:Miel ArquArchtos
建筑师:米格尔·安吉尔·博拉斯
地点:西班牙巴塞罗那隆达圣佩尔。
改建:105,00m2
单击以获取更大的图像
单击以获取更大的图像
单击以获取更大的图像
单击以获取更大的图像
单击以获取更大的图像
参见:
.
曼努埃尔·迈亚·戈梅斯·瓦比·萨比·德泽恩
客服
消息
收藏
下载
最近






















