查看完整案例


收藏

下载
邱文锏
光线从我们人为打开并用磨砂U形玻璃填充的西侧墙面透射进来,形成了一种温暖而柔和的氛围。南侧原有的采光窗用白色百叶帘加以遮盖,这种可控的光影效果不仅突出了衣物的质感和色彩,还使得整个空间更加温馨、舒适。
栖刻建筑设计
本案位于某公寓建筑一楼商铺的西侧端头,由于商铺开面位于建筑背面并非临街,并且距离主干道路较远,视觉上不易察觉。从商业角度看来其实并非优选铺位。然而当品牌主理人把我们约至项目现场,看到项目周围的自然环境时,我们一致认为可以在此大胆尝试,创造一个富有生命力的空间产品,将自然与当下“CHILL风格”的生活方式融合,品味时尚与美味的同时,沉浸在自然的怀抱中。
▲项目鸟瞰
© 邱文锏
这是我们与CHUNJU品牌的第三次合作,从经营品类上,这次除了买手店还融入原创品牌CÉNCÉN咖啡,结合项目选址的先天条件,品牌主理人将其命名为“大院儿”咖啡。在空间布局方面,我们从设计层面作出商业决策,说服品牌主理人将更宽的铺位开面留给CÉNCÉN咖啡,将更大的铺位深度留给CHUNJU买手店,而且两者之间并不互通。这样既保证咖啡店可以应对大量的自然人流,以利用外摆区域实现经营场地的自然扩展。又保证了买手店内有足够的消费舒适度,同时合理完成对咖啡店引流而来的新客筛选。
▲轴测
© AERIEDESIGN
▲咖啡店入口
© 邱文锏
“大院儿”咖啡充分利用并延展了户外空间,我们使用柏油铺装及斑马线的点缀方式,营造出一个独立于城市的小生态圈。户外桌椅使用简单线条勾勒出轻松的户外风格,既符合现代都市的审美,又能与周围的绿树和草地和谐融合。店内的景观落地窗,是消费者争先选择的最佳“拍照点”,阳光透过窗斑驳地洒在桌面,时间仿佛放慢了脚步,窗外的绿树和白色天幕在蓝天下构成了漫画中的景象。
▲咖啡店室内
© 邱文锏
在买手店这一侧,我们决定对自然光影加以巧妙运用,不仅增强了空间的美感,还赋予了空间生命力和活力。光线从我们人为打开并用磨砂U形玻璃填充的西侧墙面透射进来,形成了一种温暖而柔和的氛围。南侧原有的采光窗用白色百叶帘加以遮盖,这种可控的光影效果不仅突出了衣物的质感和色彩,还使得整个空间更加温馨、舒适。
▲买手店入口
© 邱文锏
▲买手店门厅
© 邱文锏
▲买手店室内
© 邱文锏
▲温馨、舒适的氛围
© 邱文锏
通过合理的设计手法,提升空间的商业价值,是我们追求的目标。因地制宜实现消费与环境的结合,让CHUNJU-CÉNCÉN不仅是一个消费场所,更是一个生活方式引领的空间。开业后不久,其火爆的客流量以及社交媒体引爆的话题量,也印证了这一期待,实现了我们的设计初衷。
▲生活方式引领的空间
© 邱文锏
▲室内一角
© 邱文锏
项目图纸
▲轴测动图
© AERIEDESIGN
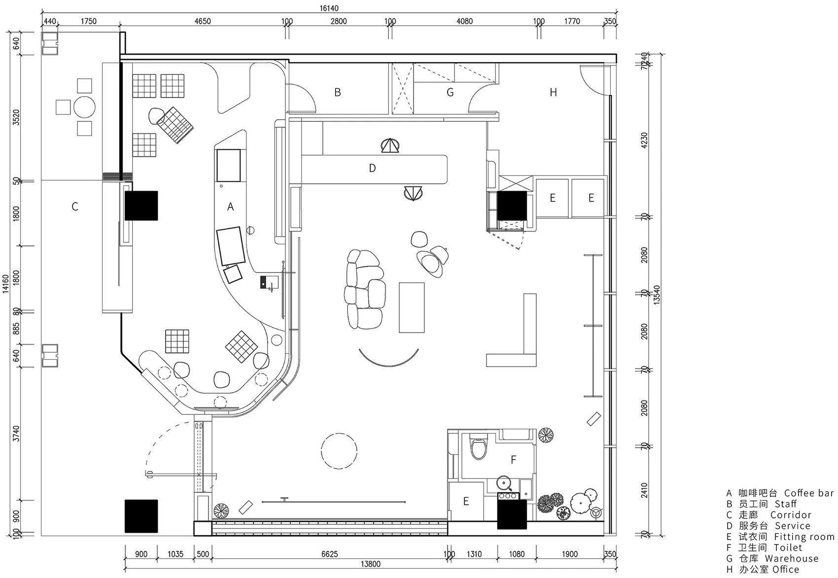
▲平面图
© AERIEDESIGN
项目名称:CHUNJU-CÉNCÉN
项目类型:零售-餐饮
设计公司:栖刻建筑设计
项目设计:2023年6月
完成年份:2023年10月
主持设计:张焱
设计团队:杨淼鑫
项目地址:江苏省南京市栖霞区杉湖东路11号
建筑面积:200㎡
摄影版权:邱文锏
施工单位:南京金浪装饰工程有限公司
客户:CHUNJU - CÉNCÉN
客服
消息
收藏
下载
最近





















