查看完整案例

收藏

下载
设计是一种缜密且充满逻辑的技术手段,空间的最初就是空荡而冰冷的框架结构,温度呈现,恰恰在于设计者对于故事的挖掘,以及关注人的情感需求并赋予情感延伸。
玄关
度假感的基础立于原建筑的自然条件,坐落湖边;设计扩大建筑外窗,模糊内与外的界限和距离感,通透宽敞且有种身处森林城堡的轻快感。同时更换原始门窗,确保隔热保温的物理性能。
客厅
当室外的茂密植被和湖面自然过渡到室内,大地色系的主调也与此交相辉映,整个空间的生命力由此被调动并爆发一种“沉稳内敛的力量”。
棕色皮艺沙发与豆沙绿单人沙发产生对比且形成互补;天然石材和人造岩板的纹路,天然柚木的书桌和书柜搭配上麻质的藤编;将度假的闲逸与轻松之意铺满。
意式极简类家具如同其命名的正装一样优雅迷人而利落,为空间增添些许建筑感。它具有过渡性,不属于任何特定时代或风格,因此几乎适合任何装饰。
餐厅
房间里到处是直线,活力从秩序中爆发。直线是一种设计语言的引导线,此种设计语言的寓意在构成该空间的各种元素中得到了重申。
卫生间
卧室
主卧双面临窗,八角的建筑节奏做了最简洁的吊顶使彼此相遇。睡眠空间的重点是卸下疲惫放空一切,静谧而不“空心”;设计用褐色、米色和木炭色去组合,在包裹之中选用亲肤而光滑的简洁装饰元素,抵消厚重感又具有安全感。
儿童房
走廊
线条以或水平或垂直的形式在空间围合,与居者的行为相连,构成完整的画作。
其他
度假感的基础立于原建筑的自然条件,坐落湖边;设计扩大建筑外窗,模糊内与外的界限和距离感,通透宽敞且有种身处森林城堡的轻快感。同时更换原始门窗,确保隔热保温的物理性能。
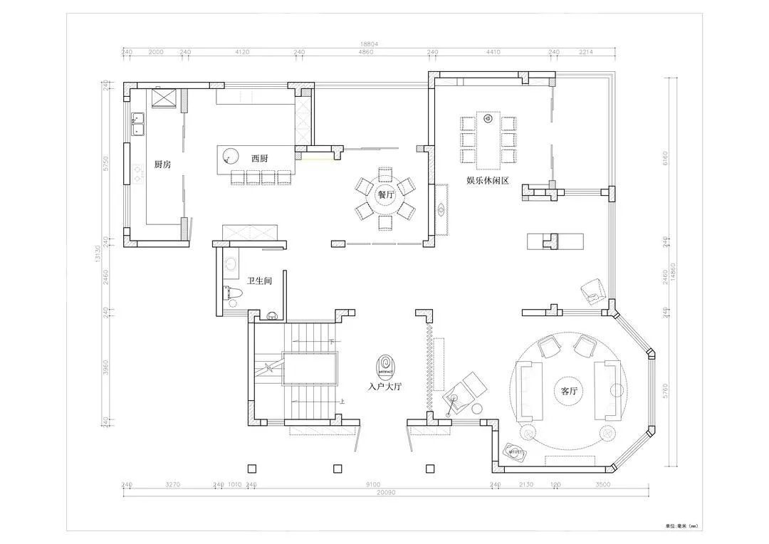
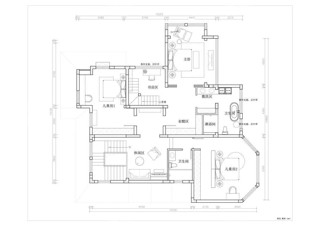
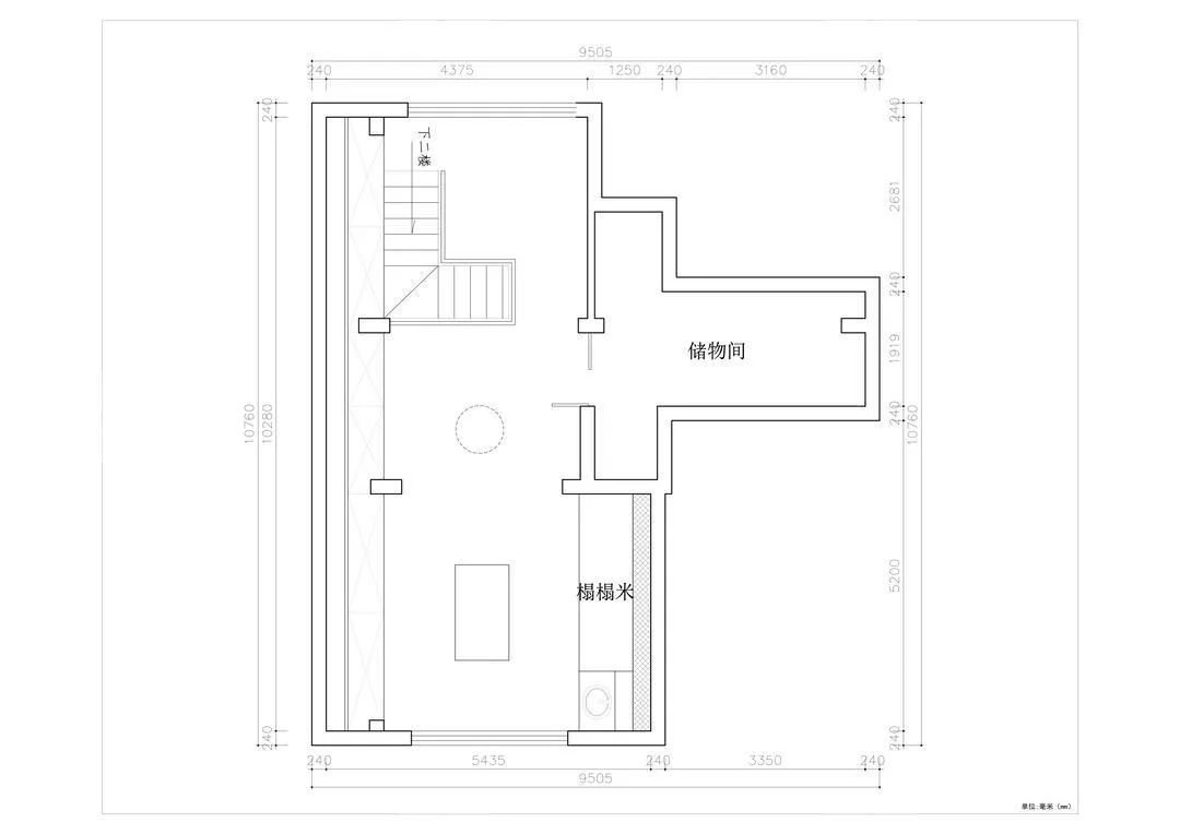
户型图
(向右滑动查看)
面积 600㎡别墅
客服
消息
收藏
下载
最近





































