查看完整案例

收藏

下载
项目位于南京新区商品房底商,快速造城运动导致的文脉困惑,与酒吧是基于对西方文化的空间想象,
有着某种本质的暗合。不满足于空洞的布景,让我们决定从内部入手,塑造项目的核心精神场域。
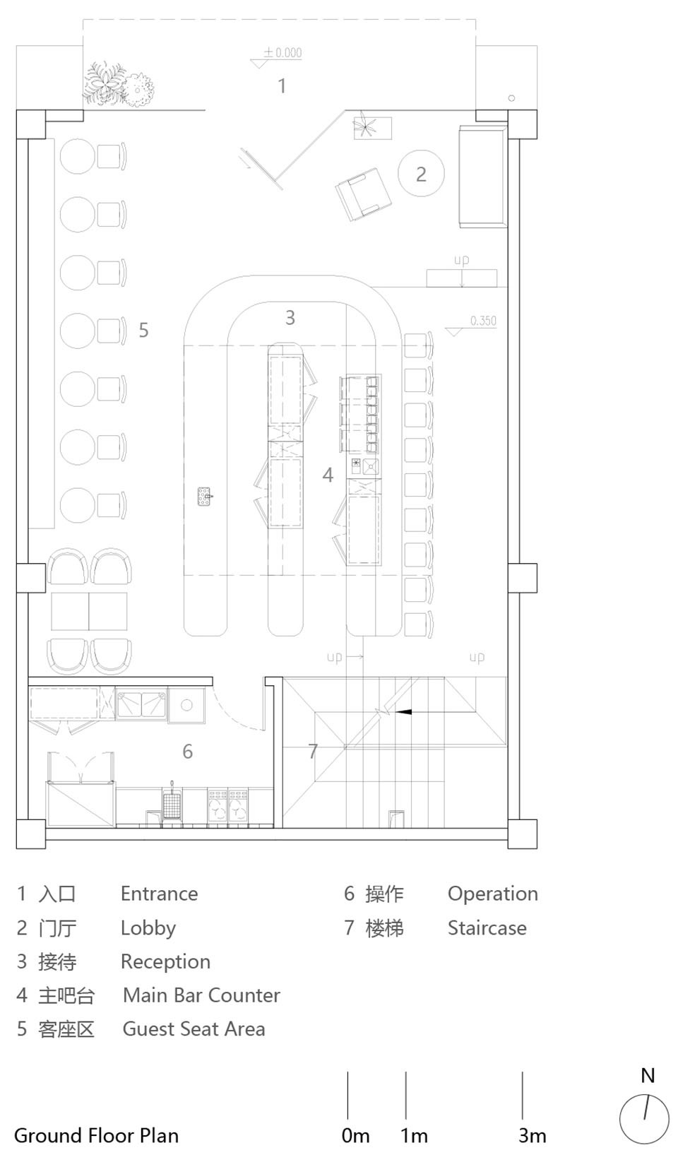
酒吧的焦点永远是吧台,平面上轴心布局U形吧台,垂直轴线便是酒墙。拆除两间商铺单元的楼梯,形成了中心区域的局部通高空间,让一种精神象征空间成为可能。人字坡顶的置入,让空间在剖面上形成切割、贯穿与赋形,是空间的显学。成型之时,突然感觉一种类似筱原一男的象征空间,创造了一种空间深度。
▼主吧台
▼客座区
▼中庭
酒吧的时间永远是夜晚,当夜幕降临,只有灯光可以照亮和重塑空间。
灵感来自于詹姆士& 特瑞尔的艺术创作,空间可以是光的装置艺术。
渐变灯光膜让光成为一种弥散介质,模糊了真实空间,类似酒精的致幻作用,带来感官放松和快感。
此时,空间仿佛失去了物理深度,去往纯粹且抽象的精神世界,这便是空间的隐学。
我们一直在探索空间的可能性,从场所、时间、材质等去探讨空间的本质。
如果说Farvahar Lounge是一种新的尝试,灯光可以是一种语言,诉说了酒吧文化在这片土壤的新精神。
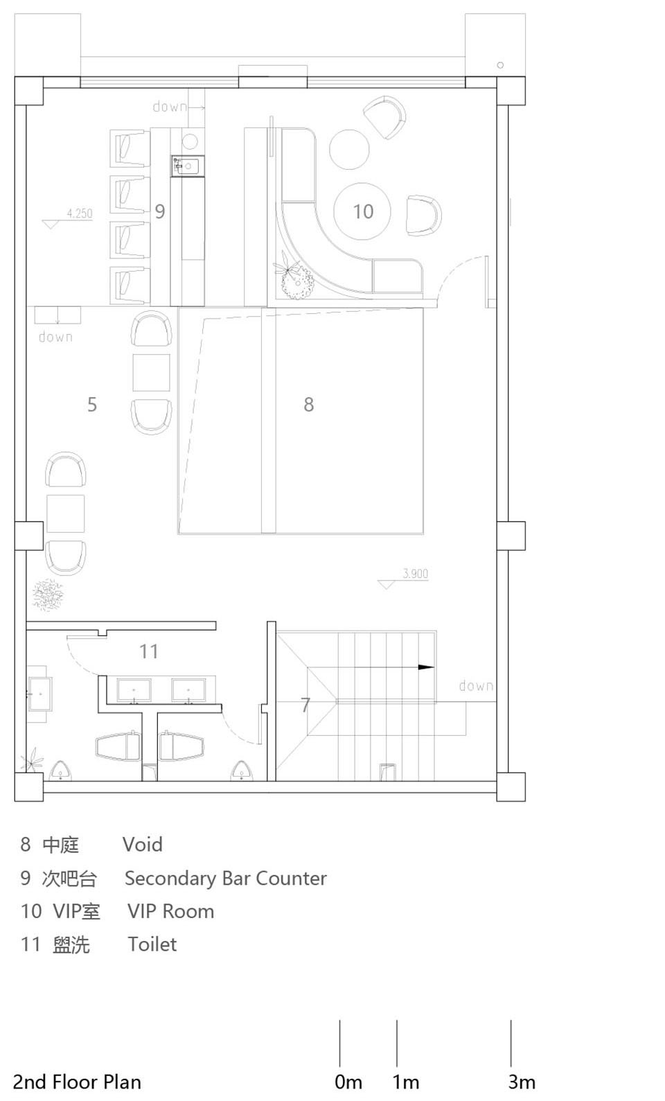
▼二层空间
▼VIP室
项目名称:Farvahar Lounge酒吧
设计公司:南京悦设空间设计
设计主创:常辰
照明顾问:光维设计
绿植景观:植地雅栽
设计时间:2023.7-2023.12
施工时间:2023.9-2023.12
项目地址:定康街40号,南京
建筑面积:200㎡
摄影版权:Ingallery、马杰睿、栖则
主要材质:玻璃砖、发光软膜、水波纹不锈钢
品牌:光维、沭然、奥妙
客服
消息
收藏
下载
最近


















