查看完整案例

收藏

下载

翻译
Design: Begum Seckin
Visualisation: Begum Seckin
Project: Aquamarin Antalya, Holiday Village in Antalya
Area: 6188 m2
Challenges:
1. Nature-inspired design
2.Natural materials
3.Accessibility and Inclusivity
4. Privacy
5.Different Holiday Experience
The Akuamarin Holiday Village project is designed for travellers seeking a blend of sports, education, relaxation, and nature-inspired experiences. My aim was to move away from traditional luxury hotels, offering guests a retreat immersed in nature. My design ethos draws from the natural world, creating a sanctuary where guests can unwind amidst breathtaking landscapes. With a focus on adventure, wellness, and sustainability, its interiors blend modern luxury with organic elements, fostering tranquility and connection with the environment. Ultimately, my goal was to provide an immersive experience that ignites the senses and fosters personal growth, celebrating nature's beauty through transformative design.
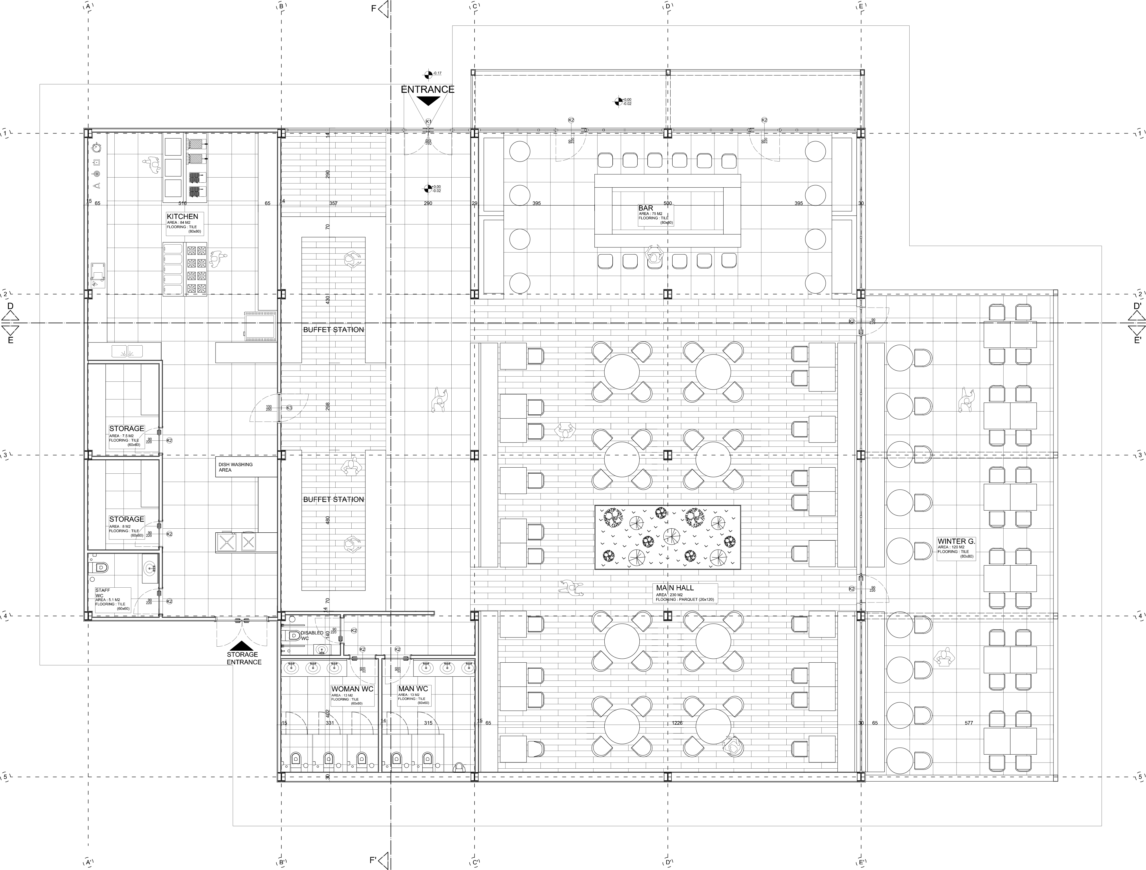
One of the key design considerations for the holiday village was the seamless organization of all units and accommodations. At the forefront was the main building, strategically positioned closest to the entrance, housing all technical facilities such as tailoring, hairdressing, and a market, as well as, crucially, reception and management offices. It was paramount to ensure easy access from accommodations while keeping a distance from the restaurant, sports, and entertainment areas. This layout was envisioned to minimize disruptions caused by new arrivals and other technical tasks, thus preserving the privacy and leisure of our guests. In line with this vision, different types of accommodations are situated on separate clusters, interconnected by walking paths, ensuring a harmonious flow throughout the village. Additionally, the restaurant, pool, and recreational facilities are conveniently located closest to the seaside, offering guests unparalleled access to leisure activities and stunning views.
In designing the lobby area, my aim was to echo the essence of the holiday village while creating a captivating atmosphere. Inspired by the serene beauty of moonlit nights, our lighting design seeks to evoke a sense of wonder and tranquility. I chosed materials like corten steel and concrete for their ability to age gracefully, blending harmoniously with nature and adding depth to the architecture.
RESTAURANT
In the restaurant, I continued with the same design ethos. Embracing a fine-dining experience, I opted for subdued lighting throughout, except for the entrance, buffet area, and washrooms. My focal point became the panoramic view of orange trees, lending a touch of natural splendor to the dining ambiance. Furthermore, a standout feature of the restaurant's design is the four-sided bar crafted from tinted concrete and mesh. This bespoke element adds a dynamic visual appeal, serving as a vibrant centerpiece amidst the serene surroundings.
ACCOMODATIONS
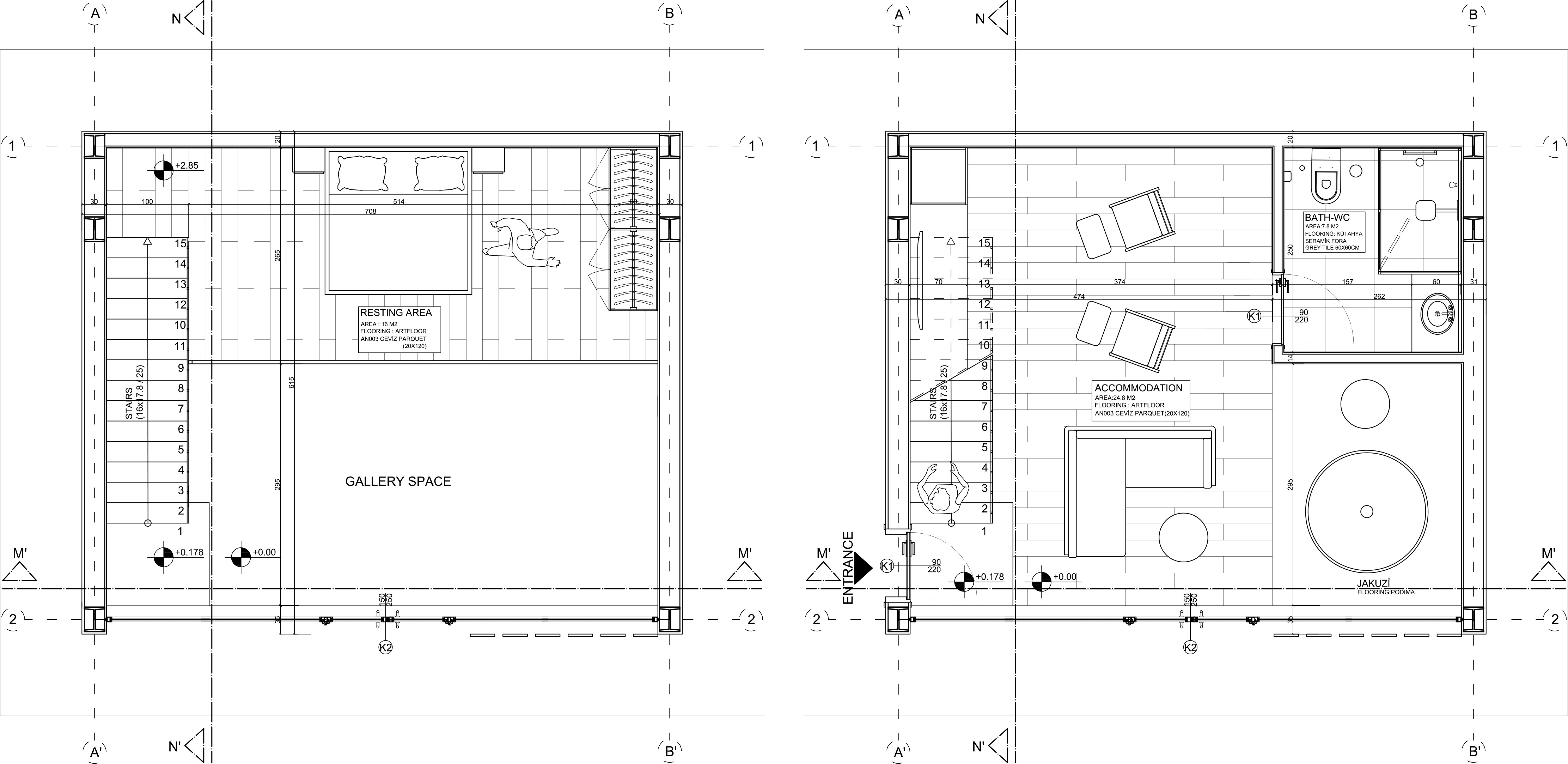
When it comes to accommodations, I spared no expense in ensuring both comfort and elegance, offering two distinct types of stays. Displayed were visual representations of rooms tailored for couples, exemplifying sophistication without compromising on comfort. Additionally, accessibility was a key consideration, with dedicated designs for each type to accommodate all guests. Materials chosen for these spaces seamlessly align with the overall aesthetic of the holiday village, ensuring a cohesive experience throughout.
GARDEN VIEW PENTHOUSE SUITE
In the section under the stairs, one of the steps forms the TV unit and there is also a mini bar area. When the visitor comes to the upper floor, that is the mezzanine designed only as a storage and resting-sleeping area.
GARDEN VIEW ROOM
客服
消息
收藏
下载
最近






























