查看完整案例

收藏

下载

翻译
Design: Begum Seckin
Visualisation: Begum Seckin
Project: Museum and Exhibition Design: 'Urban Turban'
Area: 330 sqm
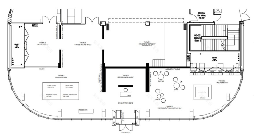
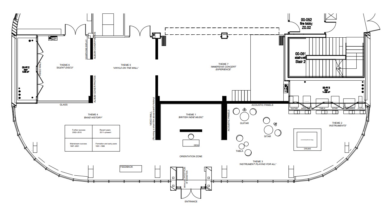
This exhibition is consist of seven different zone and each zone has different theme. These zones are ‘British Indie Music(1)’, ‘Instruments(2)’,‘Instrument Playing for All(3)’,‘History(4)’,‘Vinyls on the Wall(5)’, Silent Disco(6)’, and finally ‘Immersive Concert Experience(7)’.
The first zone is the orientation zone in the Gallery. The orientation zone consists of the braille layout plan display, the gallery guide small brochure display, the welcoming desk and finally the feedback totem.
The first zone after the orientation zone consists of the first theme, called 'British indie music', where visitors will learn about British indie music.
The first zone is followed by the second zone called ‘Instruments’ and the third zone called ‘Instrument Playing for All’. In fact, the second and third zone should be evaluated together because some of the instruments exhibited in the second zone have been transformed into an instrument playing area in the third zone so that visitors can interact with the instruments. In the second zone, seven different instruments frequently used by the ‘Cornershop’ band are included.
In the fourth zone, called ‘History’, information about the band's history of more than thirty years is displayed. Chronological history flow is divided into four as ‘Formation and early years 1991–1996’, ‘Mainstream success 1997–2001’, ‘Further success 2002–2010’, ‘Recent years 2011–present’
The fifth zone, called ‘Vinyls on the Wall’, is an exhibition corridor containing the album covers of the band's nine albums so far. There are also tactile versions of album covers in this corridor. These works are exhibited on the ‘silent disco’ wall of the corridor. On the ‘Immersive Concert Experience’ wall, a wall art consisting of vinyls is created.
When it comes to the sixth zone called ‘Silent Disco’, it is aimed that everyone will enter by getting a headset at the entrance, and everyone will have a pleasant time listening to different ‘Cornershop’ songs and dancing on the dance floor, which was very popular in the old times.
When it comes to the seventh and last zone, called ‘Immersive Concert Experience’, it is aimed that all visitors feel like they are in the band's old live performances. There is a stage in this area and the hologram of the group members on the stage. In this area, 4D SOUND technology and projection mapping technology are also used.
客服
消息
收藏
下载
最近









