查看完整案例

收藏

下载

翻译
Design: Begum Seckin
Visualisation: Begum Seckin
Project: Kocaeli University Library Design
Area: 4292 sqm
Challenges:
1. Comfort problems (Acoustic, furniture, lighting, etc.)
2. Insufficient book storage, shelving, study and social space
3. Lack of organization between library units
4. Missing library units
5. Accessibility and inclusivity
The library at Kocaeli University has been a cornerstone resource for tens of thousands of students, academic staff, and library personnel since its inception. However, as time progressed, it became evident that both technical limitations and aesthetic shortcomings necessitated a redesign. My initial undertaking involved a meticulous assessment of project deficiencies and areas ripe for enhancement. These observations were methodically documented and categorised under the ‘Challenges’ section, delineating them in their broadest context.
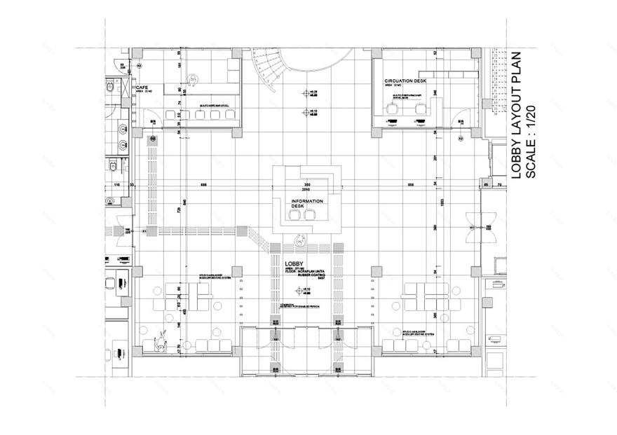
The principal concerns discerned within the existing design encompassed non-functional circulation elements such as staircases and lifts, deficiencies in layout organization, absent units within the library, and challenges pertaining to accessibility and inclusivity. Consequently, I initiated the design process by enhancing the layout plan, employing comparative diagrams to illustrate proposed improvements.
LOBBY
MAIN STUDY HALL
After establishing unit locations and conducting functional assessments, I researched standard measurements to refine the layout plan. This involved designing individual study areas, meeting rooms, bookshelves, and comfortable seating. A new lighting plan was developed to enhance illumination and reduce acoustic issues, complemented by the integration of sound-absorbing materials.
As I transitioned to the design phase, I prioritized the psychology of colours to enhance productivity. This involved considering neutral grey tones for calming walls, serene blues for work areas, warm wood finishes for library units, and vibrant but pleasing yellows, oranges, and greens for soft seating areas.
I further personalized the library design by integrating quotes from cherished literary works. Silhouettes of notable authors alongside their quotes were strategically placed on various walls, enriching the ambiance and fostering a deeper engagement with the library’s atmosphere.
MARMARA HALL
客服
消息
收藏
下载
最近



























