查看完整案例

收藏

下载
拿走的东西越多,留下的就越纯粹
——极简大师 Jil Sander
01. 山语城·极简别墅
重庆
重庆品界国际装饰
这一座与自然共生的山居别墅,坐落于重庆北碚的千年文脉之地缙云山脚下,湖山为伴,270°的视野,让家在森林中,于山湖中来不争山湖。
无论是室内外的景观,还是多功能区域,空间都选用干净的白,去除一切不必要的装饰造型,利用玻璃的无边界感赋予空间更大的趣味性。从此,嵌入山水,融入自然,寻见璞真宁静,生长趣意洒脱。
曲线的幽灵餐椅点缀出餐厅的极简氛围,在繁复的美学中凝练出轻盈的简约框架,让它在空间的视觉上巧妙平衡。
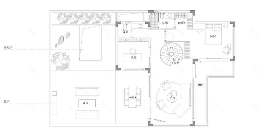
△一层平面图
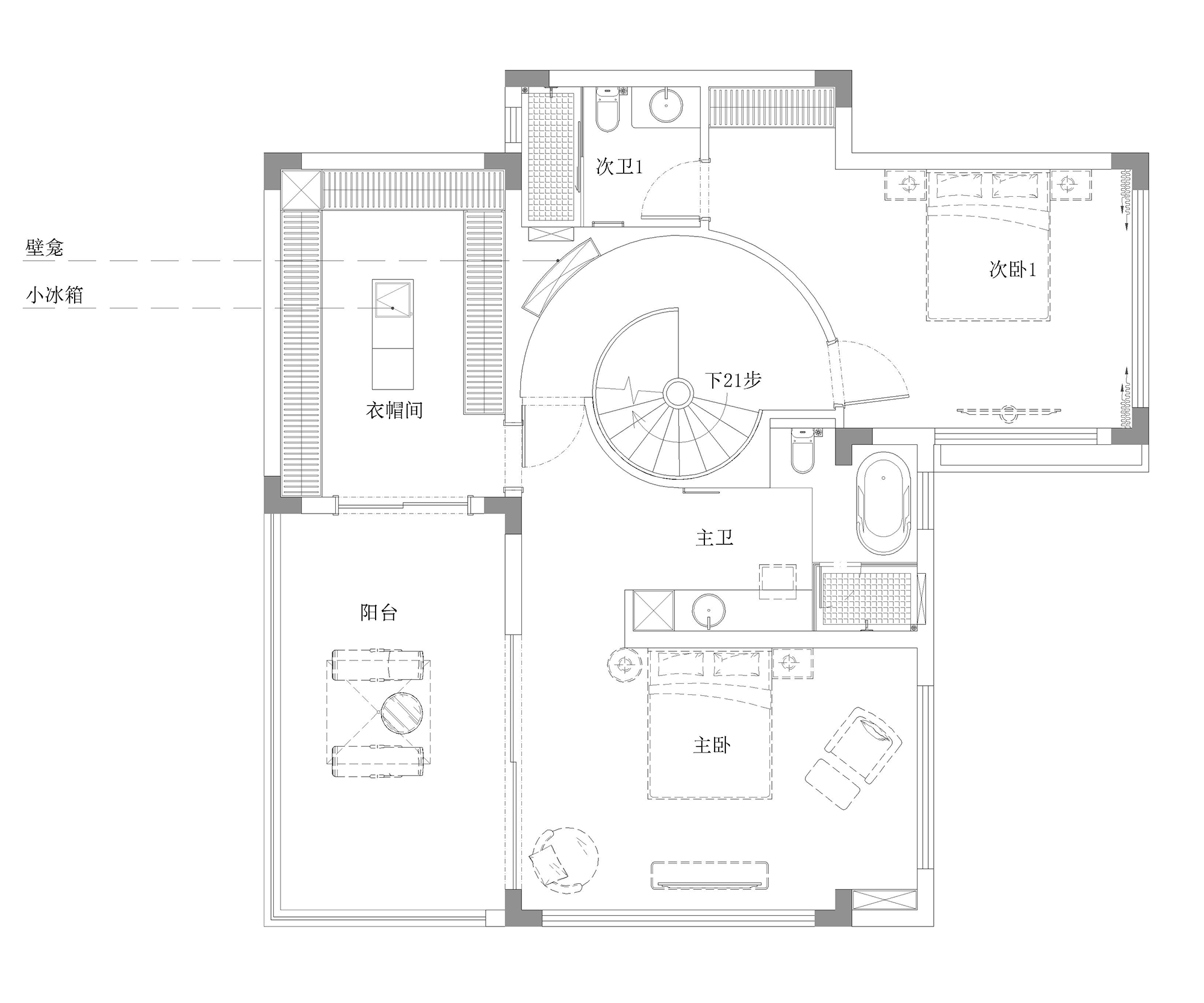
△二层平面
△三层平面
02.思南公馆私宅
地点:上海 / 设计:常恩设计事务所
本案位于这一光影交织的百年街区,260㎡的花园洋房。穿越弄堂时,深厚的文化积淀与时尚的都市气息扑面而来。
设计师以简洁的线条、纯粹的色彩营造出自然宁静的氛围,以舒适、精致和颇具艺术气息的家具作为空间特色,将前卫的生活态度注入其中。让居住者能够慢下来,感受生活之美,感受城市街区的文化积淀。
以白色作为主要色调,打造一个纯净的空间。辅之以黑色块,形成强烈的对比,产生视觉的碰撞。在横向上打开空间,让它显得轻盈,客餐厅形成流动空间。
简化空间结构与装饰,纯白的空间里,以黑色的线条串联起立面,建立连贯的关系。顶部以木包裹原始梁,营造出朴实而自然的氛围。
03.
世贸九溪墅
地点:张家港 / 设计:杰 ME 空间设计
运用隐露有度的“线”与“面”,带领富有支撑力的“体”,营造集合式的多功能架构。艺术,好似连绵乐章,直达永恒境地;光线,包容每一种动态,为穿梭的亲密契机,提供重要的仪式感。
设计旨在激活生活的奥义,描摹幸福的脉络,塑造空间的多样性,实现无阻碍的互动,在熟悉的体感中,融汇一丝独特的情结。对称的复合关系,深浅的高级张力,尽显疏密有致的视觉效果。
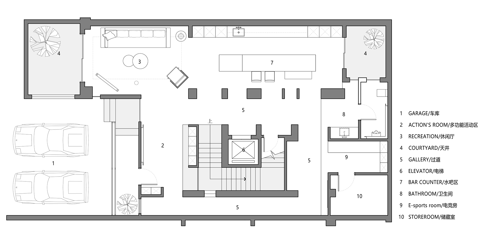
△负一平面
△一层平面
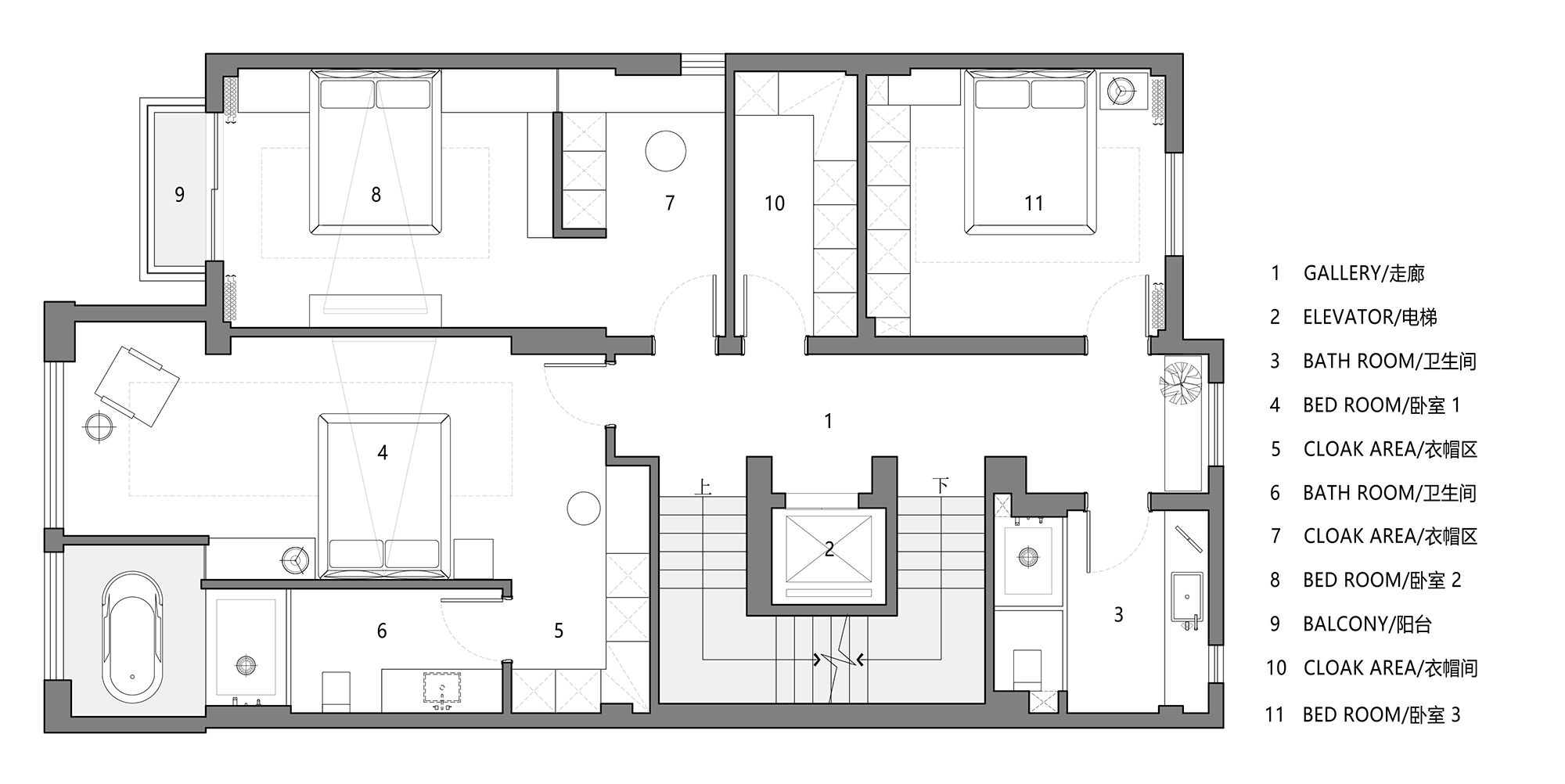
△二层平面
△三层平面
04. 知智明识,方为大家
地点:苏州 / 设计:苏州许加舍建筑装饰
意式极简”不仅是一种风格,更像是一种精神向导,一种独一无二的生活方式和态度。极简的线条,相互碰撞,覆以丰富无穷的想象力,为空间增添灵动之感。
灯光、质感、肌理素表达的空间情绪,呈现出一个干练而精致的空间。简而不失其华,奢而不显其涩。暖色的光源,附着在空间表面,沉浸在时间意识的建筑,静谧的空间更能抚慰柔软的内心。
△负二层平面图
△负一层平面图
△一层平面图
△二层平面图
△三层平面图
05. 旋律之墅
地点:中山 / 设计:广东纵横建设设计工程有限公司
从空间内部寻找契机,原木色和黑色的木饰面主导空间材质,向上打开,延伸至空间立面的纵深尺度。
走进客厅,黑白的基调与线性简洁的设计诠释着现代空间语言,在开放的布局基础上依照建筑式思维,体块相互穿插的界面,带来多维度的空间层次。
尽可能的保留大面积的玻璃窗,用「借景」的方式让室内随着每天不同光照下树木景色的深浅及光影流动。吊顶连续的木制横梁以界面,围而不限,无拘通融;由绿植,唤醒生机,悄然生长。
△轴侧图
△平面图
06.极简别墅
地点:极简别墅 / 设计:bk 蓝骑士设计
在动线设计上,以创造“游园”体验为底层逻辑,在拆除新建上,跟“悬挑”“架空”“穿插”“片墙”“体块”等西方建筑的改造手法接近,在空间情绪上,贯彻“少即是多”的理念,“眼前有景”的概念跃然眼前。
原建筑梁位较低,如果下降会加剧压迫感,为了解放天花,改将空调置于背景内,在一层半高处侧面回风。
一层平面
△二层平面
三层平面
四层平面
07. 上海徐公馆
地点:上海 / 设计:ONE HOUSE DESIGN 壹舍设计
透过近景玄关、中景过渡、远景客厅的套景手法,逐步推引、循序渐进,由收到放,张弛自如。同时又把抽象的情绪融入到室内成为人与光影间的媒介,于感性与理性之中丰盈家的想象。
温煦底色潜藏着闲情逸趣的自然生长,也诠释出家的自在与归属感。墙体本身、木饰面、烤漆柜,三者有序配合,既有着丰富的交错层次,又保留了干练的块面关系。顺势延展之际,也均暗藏充沛的收纳,表象所见之外更具功用内核。
“依托建筑结构,以轻盈的视觉形态,打开室内立体多维的交互关联,做到借光、借景、借空间,同时还不乏细节上的表现与把控。穿梭于此,能衍生出曼妙的体验。”方磊补充介绍道。
△一层平面图
△二层平面图
△三层平面图
08. 老宅改造
地点:无锡 / 设计:十二相建筑空间设计
在居室空间中,墨绿色幕墙位于中心,形成视觉焦点。围绕这堵墙四周分别是客厅、餐厅、厨、楼梯间、健身房,以及方便老人上下楼的电梯间。餐厅处的壁纸来自 Cole-Son,画面选用树木及灌木丛主题,营造出被包围的感觉。
暗红色的楼梯如丝带连接了整个建筑空间,是“延续”的象征。行走在楼梯上,透过左右墙面上的开孔小窗,可以看到厨房和健身房空间正在发生的叙事。
住宅卧室位于二层和三层,低饱和度色调营造出平静安逸的情绪空间,房间拥有辽远视野与充沛阳光。主卧床后的背景选 Wall-decò 的做旧纹理墙纸,中间穿插湖绿色的纹路,好像是老建筑遗留下的一堵墙,对空间故事线再次做出提示。
客服
消息
收藏
下载
最近








































































