查看完整案例

收藏

下载
架构师提供的文本描述。泰国东北地区银行办事处是一座4层高的办公楼,位于孔坎中心。作为泰国东北部的一个区域办事处,该建筑通过设计体现了当地的特色。美丽的当地景观,‘田野,水,和山’,东北地区,启发了这座建筑的设计布局。该地区的独特元素被用作该项目设计的一个方面。为了创造一个更好的入口,主入口大厅和接待处都被提升了一层,离开了一楼停车场等服务。
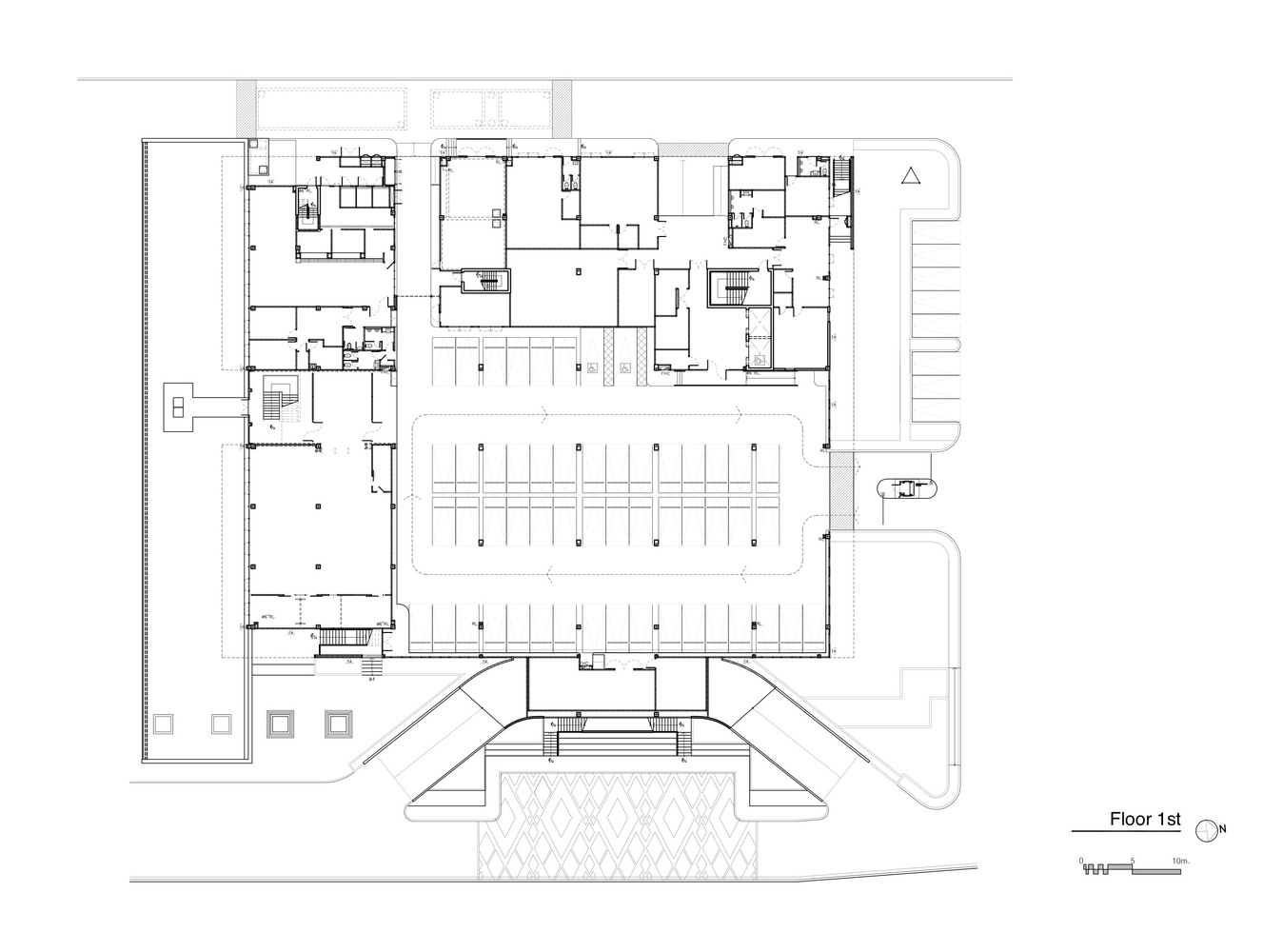
Text description provided by the architects. Bank of Thailand's Northeastern Region Office is a 4-storey office building located in the center of Khon Kaen. As a regional office of Northeastern part of Thailand, the building represents the local characteristic through design. The beautiful local landscape, ‘Field, Water, and Hill,’ of the Northeastern region inspired the design layout of this building. Unique elements from this region are used as an aspect of the design for this project. In order to create a superior entrance, the main entrance hall and drop-off were raised up a level, leaving the ground floor parking and other services.
Text description provided by the architects. Bank of Thailand's Northeastern Region Office is a 4-storey office building located in the center of Khon Kaen. As a regional office of Northeastern part of Thailand, the building represents the local characteristic through design. The beautiful local landscape, ‘Field, Water, and Hill,’ of the Northeastern region inspired the design layout of this building. Unique elements from this region are used as an aspect of the design for this project. In order to create a superior entrance, the main entrance hall and drop-off were raised up a level, leaving the ground floor parking and other services.
© Ketsiree Wongwan
c.凯西里·王湾(Ketsiree Wongwan)
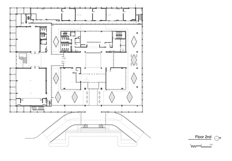
2nd Floor plan
二楼图则
© Ketsiree Wongwan
c.凯西里·王湾(Ketsiree Wongwan)
自然光在这一建筑中创造生产性的工作空间具有重要的作用。由于这个地区的炎热气候,为了减少阳光的热量,Faherade被引入,但仍然给办公室带来了相当量的自然光。
Natural light plays an important role for creating a productive working space in this building. Due to its hot climate of this region, façade was introduced in order to decrease the heat from sunlight yet still bring in a decent amount of natural light to the office.
Natural light plays an important role for creating a productive working space in this building. Due to its hot climate of this region, façade was introduced in order to decrease the heat from sunlight yet still bring in a decent amount of natural light to the office.
© Ketsiree Wongwan
c.凯西里·王湾(Ketsiree Wongwan)
光影的壮丽在这座建筑的多层立面中起着重要的作用。防晒霜图案的设计也受到昆昆省著名的面料图案“纳卡”的启发,它象征着富饶和幸福。该建筑裸露的结构设计代表了传统的谷仓,这是泰国的宝贵财富。
The magnificence of light and shadow play an important role in creating a multi-layer façade for this building. The sun-screens pattern design is also inspired by a Khon Kaen province’s well-known fabric pattern “Naka” which symbolizes the abundance and well-being. The exposed structural design of the building represents the traditional rice barn which is Thailand’s valuable treasure.
The magnificence of light and shadow play an important role in creating a multi-layer façade for this building. The sun-screens pattern design is also inspired by a Khon Kaen province’s well-known fabric pattern “Naka” which symbolizes the abundance and well-being. The exposed structural design of the building represents the traditional rice barn which is Thailand’s valuable treasure.
© Ketsiree Wongwan
c.凯西里·王湾(Ketsiree Wongwan)
客服
消息
收藏
下载
最近





























