查看完整案例

收藏

下载
© Leonid Furmansky Photography
列昂尼德·弗曼斯基摄影
架构师提供的文本描述。家是健康的地方.。杰茜街的住宅是为一个家庭设计的,因为由于场地排水能力差,老房子的自然光线和霉菌问题对健康造成不利影响。因此,建筑师的使命是设计一个合理的,经济的家,简单的目标是提供一个健康的室内环境。这个项目成为一个健康的设计,预算限制,和实用美的研究。
Text description provided by the architects. Home is where the health is... The Jessie Street Residence was designed for a family struggling with the adverse health effects of an old home with limited natural light and mold issues due to poor site drainage. As a result, the architect’s mission was to design a sensible, economic home with the simple goal of providing a healthy interior environment. This project became a study in healthy design, budget restraint, and pragmatic beauty.
Text description provided by the architects. Home is where the health is... The Jessie Street Residence was designed for a family struggling with the adverse health effects of an old home with limited natural light and mold issues due to poor site drainage. As a result, the architect’s mission was to design a sensible, economic home with the simple goal of providing a healthy interior environment. This project became a study in healthy design, budget restraint, and pragmatic beauty.
© Leonid Furmansky Photography
列昂尼德·弗曼斯基摄影
从外部开始,对每种材料和施工技术进行审查和组合,以尽量减少霉菌、霉菌和其他呼吸道污染。设计团队选择了保温混凝土形式(ICF)作为外墙系统,并接受了它为这座房子所提供的一切。除了其快速组装时间和耐久性,这种材料有4小时的耐火等级,是防潮,隔音,防霉,抗冲击,白蚁和防害虫。
From the outside in, each material and construction technique was vetted and combined to minimize mold, mildew, and other respiratory contaminates. The design team chose Insulated Concrete Forms (ICF) as the exterior wall system and embraced what it had to offer for this house. Apart from its quick assembly time and durability, this material has a 4-hour fire rating, is moisture resistant, soundproof, mold resistant, impact resistant, termite proof, and vermin proof.
From the outside in, each material and construction technique was vetted and combined to minimize mold, mildew, and other respiratory contaminates. The design team chose Insulated Concrete Forms (ICF) as the exterior wall system and embraced what it had to offer for this house. Apart from its quick assembly time and durability, this material has a 4-hour fire rating, is moisture resistant, soundproof, mold resistant, impact resistant, termite proof, and vermin proof.
© Leonid Furmansky Photography
列昂尼德·弗曼斯基摄影
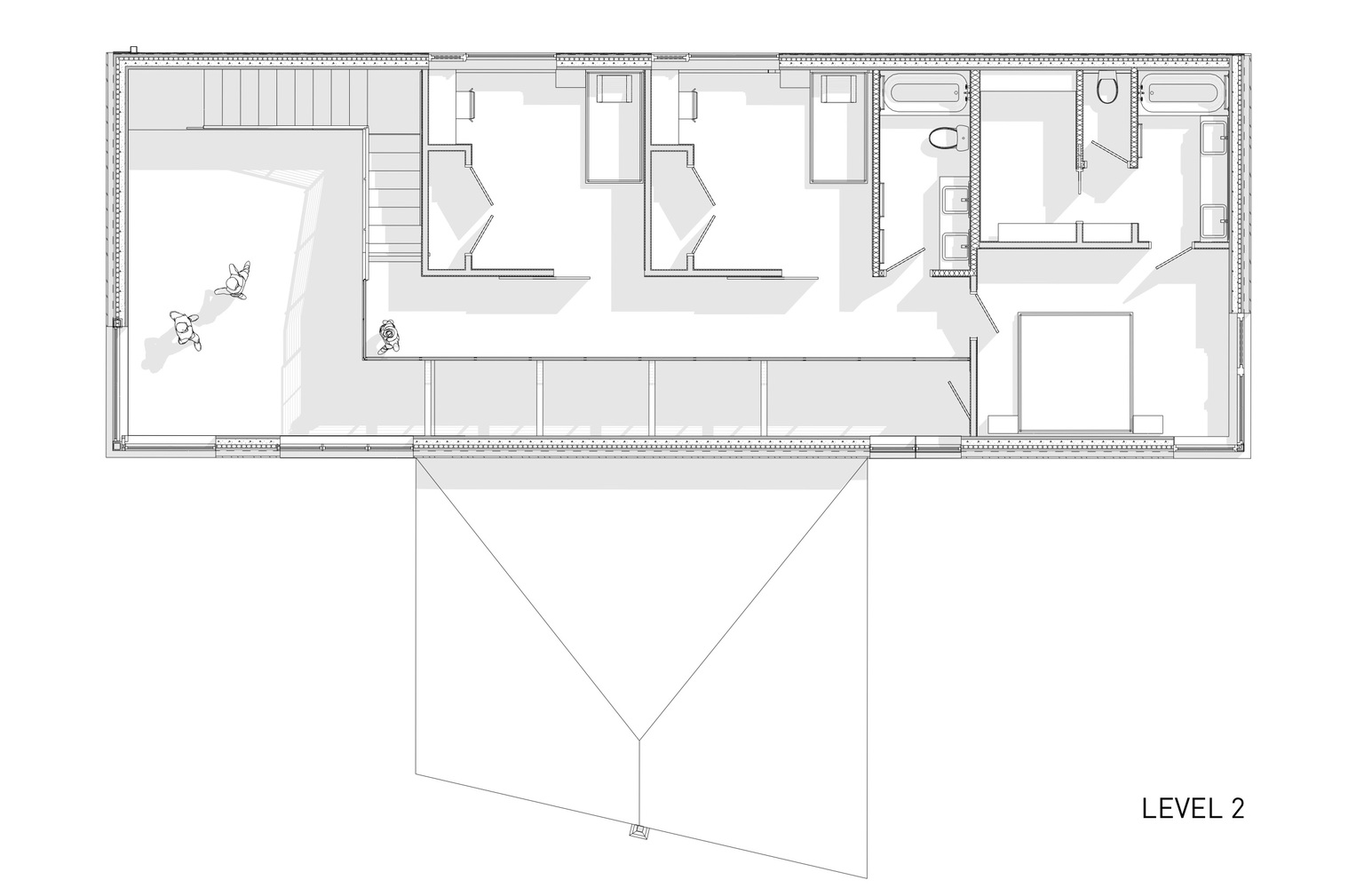
Level 1 Plan
第1级计划
© Leonid Furmansky Photography
列昂尼德·弗曼斯基摄影
其他因素,例如利用不含或低挥发性有机化合物(VOC)的产品、先进的空调和除湿,以及充足的自然采光被列为家庭室内环境的必需品。从美学的角度来看,ICF的模块化限制导致设计团队利用体积的简单性。
Other factors, such as utilizing products with no or low Volatile Organic Compounds (VOC), advanced air-conditioning and dehumidification, and ample natural daylighting were prioritized as necessities for this home’s interior environment. From the aesthetic standpoint, the ICF’s modular limitations led the design team to capitalize on volumetric simplicity.
Other factors, such as utilizing products with no or low Volatile Organic Compounds (VOC), advanced air-conditioning and dehumidification, and ample natural daylighting were prioritized as necessities for this home’s interior environment. From the aesthetic standpoint, the ICF’s modular limitations led the design team to capitalize on volumetric simplicity.
© Leonid Furmansky Photography
列昂尼德·弗曼斯基摄影
所得到的简单和整体的外壳鼓励了对结构系统的新的接管。暴露的钢梁可放心地支撑整个第二层,同时提供光和浮力的空间体验。这种方法允许显著的第二性,并且在这两个故事之间形成强烈的连接。
The resultant simple and monolithic shell encouraged a fresh take on the structural system. Exposed steel beams confidently support the entire second floor and simultaneously provide a light and buoyant spatial experience. This approach allowed for pronounced sectionality and formed a strong connection between both stories.
The resultant simple and monolithic shell encouraged a fresh take on the structural system. Exposed steel beams confidently support the entire second floor and simultaneously provide a light and buoyant spatial experience. This approach allowed for pronounced sectionality and formed a strong connection between both stories.
© Leonid Furmansky Photography
列昂尼德·弗曼斯基摄影
Architects Derrington Building Studio
Location Austin, United States
Lead Architects / Designers Tim Derrington, Blair McKay
Area 2650.0 ft2
Project Year 2018
Photographs Leonid Furmansky Photography
Category Houses
Manufacturers Loading...
客服
消息
收藏
下载
最近






















