查看完整案例

收藏

下载
架构师提供的文本描述。感性森林界面体验与森林连续性的空间处理
Text description provided by the architects. Spatial processing for the experience of sensuous forest Interface with the distance to the forest Continuity of the interface
Text description provided by the architects. Spatial processing for the experience of sensuous forest Interface with the distance to the forest Continuity of the interface
© Yoon Joonhwan
尹俊焕
建筑在本质上是软弱的。因此,我试图建造建筑,以温和的生活和自然。我想阻止建筑的空间过度地给小山供电,覆盖树木,隐藏在森林里。建筑的内部空间也揭示了自然是最佳的空间和构造的事实。为了做到这一点,森林中木材的图像在建筑空间中重新创造了一个人造元素,以延续森林。因此,我通过组合森林和光线,在雾霾中创造了森林的视觉形象。我也看到了大自然能穿透建筑空间的思想。
Architecture is weak in front of nature. Therefore, I tried to build the architecture to gently live with that weakness and be with nature. I wanted to prevent the architectural space from overpowering the hills, covering the trees, and being hidden in the forest. The inner space of the building also reveals the fact that nature is the best space and construction. In order to do this, the image of the wood in the forest recreated an artificial element in the architectural space for the continuation of the forest. Therefore, I created a visual image of the forest in the haze by combining the forest and light. I also visualized the thought that nature can penetrate the architectural space.
Architecture is weak in front of nature. Therefore, I tried to build the architecture to gently live with that weakness and be with nature. I wanted to prevent the architectural space from overpowering the hills, covering the trees, and being hidden in the forest. The inner space of the building also reveals the fact that nature is the best space and construction. In order to do this, the image of the wood in the forest recreated an artificial element in the architectural space for the continuation of the forest. Therefore, I created a visual image of the forest in the haze by combining the forest and light. I also visualized the thought that nature can penetrate the architectural space.
© Yoon Joonhwan
尹俊焕
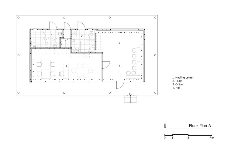
Floor plan A
平面图A
© Yoon Joonhwan
尹俊焕
室外树木模仿自然森林中的感觉,垂直木百叶窗强调森林的垂直感觉。百叶窗与森林中的松树重叠,创造了不同的深度,并强调连续性。
The exterior woods mimic feelings in the forests of nature, and vertical wood louvers emphasize the vertical feeling of the forests. The louvres overlap with the pine trees in the forest, creating a variety of depths and emphasizing continuity.
The exterior woods mimic feelings in the forests of nature, and vertical wood louvers emphasize the vertical feeling of the forests. The louvres overlap with the pine trees in the forest, creating a variety of depths and emphasizing continuity.
© Yoon Joonhwan
尹俊焕
走廊是森林与建筑空间的交汇点,是一种循环。通过这条走廊,你可以感受到大自然和人造空间之间的关系。当你在体验过道后进入时,即使是内部空间也与外部森林建立了一种关系。这种关系是由从外部伸展的树木与室内木制百叶窗及其间隔之间形成的。特别是当从里面往外看的时候,外面的松林和内部的百叶窗或柱子相互重叠,创造出不同的深度和空间感。这个场景使人们能够在视觉上体验森林中创造的各种空间。此外,木材的使用,刺激嗅觉,刺激我们的感官,并发挥它的作用,使我们感觉木材在一个更高的水平。
The corridor is an interface between the forest and the architectural space, and it becomes a circulation. You can feel the relationship between the nature and artificial space by walking through this corridor. When you come in after experiencing the corridor, even the inner space establishes a relationship with the outside forest. This relationship is formed between the trees stretched from the outside and the interior wooden louver and its spacing. Especially when gazing out from the inside, the outside pine forest and the inner louvers or pillars are superimposed on each other to create various depth and senses of space. This scene makes it possible to visually experience the various spaces created in the forest. Additionally, the use of wood, which stimulates the olfactory, stimulates our senses and plays its role in making us feel the wood presence on a greater level.
The corridor is an interface between the forest and the architectural space, and it becomes a circulation. You can feel the relationship between the nature and artificial space by walking through this corridor. When you come in after experiencing the corridor, even the inner space establishes a relationship with the outside forest. This relationship is formed between the trees stretched from the outside and the interior wooden louver and its spacing. Especially when gazing out from the inside, the outside pine forest and the inner louvers or pillars are superimposed on each other to create various depth and senses of space. This scene makes it possible to visually experience the various spaces created in the forest. Additionally, the use of wood, which stimulates the olfactory, stimulates our senses and plays its role in making us feel the wood presence on a greater level.
© Yoon Joonhwan
尹俊焕
Architects Architects Group RAUM
Location 180-2 Jangjeon-ri, Cheolma-myeon, Gijang, Busan, South Korea
Lead Architect Oh Sinwook
Partner Architect No Jeong-min
Design Team An Shin, Yu Seongcheol, Park Gyuhyun, Yoon Jeongock, Choi yunjeong ,Lim Ahyun, Kim Dayeong , Heeeun (Hannah) Oh (intern : Adlai E. Stevenson High School), Jieun (Gina) Oh (intern : Adlai E. Stevenson High School)
Area 325.83 m2
Project Year 2017
Photographs Yoon Joonhwan
Category Park
Manufacturers Loading...
客服
消息
收藏
下载
最近



































