查看完整案例

收藏

下载
架构师提供的文本描述。该空间属于Beluga设计,为大连的海洋世界服务提供了地理优势。对于主题公园设计公司来说,这是一个非常特殊的条件。
Text description provided by the architects. The space, which belongs to Beluga design, provides a geographical advantage for servicing the sunasia ocean world Dalian. That is an extraordinary condition for theme park design firm.
Text description provided by the architects. The space, which belongs to Beluga design, provides a geographical advantage for servicing the sunasia ocean world Dalian. That is an extraordinary condition for theme park design firm.
© Ziling Wang
(王子玲)
“面向大海,激发设计激情”成为空间精神的口号。
“Facing the sea, Firing the passion for design” becomes the slogan of space’s spirit.
“Facing the sea, Firing the passion for design” becomes the slogan of space’s spirit.
© Ziling Wang
(王子玲)
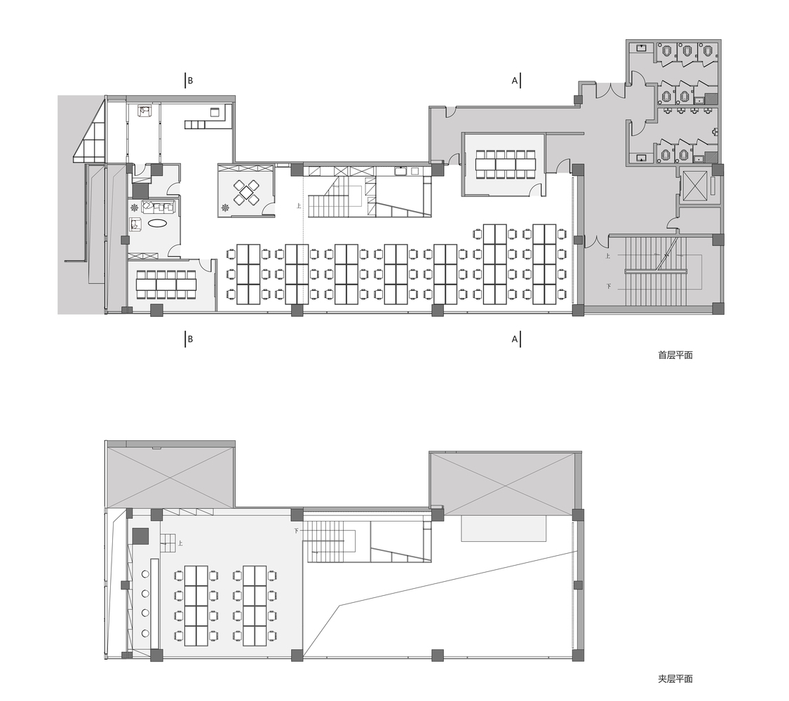
与现场座落在20年前的海洋世界大厦中,正门直通主题公园,有一个宽敞的平台。由于场地条件的特殊性,新旧关系是室内工程的基本策略。
Conversation with the site Located in twenty years old ocean world building, the main entrance is open toward the theme park directly, with a spacious platform. Due to the specific site condition, the relationship between the new and old is essential strategy of the interior project.
Conversation with the site Located in twenty years old ocean world building, the main entrance is open toward the theme park directly, with a spacious platform. Due to the specific site condition, the relationship between the new and old is essential strategy of the interior project.
Perspective section
透视截面
随着惊人的姿态,一个“橙色金属屏幕”,围绕着蓝色的正面海洋公园,成为与现场的标志性大门对话。考虑到北方城市季节的周期性,通过网状结构在地面上投下变化的阴影。作为戏剧性的开始,明亮的屏幕用橙色的语言表示室内空间的变化。
With the striking stance, an “orange metal screen”, which surrounding by blue façade of ocean park, becomes the iconic gate dialogue with the site. Considering the cycle of seasons of northern city, the changing shadow is cast on the ground through the mesh structure. As the dramatic start, the lightness screen indicates the variety of the interior space with orange language.
With the striking stance, an “orange metal screen”, which surrounding by blue façade of ocean park, becomes the iconic gate dialogue with the site. Considering the cycle of seasons of northern city, the changing shadow is cast on the ground through the mesh structure. As the dramatic start, the lightness screen indicates the variety of the interior space with orange language.
© Ziling Wang
(王子玲)
© Ziling Wang
(王子玲)
从接受的角度看,空间概念的意图表现为蓝色与橙色的深刻对比。
Looking back outside from the reception, the intention of spatial concept is represented by the contrast between blue and orange profoundly.
Looking back outside from the reception, the intention of spatial concept is represented by the contrast between blue and orange profoundly.
© Ziling Wang
(王子玲)
© Ziling Wang
(王子玲)
保持原有的体验,所有的特色项目,即阳光明媚,高度灵活,风景如画,那些建议努力保持的,都是原始的体验。根据建筑物的原始结构,有可能扩展一层覆盖多个接收区域的夹层。这些功能区逐渐被橙色语言所渗透,形成了流通的边界。
Maintain the original experience All the characteristic items, which are bright sunshine, flexible height, great sea scenery, that proposal makes efforts to keep, are the original experience. Based on the original structure of the building, it is possible to expand an interlayer that covers several reception areas. The functional areas are profiled by the penetrated orange languages gradually, which set up the border of circulation.
Maintain the original experience All the characteristic items, which are bright sunshine, flexible height, great sea scenery, that proposal makes efforts to keep, are the original experience. Based on the original structure of the building, it is possible to expand an interlayer that covers several reception areas. The functional areas are profiled by the penetrated orange languages gradually, which set up the border of circulation.
© Ziling Wang
(王子玲)
接待室、会议室、阅览室作为一种完美的结合,与橙色边界相连,达到了建筑功能与美学的统一。走在灵活的接待区域,矩阵式展览墙进入我们的眼睛,占据空间的高度。
As the perfect combination, the reception room, meeting room, reading room are linked by the orange border, that attains the unity of architectural function and aesthetics. Walking throughout the flexible reception areas, the matrix exhibition wall comes into our eyes that occupies the height of the space.
As the perfect combination, the reception room, meeting room, reading room are linked by the orange border, that attains the unity of architectural function and aesthetics. Walking throughout the flexible reception areas, the matrix exhibition wall comes into our eyes that occupies the height of the space.
© Ziling Wang
(王子玲)
根据材料的细节考虑成本低,主要材料需要容易制作,同时注重材料的温度和触觉性。作为互补的色彩,我们的建议是利用温暖明亮的橙色来定义办公室的氛围,同时拥抱蓝天、海洋和建筑。同时,作为背景的水磨石地板连接着不同的材料。在总体空间战略上,基于有限的预算,我们努力进行有约束的设计,实现了一个清晰、纯净的空间场景。
Details in accordance with materials To consider the low budget, the main materials need to fabricate easily while focusing on temperature and tactility of materials. As the complementary hues, our proposal is to utilize the warm and bright orange to define the atmosphere of the office, while embracing by the blue sky, ocean, and buildings. Meanwhile the terrazzo floor as the background connects different materials. For the overall space strategy, based on the limited budget, we struggle to make restrained design, which achieves a clear and pure scenario of space.
Details in accordance with materials To consider the low budget, the main materials need to fabricate easily while focusing on temperature and tactility of materials. As the complementary hues, our proposal is to utilize the warm and bright orange to define the atmosphere of the office, while embracing by the blue sky, ocean, and buildings. Meanwhile the terrazzo floor as the background connects different materials. For the overall space strategy, based on the limited budget, we struggle to make restrained design, which achieves a clear and pure scenario of space.
© Ziling Wang
(王子玲)
客服
消息
收藏
下载
最近


























