查看完整案例

收藏

下载
架构师提供的文本描述。BaanRorb(泰国语中的“บ้านรอบ”,字面意思是“环绕/循环/圆屋”)是一个由即将退休的父母和2名家庭成员组成的泰华人家庭的住所。家庭最初的想法是有一个简单而宁静的空间来享受花园和空间,这将为家庭成员创造更多的互动机会。
Text description provided by the architects. BAAN RORB (or ‘บ้านรอบ’ in Thai which literally means ‘Around / Surround / Cycle / Round HOUSE) is a residence for a Thai- Chinese family consisting of the retiring parents and 2 family members. The initial idea from the family is to have a simple and serene space to enjoy the garden and space that will create more chances for family member to interact to each others.
Text description provided by the architects. BAAN RORB (or ‘บ้านรอบ’ in Thai which literally means ‘Around / Surround / Cycle / Round HOUSE) is a residence for a Thai- Chinese family consisting of the retiring parents and 2 family members. The initial idea from the family is to have a simple and serene space to enjoy the garden and space that will create more chances for family member to interact to each others.
© Wison Tungthunya / W Workspace
Wison Tungthunya/W工作区
尽管有3200平方米。土地的面积,似乎周围的环境给予相当有限的选择在设置方案,因为周围的一半是6层建筑在北部和西部,有100多个房间面向工地。因此,主要问题是给予家庭成员隐私,防止周围环境给家庭成员造成干扰,同时增加家庭成员之间的互动可能性。
Despite almost 3,200 sq.m. land size, it seems the environment surrounding the site give quite limited option in the setting alternatives since half of the surrounding are 6 storey buildings in the north and west with more than 100 rooms facing toward the site. Therefore, the main issue is to give privacy and to prevent the surrounding that would create the disturbance for family members, and at the same time increase the interaction possibilities between family members.
Despite almost 3,200 sq.m. land size, it seems the environment surrounding the site give quite limited option in the setting alternatives since half of the surrounding are 6 storey buildings in the north and west with more than 100 rooms facing toward the site. Therefore, the main issue is to give privacy and to prevent the surrounding that would create the disturbance for family members, and at the same time increase the interaction possibilities between family members.
© Wison Tungthunya / W Workspace
Wison Tungthunya/W工作区
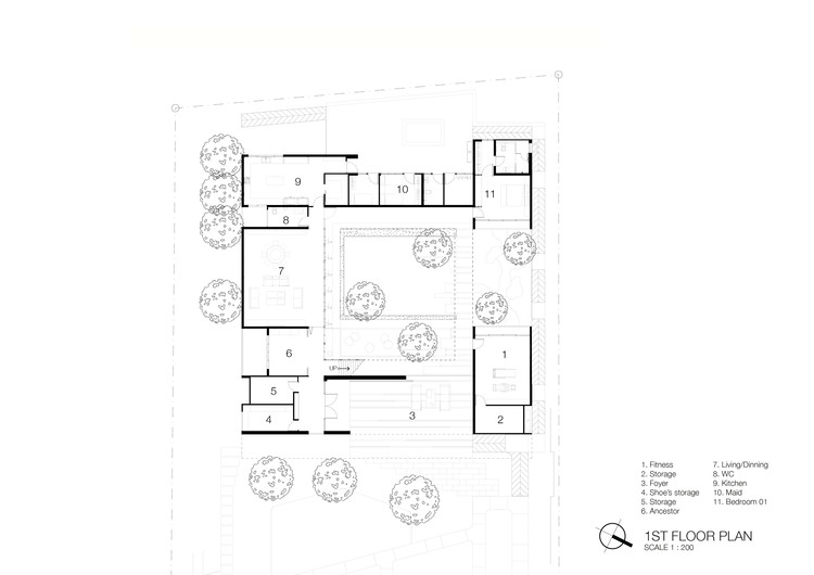
鉴于该地盘的条件及工程的主要目的,如建议将房屋设至地盘的最末端,并使用厨房、女佣室及厕所等所有服务范围内所需的固体,以防止周围的建筑物看到其内部的家庭活动。从地面到二楼围绕着内部庭院运行的主要特征是让家庭成员有更好的机会见面和发展他们的关系,同时欣赏自然的庭院。
With such conditions of the site and the main objective of the project, IF proposed the idea to set the house to the furthest end of the site and use all the necessary solids of all service areas such as kitchen, maid’s room and toilet to prevent all the surrounding building from seeing the family activities inside. The main circulation that runs around the internal courtyard from ground to the second floor is the main feature that give the family member a better chance to see each other and grow their relationship while appreciate the natural court.
With such conditions of the site and the main objective of the project, IF proposed the idea to set the house to the furthest end of the site and use all the necessary solids of all service areas such as kitchen, maid’s room and toilet to prevent all the surrounding building from seeing the family activities inside. The main circulation that runs around the internal courtyard from ground to the second floor is the main feature that give the family member a better chance to see each other and grow their relationship while appreciate the natural court.
Ground floor plan
所有共同的功能,如中国精神之家,祖先室,居住和餐饮空间都在底层,可以看到彼此从各个地区。第二层包括家庭房间和卧室,内部天窗,以获得足够的自然光和通风。
All shared functions such as Chinese spirit house, ancestor room, living and dining space are on the ground floor and can see each other from each area. The second level consists of family room and bedrooms with internal skylight to receive enough natural light and ventilation.
All shared functions such as Chinese spirit house, ancestor room, living and dining space are on the ground floor and can see each other from each area. The second level consists of family room and bedrooms with internal skylight to receive enough natural light and ventilation.
© Wison Tungthunya / W Workspace
Wison Tungthunya/W工作区
房子的气氛和色调是以温暖的色调为基础的,带有色彩的和木质的,除了主要的特点是以钢结构构造的主循环,它看起来轻盈而独特。这些结构来打开折叠窗,以提供充分的通风时,需要。
The mood and tone of house based on the warm tone with color with and woods, except the main feature which is the main circulation that is constructed by steel structure which looks light and distinctive. Those structures come with opening folding windows to give full ventilation when needed.
The mood and tone of house based on the warm tone with color with and woods, except the main feature which is the main circulation that is constructed by steel structure which looks light and distinctive. Those structures come with opening folding windows to give full ventilation when needed.
当然,每年的大部分时间里,风都是从南方吹来的,就像太阳在陡峭的角度上吹来的一样。因此,大门的开口有一个有盖的露台来享受前院,这使得整个房子大部分时间都能通风,但在二楼需要树木的帮助,作为第一层屏蔽层,隔热玻璃作为第二层,以保护房子不受阳光的照射。
Naturally, the wind would come from the south most of the year and the same as the sun that would come along in the steep angle. Therefore, the opening in the main entrance that have a covered terrace to enjoy the front yard allows the ventilation throughout the house most of the day but on the second floor would require a help from the trees as the first screening layer and the insulated glass as the second layer to protect the house form the sun.
Naturally, the wind would come from the south most of the year and the same as the sun that would come along in the steep angle. Therefore, the opening in the main entrance that have a covered terrace to enjoy the front yard allows the ventilation throughout the house most of the day but on the second floor would require a help from the trees as the first screening layer and the insulated glass as the second layer to protect the house form the sun.
© Wison Tungthunya / W Workspace
Wison Tungthunya/W工作区
BaanRorb的设计是一种尝试,旨在了解和‘内外’的房子周围,发展空间,给宁静,放松和家庭成员关系的连续性‘周围的内部法庭。
The design of BAAN RORB is an attempt to understand and ‘inner and outer’ round of the house and develop space that give the serenity, relaxing and the continuity of family members relationship ‘around’ the internal court.
The design of BAAN RORB is an attempt to understand and ‘inner and outer’ round of the house and develop space that give the serenity, relaxing and the continuity of family members relationship ‘around’ the internal court.
© Wison Tungthunya / W Workspace
Wison Tungthunya/W工作区
Architects Integrated Field
Location Thailand
Area 897.0 m2
Project Year 2017
Photographs Wison Tungthunya / W Workspace
Category Houses
Manufacturers Loading...
客服
消息
收藏
下载
最近

































