查看完整案例

收藏

下载
基地位于近有400年历史的浙江桐庐莪山畲族乡戴家山。“戴家山8号”是村落中一座颇具历史保护价值的屋宅,位于整个村子的中心地带。近有小溪庭院,远则是层峦叠翠。山居生活是这里最吸引人的魅力所在。如何最大程度的将山居生活带入到民宿项目中,成为了设计师最关注的问题。
8号楼山墙正对人流来向,是打造品牌招示性的重要界面。同时,8号楼与15号楼场地有2.6M的场地高差,8号楼二层标高与15号楼首层高差0.7M,因此在入口设计上,增加了空间的竖向联系,打造出一个联动空间。
外立面保留了传统的黄泥特色,与原有村庄融为一体,同时巧妙利用先锋云夕图书馆这一视觉焦点,使“戴家山8号”的标识和云夕图书馆的标识在视线的同一水平线上,勾连起“异乡读者”的公共生活纽带。
8号楼北侧是村子的广场,与村子的公共空间紧密接触,是项目的一个相对弱势,因此巧妙设计了一个竹制表皮立面,强化建筑的木土性,既相对隔离了广场与客房,随机的矩形开孔又形成了一个半开放的对话空间,强调与广场之间村民生活的对话。
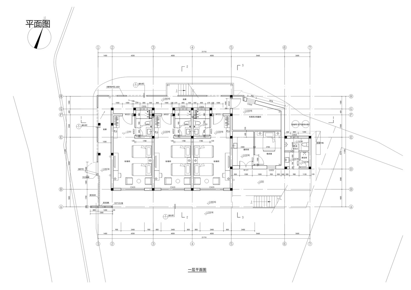
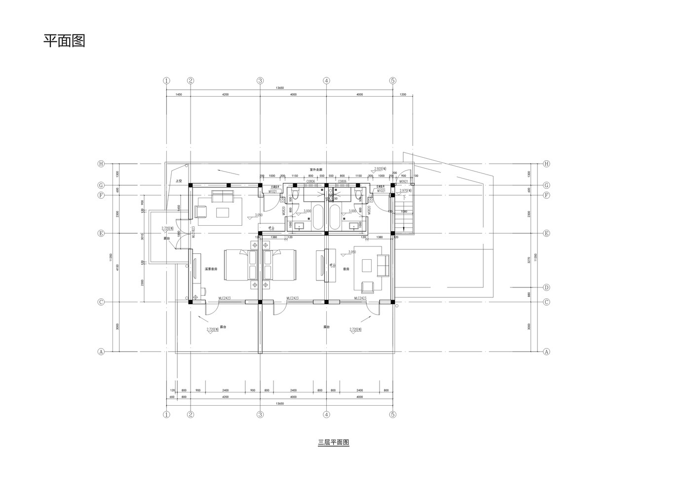
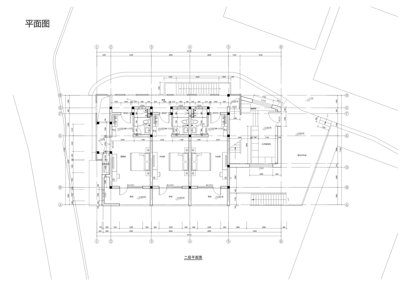
8号楼的沿溪立面则是项目的一大亮点,三层层高,每一层的观景体验不同,将自然景观与居住私密性之间巧妙平衡,打造出不同视角的溪景房。
一层受前排房屋视线遮挡,视野较窄,但同时私密性较高,将这部分设计成庭院空间,引入自然景观,扩大了居住者的山居生活空间。
沿溪面的长廊设计成了开放式餐吧,营造出一个临溪戏水、观景的空间,让入住者能够在各种角度接触到自然与乡土风情。
项目的内部设计则没有采用过多的现代装饰元素,从接待区域到客房,都以自然怡人的原木气质为主。
15号楼的内部改建对原有木结构进行了保留,以突出当地特色。同时增加内部钢结构,以解决木结构隔音的问题,同时充分利用内部高度空间,形成不同房型。
8号楼和15号楼的12间客房,被打造成了溪景房、山景房、星空房、庭院房,将春天的菜花梯田、夏季的青翠竹林、秋季的稻谷、冬季的雾凇引景入室,不同的景致,塑造出不同的光线和气流。
房间的硬件设施,则体现了精品民宿的当代功能性。客房全部覆盖WiFi,采用了高级取暖设备,床品和沐浴用品按五星级酒店以上的标准配置,保证了舒适、卫生和便捷。
走进房间,揽景入怀;推开房门,公共空间也是与自然与人文的对话空间,走出民宿,就能和路边的阿婆阿伯聊天,品尝畲乡最具特色的小吃。“引入地道的山乡生活”的设计理念,在“戴家山8号”得到了成功的实现。
客服
消息
收藏
下载
最近






































