查看完整案例

收藏

下载
© Maira Acayaba
(Maira Acayaba)
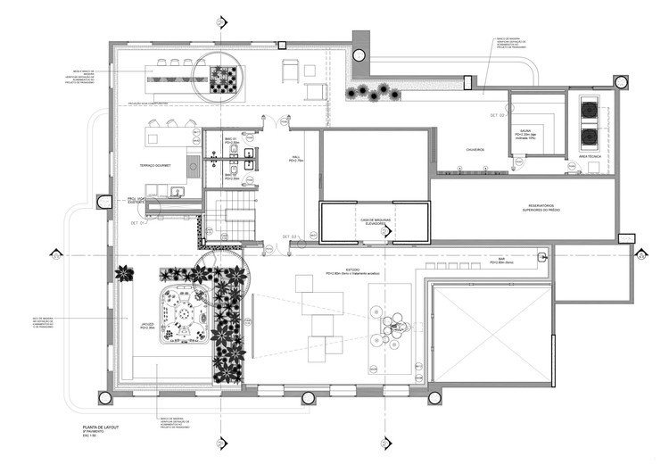
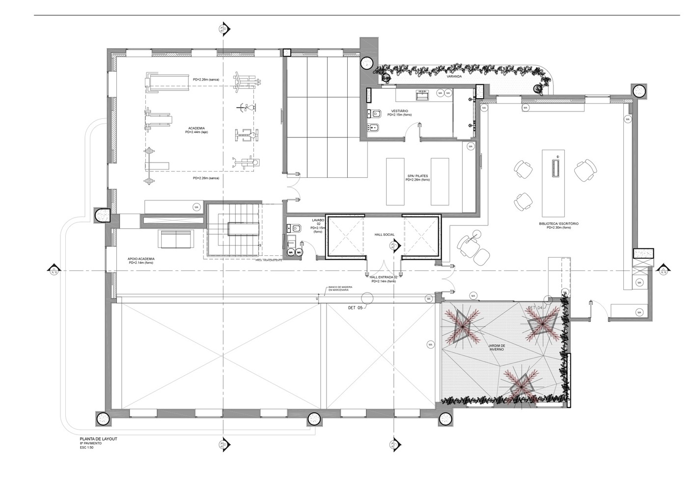
架构师提供的文本描述。这座从未有人居住的三公寓楼占地900平方米,位于圣保罗(巴西)Ibirapuera公园附近。它最初的环境是支离破碎和黑暗的。该项目由Casa 14 Armisetura、Mariana Andersen和Mariana Guardani的建筑师签署,旨在整合地板和强调材料的特性。
Text description provided by the architects. This never inhabited triplex covers 900m2 and is located nearby the Ibirapuera Park, in São Paulo (Brazil). Its original environments were fragmented and darkish. The project, signed by the architects of Casa 14 Arquitetura, Mariana Andersen and Mariana Guardani, aimed at integrating the floors and stressing the character of the materials.
Text description provided by the architects. This never inhabited triplex covers 900m2 and is located nearby the Ibirapuera Park, in São Paulo (Brazil). Its original environments were fragmented and darkish. The project, signed by the architects of Casa 14 Arquitetura, Mariana Andersen and Mariana Guardani, aimed at integrating the floors and stressing the character of the materials.
© Maira Acayaba
(Maira Acayaba)
© Maira Acayaba
(Maira Acayaba)
宽敞的墙壁开口提供了一个视觉联系,不同的环境,在每一个公寓的三层楼。该项目还强调环境、花园和循环之间的关系。楼梯是一个折叠的钢板,底部是木头,顶部是白色的石头,这是连接三个甲板的雕塑元素。垂直结构非常突出。
The generous openings of the walls offered a visual connection between different environments in each of the three levels of the apartment. The Project also emphasized the relationship between the environment, gardens and circulations. The staircase - a folded steel plate lined with wood on the bottom and white stone on the top - appears as the sculptural element that interlinks the three decks. The vertical structure stands out.
The generous openings of the walls offered a visual connection between different environments in each of the three levels of the apartment. The Project also emphasized the relationship between the environment, gardens and circulations. The staircase - a folded steel plate lined with wood on the bottom and white stone on the top - appears as the sculptural element that interlinks the three decks. The vertical structure stands out.
© Maira Acayaba
(Maira Acayaba)
每一层楼都是为特定用途而设计的。按照这个顺序:生活、工作和休息。第一层是客房、厨房和服务区。第二个设计的目的是接收一个由5000种图书组成的图书馆,该图书馆被整合成一个花园,居民在那里工作、阅读和写作。最后一层是休闲区,有音乐工作室、热水浴缸、桑拿和烧烤,所有延伸部分都有一个垂直花园。
Each floor was designed for a specific use. In this order: live, work and rest. On the first level are the rooms, kitchen and service area. The second was designed to receive a library of 5 thousand titles integrated into a garden where the resident works, reads and writes. The last level brings the leisure area, with a music studio, hot tub, sauna and a barbecue, permeated by a vertical garden in all its extension.
Each floor was designed for a specific use. In this order: live, work and rest. On the first level are the rooms, kitchen and service area. The second was designed to receive a library of 5 thousand titles integrated into a garden where the resident works, reads and writes. The last level brings the leisure area, with a music studio, hot tub, sauna and a barbecue, permeated by a vertical garden in all its extension.
© Maira Acayaba
(Maira Acayaba)
© Maira Acayaba
(Maira Acayaba)
这些家具照亮了巴西的设计。艺术作品,地毯等,建立了与没有装饰品和直线住宅的对立面。
The furniture sheds light on the Brazilian design. The art pieces, carpets, among others, establish a counterpoint to the absence of ornaments and the straight lines of the residence.
The furniture sheds light on the Brazilian design. The art pieces, carpets, among others, establish a counterpoint to the absence of ornaments and the straight lines of the residence.
© Maira Acayaba
(Maira Acayaba)
主要材料-木材,玻璃,轻石和植被-允许与环境对话,并创造了一个发光和鼓舞人心的气氛,作为一个作家在家里。
The main materials - wood, glass, light stone and vegetation - allow a dialogue with the environment and produce a luminous and inspiring atmosphere for the residente, who works as a writer at home.
The main materials - wood, glass, light stone and vegetation - allow a dialogue with the environment and produce a luminous and inspiring atmosphere for the residente, who works as a writer at home.
© Maira Acayaba
(Maira Acayaba)
Architects Casa14 Arquitetura
Location São Paulo, State of São Paulo, Brazil
Architect in Charge Mariana Andersen e Mariana Guradani (Casa14 partners)
Other Participants Max Heringer and Gabriele Azevedo
Area 900.0 m2
Project Year 2015
Photographs Maira Acayaba
Category Housing
Manufacturers Loading...
客服
消息
收藏
下载
最近

















































