查看完整案例

收藏

下载
这所客房是为我们自己建造的,部分是由我们自己建造的。这栋建筑曾是加泰罗尼亚家族财产的前猪圈。这栋建筑需要翻新,我们想要把屋顶上的石棉板去掉。
其结果是,在旧的混凝土结构的顶部增加了新的钢梁。这就创造了一个阁楼,让客人在冬天保持温暖,夏天凉爽。为了保持外部完整的新墙体,在内部建造了新的光束和绝缘层。
就像公用事业建筑的惯例一样,没有人试图隐藏这些增加和变化。上面的部分有一个光滑的灰泥,与旧的灰泥相比,它有很多结构,旧窗户的轮廓在不同的石膏颜料层中是可见的。
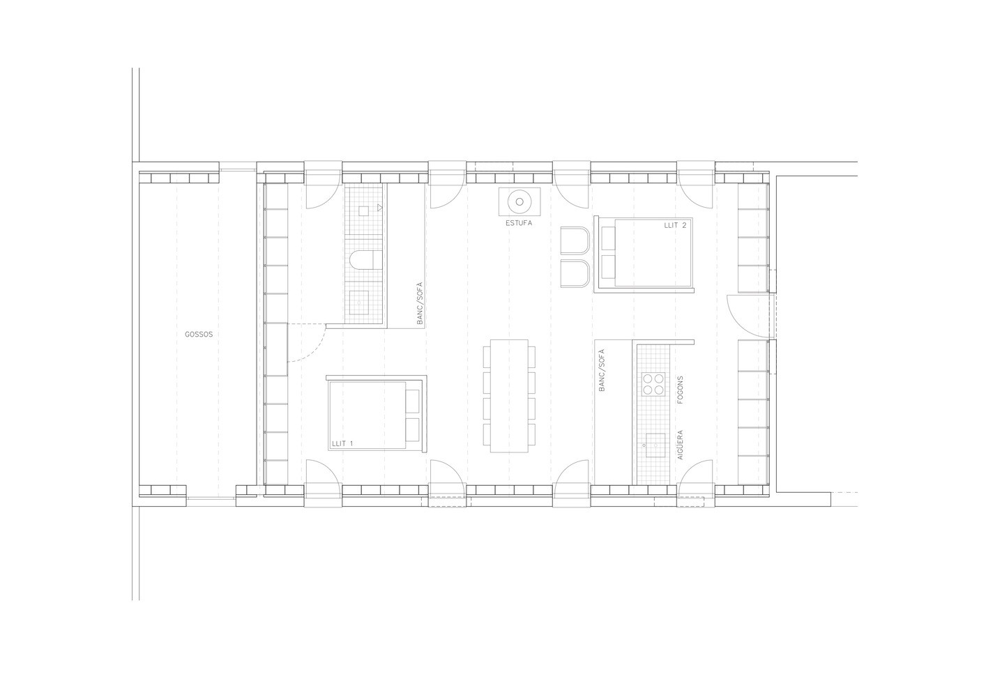
由于室内的天花板很低,所以我们想让空间尽可能的开放,并受到建筑最初使用的启发。低矮的墙壁把两张床、厨房和浴室从主房间分开。浴室的墙壁是用玻璃板和木窗帘完成的,当客人来访时,要达到一定的隐私。
增加了一层新的磨碎混凝土地板。所有的墙壁、天花板和混凝土横梁都被漆成白色,以中和不同的材质和纹理。在房间的两端,墙壁都被木制的架子所覆盖,里面装着所有的储藏物。唯一壁橱的木门也用来关闭浴室。
建造货架的方式类似于在田野上随处可见的典型苹果盒子。这是一个非常宽容的系统,考虑到墙壁和地板根本就不是笔直的。
厨房的长凳、洗脸盆和淋浴都是用砖和钢梁在工地上建造的。陶瓷是来自该地区的手工制作的。
两个大的木凳是自然的挂起点,在需要的时候充当客人的床。松木长椅、床以及大橡木桌子都是由当地的木匠制造的。
因为只有一个大房间,所以安装被保持在最低限度。空气在整个空间中循环,电子装置集中在木墙上,火点作为唯一的加热来源是充分的。窗户面向东方和西方,通过调节外部的木窗帘,室内气候可以很好地控制。
客服
消息
收藏
下载
最近

























