查看完整案例

收藏

下载
近日,中建一局华南公司承建的深圳国际美术馆项目地下室结构封顶,全面冲出“正负零”。建成后,将成为粤港澳大湾区具有国际影响力的文化地标,展示国际优秀文化艺术,促进深圳文化事业的持续发展。
项目施工现场
深圳国际美术馆
设计方案
从光明科学公园看美术馆北向外观
01、项目简介
深圳国际美术馆项目位于深圳光明科学城中心区,用地面积 5.3 万平方米,总建筑面积约 13.5 万平方米,北邻大型城市公园——占地 216 公顷的光明科学公园,东邻建设中的深圳科技馆新馆。
区域位置
02、设计理念
深圳国际美术馆项目由中国工程院院士、中国建筑设计研究院总建筑师崔愷领衔,一合建筑设计研究中心于海为团队设计。采用和合环境、连通场地,中西共济、交融古今,传承经典、序列空间,复合开放、多元包容的设计理念,将地块的总体规划、建筑设计、功能布局和景观设计有机整合。
概念草图崔愷 / 绘
“东西方的文化交流,一直处于一种长久的语境,从历史上一直到今天,东西方文化、社会之间的不同与复杂状态,都说明了东西方文化交流的重要性和困难,所以这座美术馆所承担的实际上是促进东西文明交流的重大意义。
首先,我们希望把馆中的西方艺术收藏放在具有一种‘经典性’的西方文化空间当中,为这些不同时期的艺术作品提供适宜的展示环境;同时,在深圳光明新区山水环境非常好的自然环境下,我们又希望它呈现出一种人和自然相融合的东方语境,因此形成的南北并列体量和空间表达了东西方文化并置和交流的核心理念。
我们更重视的是美术馆跟周围城市的关系:邻近公园这侧,与旁边的科技馆形成一体,创造无边界、开放的建筑跟自然之间的融合;城市道路这侧,借助美术馆的建筑体量去形成一段有尺度感和文化记忆的城市道路,创造一个有意义的城市文化场所。”——崔愷
用地及概念分析
和合环境,连通场地
设计充分考虑了与周边城市界面、深圳科技馆新馆、科学公园的整体协调关系,从空间形态、流线组织、环境因素等综合考虑,创造多层次架空平台等开放共享空间,将市民引入,创造公共文化价值。通过绿坡及水系与科学公园绿化环境顺畅衔接,首层建筑出入口与公园便捷连通,使深圳国际美术馆更好的融入环境,成为城市的有机组成。
总平面图
南向鸟瞰
主入口平台
中西共济,交融古今
设计两个条形体量并置,象征中西方文化交融并济,表达美术馆促进中西艺术文化交流的价值所在。
“南馆”致敬经典西方古典建筑艺术,精美的立面石材、雄伟的凯旋门、高耸的拱形壁龛,以超大的尺度感烘托深厚的艺术文化底蕴。
“北馆”造型底部在两端弧形向上抬起,营造巨大的挑空空间,立面采用了玻璃百叶,朦胧的玻璃百叶创造了灵动的艺术文化氛围,水平向开口及灵动的百叶角度变化如传统水墨画卷中的晕染笔触,交叠的层次如同运笔用墨的浓淡变化,同时也呼应了水面泛起的微微涟漪,表达出东方独特的山水意境。
南向外观
南侧入口
北向外观
北立面夜景
传承经典、序列空间
美术馆内部空间借鉴中西方著名美术馆中经典空间形式,通过分区、功能、规格和艺术类型定义不同的展厅,并充分考虑展陈的灵活性,通过分割展厅以适应不同的展览需求,能满足超大型主体展览及超高装置艺术展陈等需求。局部展厅针对特定展品设计为独特的内部空间,打造整体的观展体验。临时展览区域则设计成可利于改造和分隔的活动式展厅,方便随时更换展览内容。内部使用流线合理组织,通过平台和连廊连接各个功能分区,空间使用便捷合理,为观展者创造了沉浸连续的艺术体验。
共享大厅
共享大厅分析图
大厅连接四周各展厅分区,两侧通透的玻璃幕墙将城市和公园场景同时纳入,使大厅成为自由流动同时集约共享的美术馆核心空间。
大厅北侧置入大型平台,与室外空间连通,同时将空间上下划分,以有层次且互相连通的空间形态为美术馆提供大型临时展览空间。
通高展厅
三层平台
复合开放、多元包容
美术馆不仅是一个艺术载体,同时也是一个文化综合体。其承担的作用还包括艺术科研交流、公共文化教育、艺术品交易、文化产业运营等,设计中以一个水平展开的基座囊括与艺术相关的综合性内容。基座与周边以草坡和台阶自然衔接科学公园,在基座平台上设置开放的架空空间,形成体验艺术的入口空间。同时,宽广的平台也为市民群众提供大量休闲交流空间,体现本项目复合开放,多元包容的设计主题。
巨型悬挑下的室外剧场
下沉庭院及周边商业
项目图纸
一层平面图
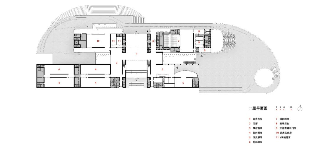
二层平面图
三层平面图
剖面图
项目信息:
项目地点:广东深圳光明科学城片区
项目单位:深圳市光明区委宣传部
建设单位:深圳市光明区建筑工务署
设计单位:中国建筑设计研究院
全过程工程咨询单位:
江苏建科工程咨询有限公司
深圳市鲁班建设监理有限公司
建筑面积:13.5 万平方米
客服
消息
收藏
下载
最近




























