查看完整案例

收藏

下载
© Michael Moran
迈克尔·莫兰
架构师提供的文本描述。The Social是位于弗吉尼亚州麦克莱恩(McLean)希尔顿(Hilton)全球总部的一个新的16,300个SF公共聚会空间和餐饮大厅,由CORE设计,是一个生机勃勃、熙熙攘攘的聚会空间,其核心是食物和饮料,它将功能性工作和团队合作空间与餐厅的情感结合起来。该设计是现代和温暖的精致细节和自然材料-一个希尔顿全球品牌的空间诠释。
Text description provided by the architects. The Social, a new 16,300 SF public gathering space and food hall at Hilton’s global headquarters in McLean, VA, designed by CORE, is a vibrant and bustling gathering space with food and beverage at its heart, balancing functional work and teaming spaces with the sensibilities of a restaurant. The design is modern and warm with refined details and natural materials – a spacial interpretation of the Hilton Worldwide global brand.
Text description provided by the architects. The Social, a new 16,300 SF public gathering space and food hall at Hilton’s global headquarters in McLean, VA, designed by CORE, is a vibrant and bustling gathering space with food and beverage at its heart, balancing functional work and teaming spaces with the sensibilities of a restaurant. The design is modern and warm with refined details and natural materials – a spacial interpretation of the Hilton Worldwide global brand.
© Michael Moran
迈克尔·莫兰
CORE的设计反映了酒店经营者著名的接待体验,同时鼓励正式和非正式的会面,并增加员工和游客之间的互动。一个定制设计的黄铜,钢和玻璃艺术作品提供了一个动态的视觉空间,同时教育客人的品牌和新的倡议。木材天花板面板和线性照明增加了视觉纹理,动态角度和一个非常大,但舒适的空间的比例感。
CORE’s design mirrors the hotelier’s renowned hospitality experience, while encouraging formal and informal meet-ups and increasing interaction among staff and visitors. A custom designed brass, steel, and glass art piece provides a kinetic visual in the space, while educating guests on the brand and new initiatives. The wood ceiling panels and linear lighting add visual texture, dynamic angularity and a sense of scale to this very large, yet comfortable space.
CORE’s design mirrors the hotelier’s renowned hospitality experience, while encouraging formal and informal meet-ups and increasing interaction among staff and visitors. A custom designed brass, steel, and glass art piece provides a kinetic visual in the space, while educating guests on the brand and new initiatives. The wood ceiling panels and linear lighting add visual texture, dynamic angularity and a sense of scale to this very large, yet comfortable space.
© Michael Moran
迈克尔·莫兰
这个多面项目包括10,000 SF底层内部和6,300 SF外部空间,需要为整个概念开发一个新的品牌标识,以及六个单独的快餐店。CORE实现了这一点,给出了定义功能和完成调色板的个别电台,他们的灵感来自他们提供的菜肴,使他们是独特的,同时保持平稳过渡到下一个。
The multi-faceted project with 10,000 SF ground-floor interior and 6,300 SF of exterior space required the development of a new brand identity for the concept as a whole, as well as six individual fast-casual food stations. CORE achieved this by giving defining features and finish palettes to the individual stations that were inspired by the cuisine they serve, allowing them to be distinctive while maintaining smooth transitions from one to the next.
The multi-faceted project with 10,000 SF ground-floor interior and 6,300 SF of exterior space required the development of a new brand identity for the concept as a whole, as well as six individual fast-casual food stations. CORE achieved this by giving defining features and finish palettes to the individual stations that were inspired by the cuisine they serve, allowing them to be distinctive while maintaining smooth transitions from one to the next.
© Michael Moran
迈克尔·莫兰
© Michael Moran
迈克尔·莫兰
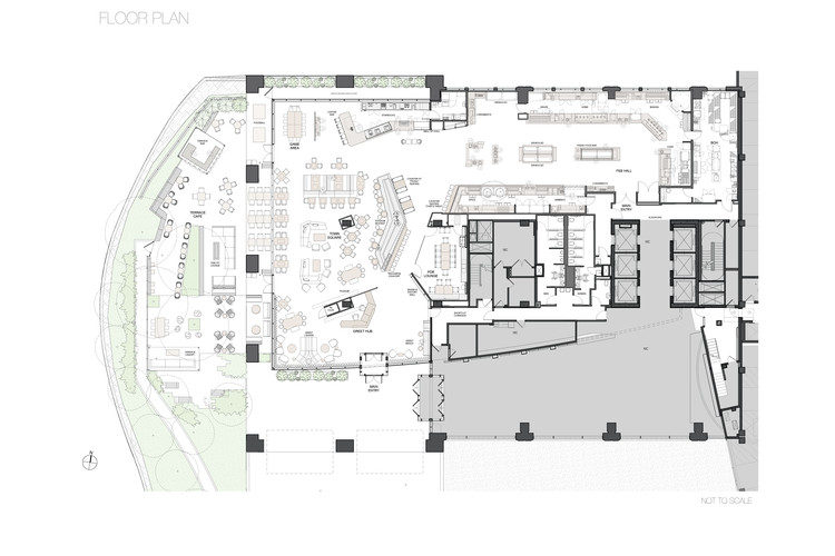
社交厅的餐厅包括:香料,提供国际风味的旋转菜单,特色是一个白色大理石和蓝色玻璃瓷砖背景的大黄铜椭圆形头罩。Sammie‘s,纽约风格的高级熟食店,包含黑白砖瓦和圆滑的黄铜口音。一个名为CHAR的烤架站,它将混凝土面板和发黑的钢制饰面结合起来.Mangia,意大利电台,特色是一个比萨饼烤箱,覆盖着红、黑、白的定制马赛克瓷砖。家,让人联想到成熟的烹饪风格,将手工制作的调色板与胡桃、图案瓷砖和淡淡的法国蓝色混合在一起。还有,用手工制作的沙拉,用现代的白色瓷砖,绿色的口音和天然的胡桃来唤起食物的清爽特征。此外,还有一系列自助服务的岛屿,这些岛屿补充了车站的服务,并提供了方便的抓斗和出行选择。
The Social’s food hall stations include: Spice, offeringa rotating menu of international flavors, featuring a large brass oval hood with a white marble and blue glass tile backdrop. Sammie’s, an upscale New York-style deli incorporating black and white brick tile and sleek brass accents. A grill station called Char, which combines concrete panels and blackened-steel finishes. Mangia, the Italian-focused station featuring a pizza oven clad in red, black and white custom mosaic tiles. Home, reminiscent of Provençal-style cooking, mixes a handcrafted palette with walnut, patterned tile and light French blue. And, Graze, serving crafted salads, uses modern white tile, green accents and natural walnut to evoke the refreshing characteristics of the food. There are also a series of self-service islands that complement the stations’ offerings and provide convenient grab and go options.
The Social’s food hall stations include: Spice, offeringa rotating menu of international flavors, featuring a large brass oval hood with a white marble and blue glass tile backdrop. Sammie’s, an upscale New York-style deli incorporating black and white brick tile and sleek brass accents. A grill station called Char, which combines concrete panels and blackened-steel finishes. Mangia, the Italian-focused station featuring a pizza oven clad in red, black and white custom mosaic tiles. Home, reminiscent of Provençal-style cooking, mixes a handcrafted palette with walnut, patterned tile and light French blue. And, Graze, serving crafted salads, uses modern white tile, green accents and natural walnut to evoke the refreshing characteristics of the food. There are also a series of self-service islands that complement the stations’ offerings and provide convenient grab and go options.
© Ron Ngiam
(c)罗恩·恩吉姆
社交网站提供了众多的室内和室外座位选择。内部的“城镇广场”结合了自定义展位、酒吧高度桌、公用桌、体育场座位和休息区。一系列可操作的玻璃隔板允许无缝地流向宽敞的室外露台,有各种壁画、座位和集合区。
The Social provides numerous indoor and outdoor seating options. The “town square” inside combines custom booths, bar height tables, communal tables, stadium seating and lounge areas. A series of operable glass partitions allow for seamless flow to the expansive outdoor terrace with al fresco seating and gathering areas.
The Social provides numerous indoor and outdoor seating options. The “town square” inside combines custom booths, bar height tables, communal tables, stadium seating and lounge areas. A series of operable glass partitions allow for seamless flow to the expansive outdoor terrace with al fresco seating and gathering areas.
Floor Plan
了解到这个空间也将被用来举办晚间活动,CORE公司采用了一个复杂的照明系统,可以在一天中进行调整,遵循昼夜节律,以促进健康和健康。照明系统也特别注意LED颜色温度,这是最适合食品显示和任务。
Understanding that the space would also be used to host evening events, CORE incorporated a sophisticated lighting system, programmed to adjust throughout the day, following circadian rhythms to promote health and wellness. The lighting system also pays special attention to LED color temperatures that work best for food displays and tasks.
Understanding that the space would also be used to host evening events, CORE incorporated a sophisticated lighting system, programmed to adjust throughout the day, following circadian rhythms to promote health and wellness. The lighting system also pays special attention to LED color temperatures that work best for food displays and tasks.
© Michael Moran
迈克尔·莫兰
© Michael Moran
迈克尔·莫兰
木材、纹理、金属和纺织品的精致组合创造了一个永恒而触觉的环境,将员工和游客与希尔顿品牌联系在一起。它不仅是一个合作的空间,也是一个餐厅和装配空间,具有复杂的后台功能;项目组件,符合核心的专业领域。
The refined composition of woods, textures, metals and textiles resulted in a timeless and tactile environment that connects employees and visitors with the Hilton brand. The Social is not only a co-working space, but also a restaurant and assembly space with complex back of house functionality; project components that fit right into CORE’s areas of expertise.
The refined composition of woods, textures, metals and textiles resulted in a timeless and tactile environment that connects employees and visitors with the Hilton brand. The Social is not only a co-working space, but also a restaurant and assembly space with complex back of house functionality; project components that fit right into CORE’s areas of expertise.
Architects CORE architecture + design
Location 7930 Jones Branch Drive, McLean, VA 22102, United States
Lead Architect Allison Cooke, Principal
Design Team Daniel Chapman, Kristen van Hise, Carly Lisnow, Daniel Mayo, Michael Borrisow, Marina Laurence
Area 16300.0 ft2
Project Year 2018
Photographs Michael Moran, Ron Ngiam
Category Restaurant
Manufacturers Loading...
客服
消息
收藏
下载
最近




























