查看完整案例

收藏

下载
© Shai Epstein
C.ShaiEpsteinEpsteinEpstein
架构师提供的文本描述。最初建于20世纪50年代,是为工人阶级建造的低成本住房,按照简单的社会思想,西南楼是位于特拉维夫社区之一的一栋排屋的一部分。今天,这个社区正在进行大规模的城市重建,允许居民规划和获得建筑扩建许可。因此,一层65平方米的住宅单元被改造成一个三层290平方米的单元,并有一个强制性的倾斜屋顶。这座房子坐落在一个独特的社区,有着丰富的绿色风景,广阔的步行区域和有限的车辆通道。
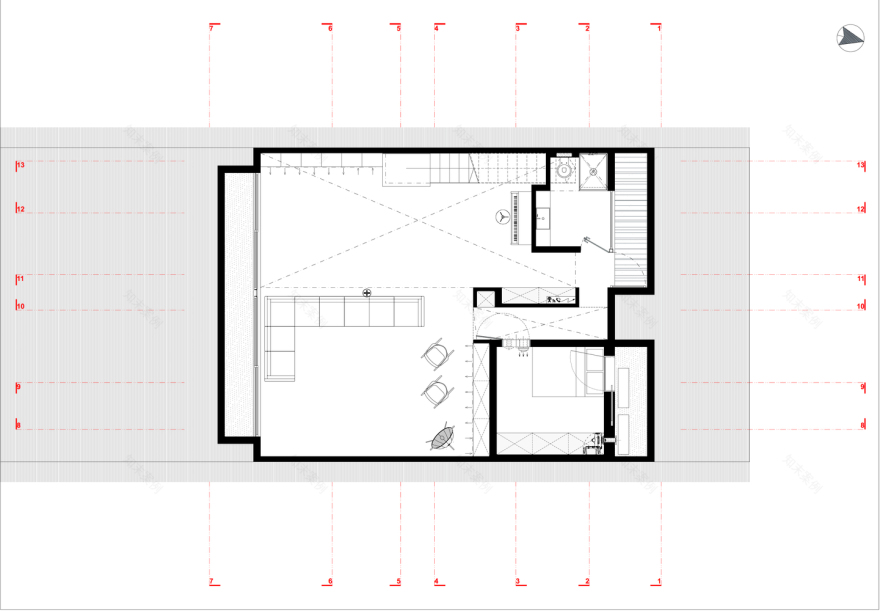
Text description provided by the architects. Originally built in the 1950’s as low-cost housing for the working class, in accordance with the social ideology of simplicity, the SW House is part of a row building situated in one of Tel Aviv’s neighborhoods. Today, this neighborhood is undergoing extensive urban renewal, which allows residents to plan and receive permission for building additions. Thus, a one-level 65 sqm residential unit is transformed into a three-level 290 sqm unit with an obligatory pitched roof. The house is located in a unique neighborhood with abundant green scenery, vast walking areas, and limited vehicle access.
Text description provided by the architects. Originally built in the 1950’s as low-cost housing for the working class, in accordance with the social ideology of simplicity, the SW House is part of a row building situated in one of Tel Aviv’s neighborhoods. Today, this neighborhood is undergoing extensive urban renewal, which allows residents to plan and receive permission for building additions. Thus, a one-level 65 sqm residential unit is transformed into a three-level 290 sqm unit with an obligatory pitched roof. The house is located in a unique neighborhood with abundant green scenery, vast walking areas, and limited vehicle access.
© Shai Epstein
C.ShaiEpsteinEpsteinEpstein
沿着一片遮荫的松林散步,通向房子。在该地区宁静的绿色花园和树林的启发下,我们的目标是设计一座相当长的狭小房子,它将延伸到朝北和南方对面的正面之间,并与周围环境进行对话。该设计的物理联系,绿色户外是通过众多的观点,从不同的领域,在房子内。在入口处有一个小的北方入口花园,作为通向房子的散步的延续。
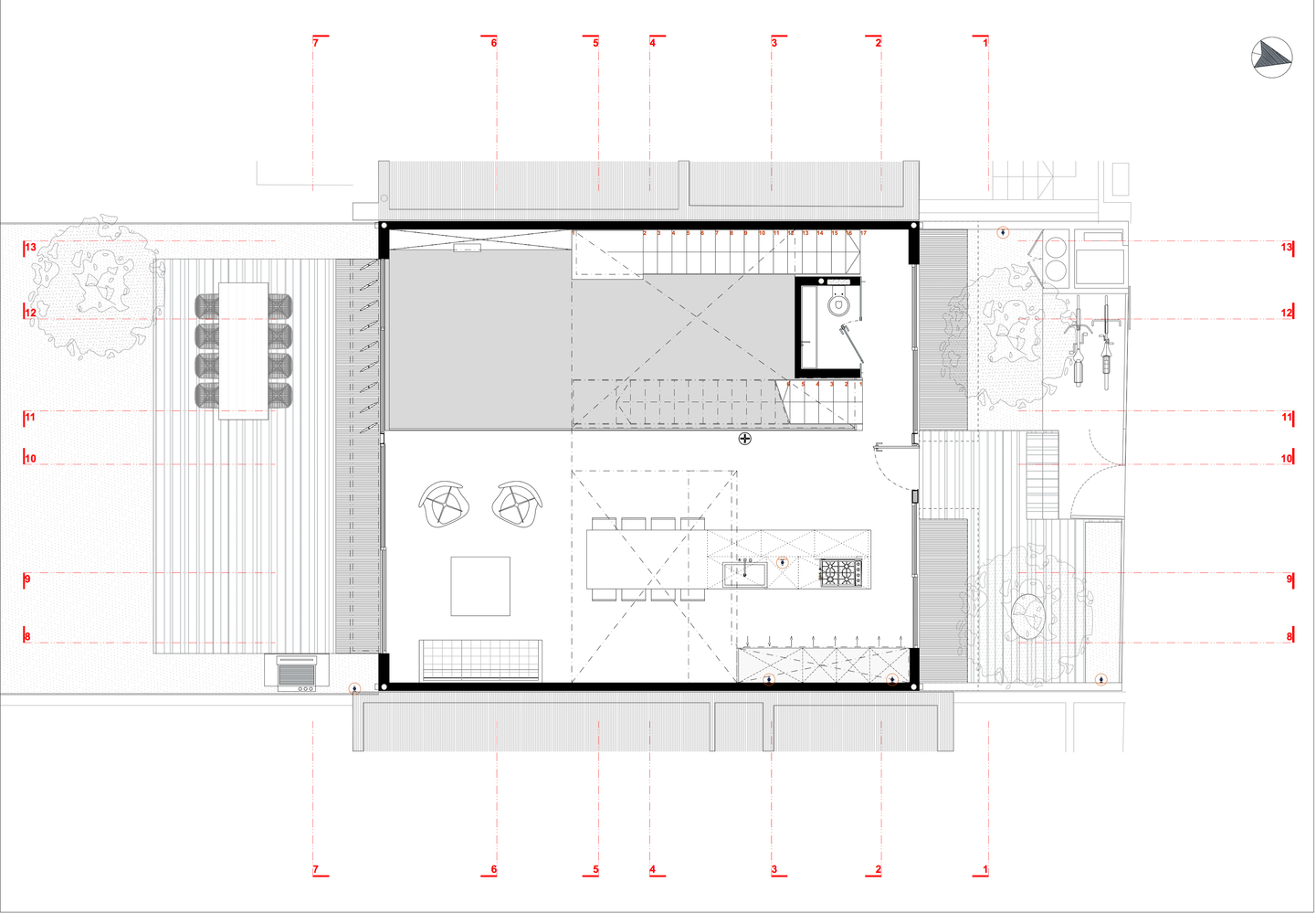
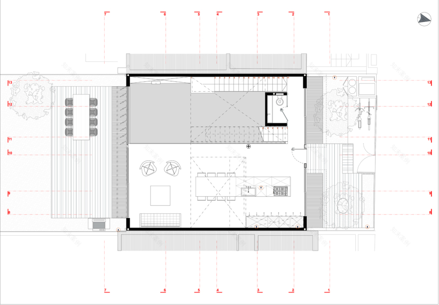
A stroll along a shaded pine grove leads to the house. Inspired by the area's serene green gardens and groves, the goal was to design a narrow house of considerable length, which would stretch between opposite facades facing North and South, and engage in dialogue with its surroundings. The design's physical connection to the green outdoors is achieved via numerous viewpoints from various areas inside the house. A small northern entry garden in the entrance level serves as a continuation of the stroll that leads to the house.
A stroll along a shaded pine grove leads to the house. Inspired by the area's serene green gardens and groves, the goal was to design a narrow house of considerable length, which would stretch between opposite facades facing North and South, and engage in dialogue with its surroundings. The design's physical connection to the green outdoors is achieved via numerous viewpoints from various areas inside the house. A small northern entry garden in the entrance level serves as a continuation of the stroll that leads to the house.
© Shai Epstein
C.ShaiEpsteinEpsteinEpstein
亲切的南方花园是由房子的戏剧性核心动画,从地下室的水平延伸到倾斜的屋顶,并强调了深蓝色的背景。从皮拉内西内部的灵感,核心空间提供暴露的循环沿楼梯和桥梁,以方便有趣的相遇和公共领域之间的关系在各个层次。一瞥家庭成员和客人经过,吃饭,娱乐,工作和交流,可以欣赏所有的房子楼层。
The intimate southern garden is animated by the house's dramatic core, which stretches from the basement level to the pitched roof, and is accented by a deep blue background. Taking inspiration from Piranesi’s interiors, the core space offers exposed circulation along staircases and a bridge that facilitates interesting encounters and relationships between the public areas on all levels. Glimpses of family members and guests passing by, eating, entertaining, working and communicating can be appreciated on all house floors.
The intimate southern garden is animated by the house's dramatic core, which stretches from the basement level to the pitched roof, and is accented by a deep blue background. Taking inspiration from Piranesi’s interiors, the core space offers exposed circulation along staircases and a bridge that facilitates interesting encounters and relationships between the public areas on all levels. Glimpses of family members and guests passing by, eating, entertaining, working and communicating can be appreciated on all house floors.
Section 10
第10节
至于私人空间,重点放在隐私和灵活性上。每个私人空间都配备有自己的一组动态垂直百叶窗,用于气候控制并与周围的城市绿景建立个人关系。众议院的南部由年轻一代主导。类似的卧室用于学习、穿衣和娱乐,包括一个私人的睡眠走廊,可以看到花园和房子的巨大核心。
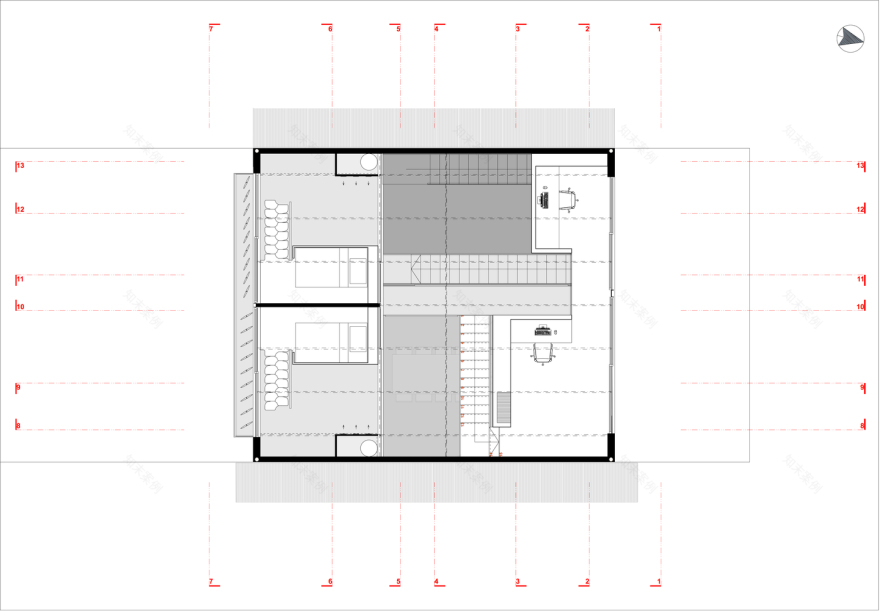
As for the private spaces, an emphasis is put on privacy and flexibility. Each private space is equipped with its own set of dynamic vertical louvers, used for climate control and creating a personal relationship with the surrounding urban green scenery. The house's south section is dominated by the younger generation. Similar bedrooms are used for studying, dressing and entertaining, and include a private sleeping gallery with a view of the garden and the house’s dramatic core.
As for the private spaces, an emphasis is put on privacy and flexibility. Each private space is equipped with its own set of dynamic vertical louvers, used for climate control and creating a personal relationship with the surrounding urban green scenery. The house's south section is dominated by the younger generation. Similar bedrooms are used for studying, dressing and entertaining, and include a private sleeping gallery with a view of the garden and the house’s dramatic core.
© Shai Epstein
C.ShaiEpsteinEpsteinEpstein
主卧室位于房子的北段,可以看到松树林的美景。倾斜屋顶下的开放空间工作区提供了一个令人叹为观止的核心视图。在整个规划过程中,客户端对日常工作进行了研究、分析和仔细的拆卸和重新组装。使用来自诗歌和戏剧媒介的工具来解释各种各样的日常场景、例程和遭遇,有些类似于由Piranesi激发的舞台布景。
The master bedroom is located at the house's north section, offering a wide view of the pine grove. The open-space work area under the pitched roof provides a breathtaking view of the core. Throughout the planning process, the clients' daily routines were studied, analyzed and carefully disassembled and reassembled. A wide range of daily scenarios, routines, and encounters were interpreted using tools from the poetry and theatre mediums, somewhat resembling a stage set inspired by Piranesi.
The master bedroom is located at the house's north section, offering a wide view of the pine grove. The open-space work area under the pitched roof provides a breathtaking view of the core. Throughout the planning process, the clients' daily routines were studied, analyzed and carefully disassembled and reassembled. A wide range of daily scenarios, routines, and encounters were interpreted using tools from the poetry and theatre mediums, somewhat resembling a stage set inspired by Piranesi.
© Shai Epstein
C.ShaiEpsteinEpsteinEpstein
Architects Arbejazz architecture studio
Location Tel Aviv-Yafo, Israel
Lead Architects Adi Wainberg
Area 290.0 m2
Project Year 2018
Photographs Shai Epstein
Category Refurbishment
Manufacturers Loading...
客服
消息
收藏
下载
最近



























































