查看完整案例

收藏

下载
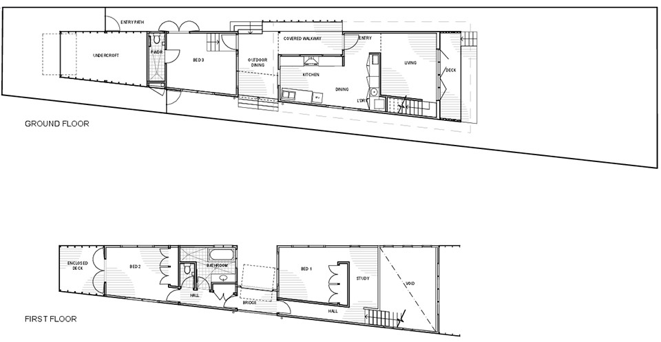
该项目是基于一个条件苛刻的场地而设计的:场地宽度只有5.5米,且西向的立面正对着一条铁路。建筑师最终决定将房屋分为两个体量,主要考虑到以下两个因素:一是需要构建一个庭院,在带来日光和自然通风的同时还要阻隔来自铁路的噪音;二是为了实现灵活的空间布局,使房屋可以变成三居室住宅,或拥有一个独立起居室的二居室住宅。
建筑的色彩与附近的建筑形成统一,以降低这一高而细的体量在视觉上形成的冲击。主立面的木制屏墙从远处看如同方形的网格,走近看则呈现为圆形图案。屏墙分布在建筑的东西两侧,在保证私密性的同时能够阻挡早晨和傍晚的太阳直射。屏墙的图案是借助电脑数控技术切割而成,并通过槽口实现连接,独立的连接结构可以在未来进行重复使用。木材的选择是为了减少对环境的破坏。
介于两个体量之间的中央空间是整个住宅的和核心地带,其中包括厨房和户外餐厅。位于最内部的主客厅区域向后院敞开,能够享受到来自东南方向的微风。
虽然建筑的面积有限,却提供了齐备的生活空间,并可以根据使用需求重新进行配置。该方案为21世纪的内城区住宅设计提供了一个灵活的示范,它展示了如何在一个条件苛刻的场地中营造功能齐全且经济实用的居住空间。
平面图
客服
消息
收藏
下载
最近




















