查看完整案例

收藏

下载
© Rob van Esch
c.Robvan Esch
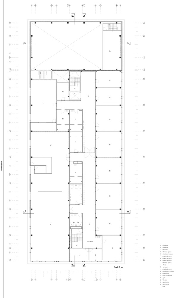
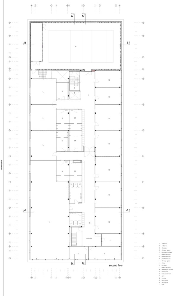
架构师提供的文本描述。我们为荷兰兹沃勒Zwartewater allee的Deltion学院培训学院设计了一座校舍。这座大楼的指定用途是为Veva培训课程提供住宿(安全和专业知识)。Deltion学院代表国防部提供相当于高等中等职业教育的培训。这座大楼有16间教室、各种实用房、一间配有专业厨房、一间健身房和一间健身房的食堂。此外,该大厦在底层有实用空间,设有汽车技术升降机桥和卡车车间。
Text description provided by the architects. We have designed a school building for Deltion College training institute at Zwartewaterallee in Zwolle, the Netherlands. The designated use of this building is to provide accommodation for the VEVA training course (safety and professional expertise). Deltion College provides this training on behalf of the Ministry of Defence at a level that equates to senior secondary vocational education. The building is home to, among other things, 16 classrooms, various practical rooms, a canteen with a professional kitchen, a fitness room and a gym. In addition, the building has a practical space at ground floor level featuring lift bridges for motor vehicle technology and a workshop for trucks.
© Rob van Esch
c.Robvan Esch
建筑总面积超过5000平方米。由于体育是训练的重要组成部分,所以11间大型更衣室和淋浴房对该建筑有利。设计的一个重要方面是培训机构的功能组织。建筑物内各种用途的安排,避免了互相滋扰,从而产生“平静”。
The total surface area of the building measures over 5000m2. Since sports form an important part of the training, the building benefits from 11 large changing and shower rooms. An important aspect of the design concerns the functional organisation of the training institute. The wide variety of uses within the building is arranged in such a way that mutual nuisance is avoided, thereby creating “calmness”.
© Rob van Esch
c.Robvan Esch
屋顶运动场:职权范围内的出发点是在建筑物周围建造3000平方米的运动场。因为这个起点,加上建筑所需的表面积,不适合现有的地块大小,所以我们最终想出了在12米高的建筑顶部安装一个1000平方米运动场的解决方案。这个运动场由一个25×40米的人工草皮球场组成,周围环绕着一个特地为这个项目设计和制造的型材和穿孔墙板。这创造了一个半透明的屏幕周围的运动场,作为一个挡风玻璃和防风林,同时保持运动员接触的环境在屋顶上。
Sections + Elevations
剖面高程
灵活性:因为我们认为学校建筑必须能够在其指定用途方面进行调整,而且这种用途今后可能会改变,因此,该建筑的准备和建造方式是为了促进这一变化。“灵活性”一词是设计的核心。所有的教室和实用室的设计方式,使墙壁可以很容易地移动到一个预定网格的不同位置。这种模块化的网格概念已经在有循环空间、天花板和幕墙的墙壁上实现。实用的房间的形状和尺寸的设计方式,使他们可以很容易地转换成教室,甚至办公室在未来。
Flexibility: Because we believe that a school building must be able to adapt in terms of its designated use and that this use can change in the future, the building has been prepared and built in a way to facilitate this change. The term ‘flexibility’ is central to the design. All classrooms and practical rooms have been designed in such a way that the walls can easily be moved to a different position in a predetermined grid. This modular grid concept has been implemented in walls with circulation spaces, the ceiling and the curtain wall. The shape and dimensions of the practical rooms are designed in such a way that they can be easily converted into classrooms or even offices in the future.
© Rob van Esch
c.Robvan Esch
预算:另一个显著的特点是整个项目是在有限的预算基础上设计和实施的。我们利用这一事实,从第一个设计草图,给建筑的力量,而不是接受这作为一个弱点。结构和系统管道都暴露了出来,从而增强了建筑物的强大特性。
Budget: Another distinctive feature is that the entire project was designed and implemented on a limited budget. We used this fact from the very first design sketch to give the building strength instead of accepting this as a weakness. Both the structures and system pipelines are exposed, thereby reinforcing the strong character of the building.
© Rob van Esch
c.Robvan Esch
Architects ARES architecten
Location Zwolle, The Netherlands
Lead Architects Sen Heesen
Area 5000.0 m2
Project Year 2017
Photographs Rob van Esch
Category Schools
Manufacturers Loading...
客服
消息
收藏
下载
最近




















