查看完整案例

收藏

下载
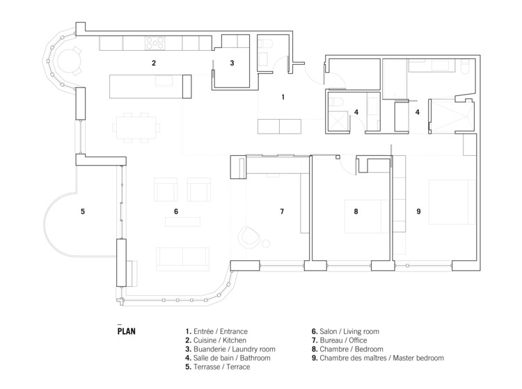
架构师提供的文本描述。该项目位于1980年代市中心的一座塔楼中。室内装修项目的目的是完全开放一个原本被分割的空间,并弥补公寓中心光线不足的问题。从入口处,空间被连接在一个反射不锈钢块周围,它的反射引起直线的轻微扭曲,同时在其上下文中反射光线和褪色。
Text description provided by the architects. The project is located in a 1980’s downtown tower. The interior renovation project aims to completely open a space originally partitioned and to compensate for the lack of light at the heart of the apartment. From the entrance, the space is articulated around a reflective stainless steel block, whose reflection causes a slight distortion of the straight lines, while reflecting the light and fading in its context.
一系列橡木镶板的滑动板给住宅的经典隔断带来了一种节奏,房间分布在走廊的两边。这些面板的灵活性允许间接日光进入走廊区域,并根据所需的隐私程度,使用房间的可能性增加一倍。因此,办公室偶尔会变成第二个客房。
A series of oak veneered sliding panels bring a rhythm to the classic partition of the dwelling, in which rooms are distributed on either side of the corridor. The flexibility of these panels allows indirect daylight to penetrate into the corridor area and multiplies the possibilities of use of the rooms, according to the degree of privacy required. Therefore, the office occasionally turns into a second guest room.
© Adrien Williams
(c)AdrienWilliams
© Adrien Williams
(c)AdrienWilliams
厨房,现在打开了客厅,从白色到深灰色,以清醒的色调区分开来。玻璃的使用与最大限度的反射和创造一个迷人的深度的想法是一致的。浴室的特点是色彩的接触,这与综合家具的虚荣心,带来了一个奇异的项目。
The kitchen, which now opens into the living area, is distinguished by sober colour tones, from white to dark gray. The use of glass for the backsplash goes along with the idea of maximizing reflection and creating a captivating depth. The bathrooms are characterized by touches of colours, which, together with the integrated furniture of the vanities, bring a singularity to the project.
© Adrien Williams
(c)AdrienWilliams
客服
消息
收藏
下载
最近






















