查看完整案例

收藏

下载
架构师提供的文本描述。P屋通常是一座古老的谷仓宝库。一座农场,位于斯提里亚西部葡萄园内的一座小山桥上,聚集着一座主楼和四个附属建筑,过去是传统的农场建筑。
Text description provided by the architects. House P is proverbially an old barn treasure. A farmstead situated on top of a hill bridge within the vineyards of western Styria assembling a main house and four annexes which used to be traditional farm buildings.
© Paul Ott
保罗·奥特
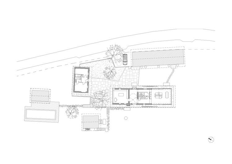
Ground floor plan
© Paul Ott
保罗·奥特
主楼一直是主要的住宅建筑,而旧谷仓则被改造成车库和仓库。而以前的稳定建筑以及其他农场建筑-以前用于生产和储存葡萄酒-正被重新用作客房、游泳池和健康之家。
The main house keeps being the main residential building, while the old barn has been adapted for garage and storage use. And the former stable building as well as the other farm buildings – previously used for the production and storage of wine - are being reused as guest house, pool and wellness house.
© Paul Ott
保罗·奥特
客服
消息
收藏
下载
最近















