查看完整案例

收藏

下载
© Giovanni Bortolani
(Giovanni Bortolani)
架构师提供的文本描述。Fondazione Golinelli是一个促进公民在所有知识领域负责任的文化成长的私人基金会。最重要的目标之一是在一个日益全球化、复杂、多文化和不可预测的世界中,为青年人提供创新和竞争方式所需的方向和工具。
Text description provided by the architects. Fondazione Golinelli is a private foundation that fosters the responsible cultural growth of citizens in all fields of knowledge. One of the most important aims is to provide young people the orientation and tools required for an innovative and competitive way in an increasingly globalized, complex, multicultural and unpredictable world.
© Giovanni Bortolani
(Giovanni Bortolani)
该项目的目的是教育人们了解艺术的科学方面和科学的艺术直觉,在创造性思维的实施过程中发挥其亲和力。
Architecture The aim of the project is to educate people about the scientific aspects of art and the artistic intuition of science, bringing out their affinities in a perspective of implementation of creative thinking.
© Giovanni Bortolani
(Giovanni Bortolani)
Axonometric
© Giovanni Bortolani
(Giovanni Bortolani)
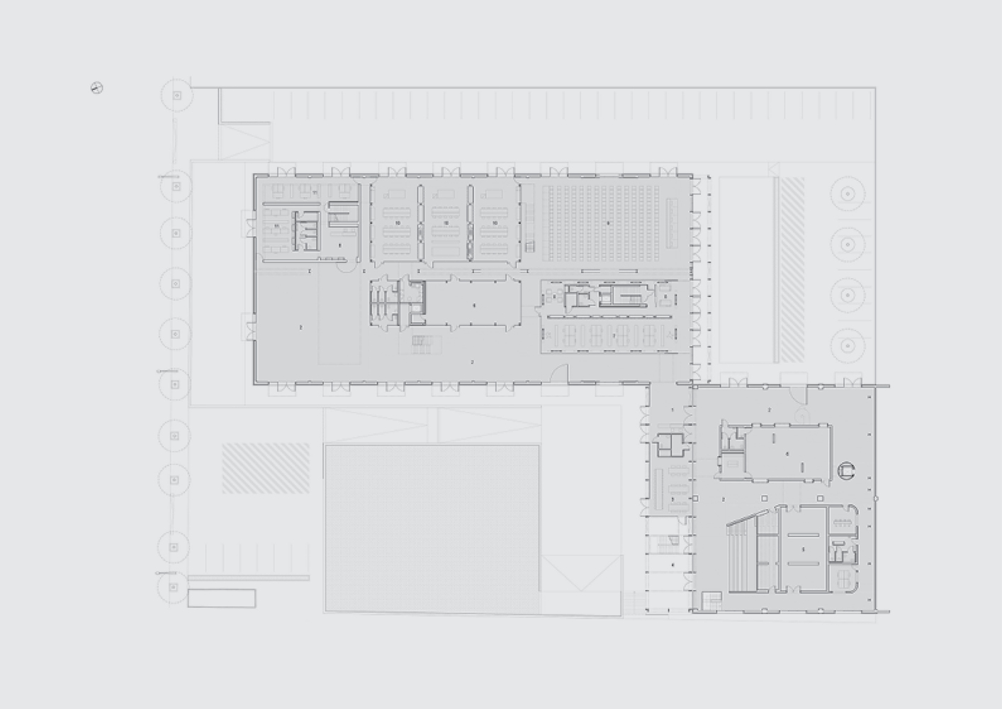
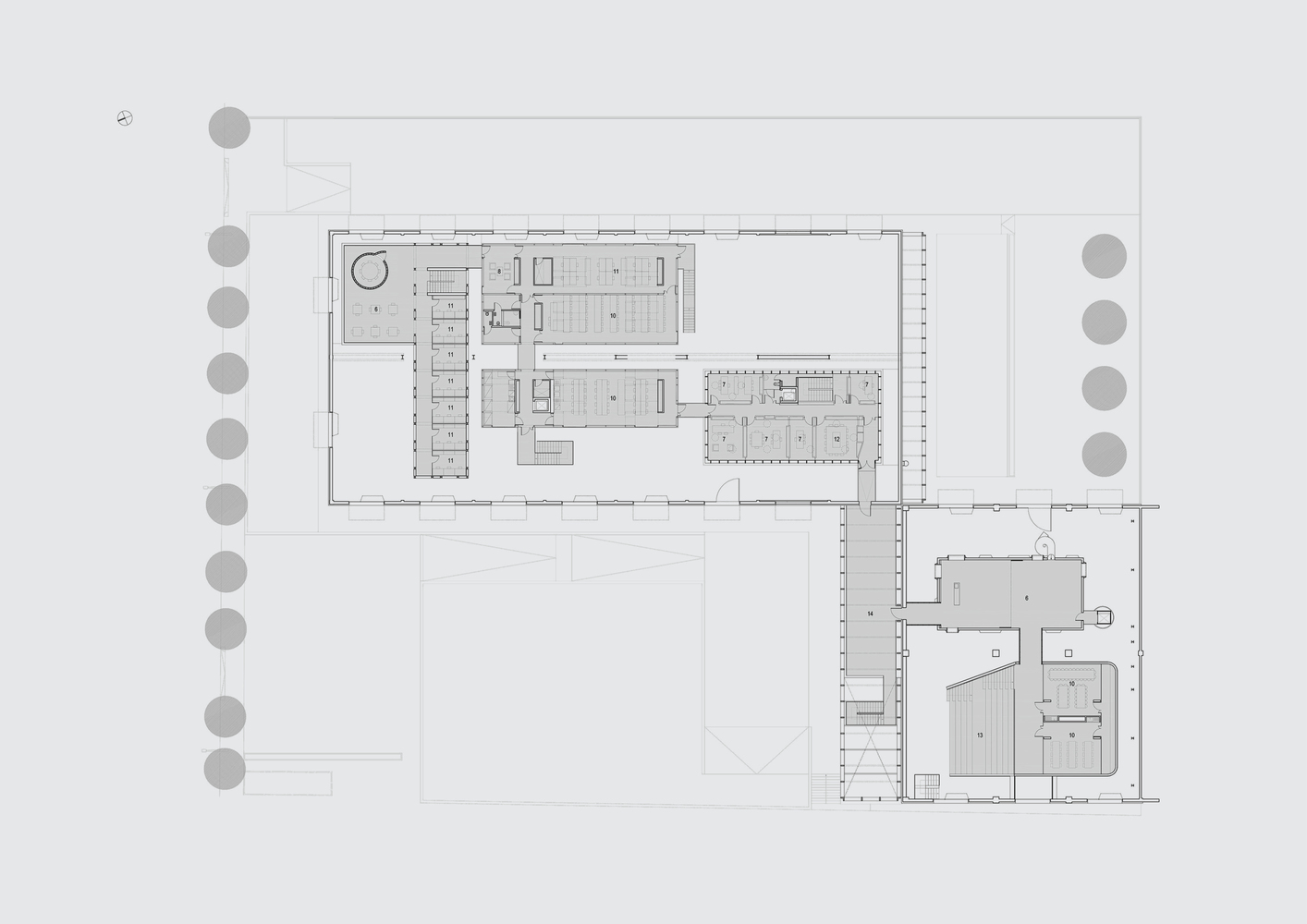
Opificio被看作是一个城堡的隐喻,所有的活动都以理想容器的形式出现,是我们城市环境中象征性场所的图标,比如市政厅、学校、代表城市生活所需工作的工作场所。然后是公共空间,可以容纳多种活动和功能。通过共享服务维持社会生活。
The Opificio is seen in terms of a citadel metaphor in which all the activities take on the form of ideal containers, icons of symbolic places in our urban environment, like the City Hall, the School, the Worksite that represents the ongoing work required by a City for its life.Then there is public space, ready to host multiple activities and functions, to sustain social life by means of shared services.
© Giovanni Bortolani
(Giovanni Bortolani)
© Giovanni Bortolani
(Giovanni Bortolani)
其结果是一个具有亲密维度的体系结构,与理想容器中发生的学习和工作相关联,以及一个位于活动连接处的关系系统。这种开放性的特点导致设计了一个具有“地方外部”的空间,翻新了一座有背景的现有工业建筑,并通过开放的工作模式与世界联系在一起,形成了一个“全球内部”。
The result is an architecture with an intimate dimension, connected with the study and work that happen inside the ideal containers, and a relational system positioned at the connections of the activities. This character of openness had led to the design of a space with a “local exterior”, renovating an existing industrial building that is contextualized, and a “global interior”, interconnected with the world through open work modes.
© Giovanni Bortolani
(Giovanni Bortolani)
Architects diverserighestudio
Location Via Paolo Nanni Costa, 14, 40133 Bologna BO, Italy
Lead Architects Simone Gheduzzi, Nicola Rimondi, Gabriele Sorichetti
Area 4500.0 m2
Project Year 2015
Photographs Giovanni Bortolani
Category Cultural Center
Manufacturers Loading...
客服
消息
收藏
下载
最近


































