查看完整案例

收藏

下载
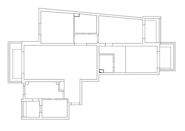
户型优化,通过墙体的拆改,创造更多的可能性,于设计师而言是设计中有趣的环节,于业主而言是最为经济实惠的事情。毕竟,省出一平米的空间亦或是扩大空间的视觉,都等同于乘以房屋的单价。所以请你为你的设计师准备好结构图纸。
小空间、大视觉、营造舒适的居住体验。
既满足居住的功能,又维护了居住者的尊严。
与客厅相连的南阳台,做为阳光充足之处,成为休闲生活的重要组成部分。
入户玄关处,利用不同材质的搭配,赋予机能并串联区分空间,延伸视线及创造出光影及空气的流动。
从图纸不难看出,厨房区域的原结构墙体几乎全部拆除。重新整合后,留出足够大的空间做了入户衣帽间的同时扩大了厨房面积。
客服
消息
收藏
下载
最近



















