查看完整案例

收藏

下载
该建筑连接着一个地方的身份并将其投射到未来。这个新的存在总结了一种非常看重其姿态的文化的价值观。如今的首尔大都市建设使我们有机会恢复人工规模的建筑体积,并诠释一种文化精神。一个空旷的城市街区有人居住,在严格的现有城市体系之间被挤压生存,仿佛变成了一棵化石树,在其几何边缘的空隙中呼吸,并扩展了有限的城市空间。
建筑的宏观尺度凝聚在新生物体设计的空隙中,由于立方网格的建模而显出生机。它几乎看不见,但实际有形。它生成的各种元素既能让居民获得舒适感,又增强了居民与周围环境的联系。这个新的可居住的画廊呈现为一个现代的都市城堡,生活空间由生产空间支撑。低层的专用空间滋养着人们的智力享受。
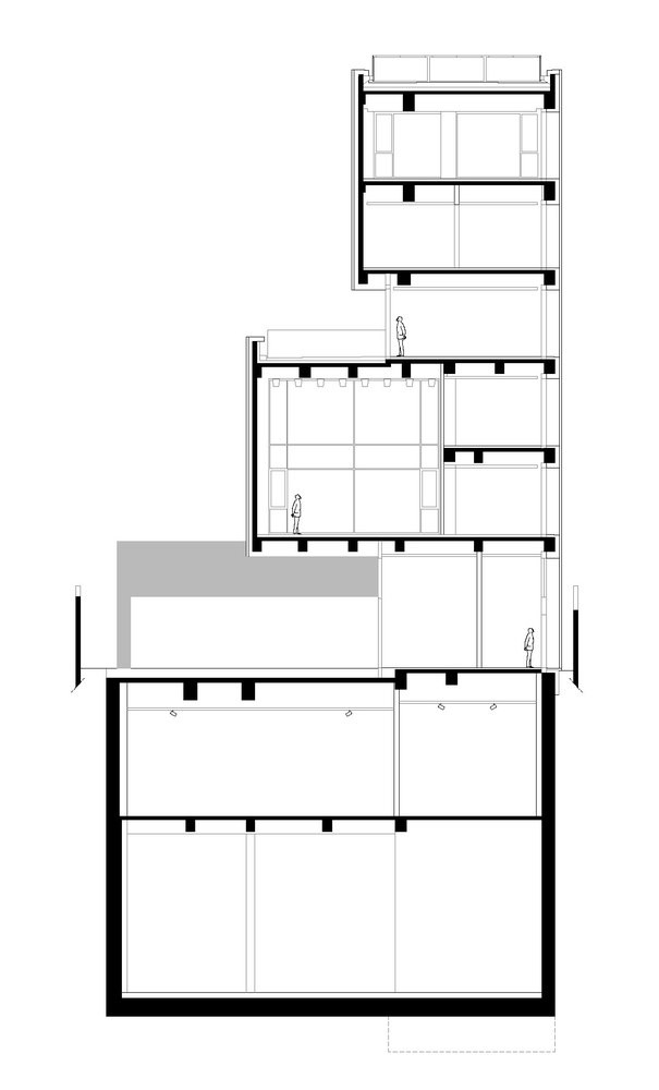
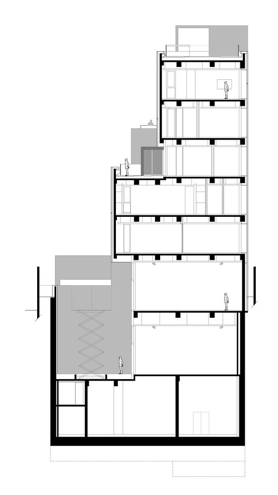
它由一系列空间组成,包括封闭的和开放的空间,充实的和虚空的空间,被压缩的和解压缩的空间。它形成一个感知地图,并将其转化为具有可用性并相互关联的各种独特时刻。空间的延伸扩张,从相邻到更远,带来一种空间序列。出于一种象征性力量和平衡的考虑,立方体形态被选择作为主要元素,没有受到设计规则的约束。
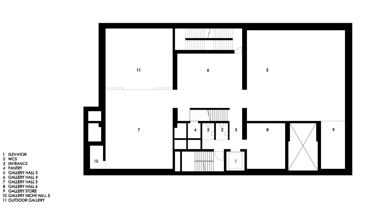
建筑师的角色不是“绘制”项目,而是通过在游览这些空间并停留在空间之内所形成的富于各种想象的时间来管理不同元素(这个立方体树)的空间组织。负一层的大型展览空间揭示了关于积极与消极的感知。它挖掘出一个超现实的维度,为城市增加了浮动般的立方体,将城市土壤和光线带到了游客的脚下。
在这个新建的景观中,不同材料的交替运用带来了不同表达,包括波纹砖的编织感和白色光滑墙壁形成的悬浮感。展览空间的建筑语言往往是中性的。我们专注于存在于这些空间中的艺术作品的享受,暂停在冥想和行动之间。展览空间很平静,它们的主要形式表达了一种从现实撤退,参与到由个体艺术家通过艺术作品展示的世界观的感觉。
客服
消息
收藏
下载
最近

























