查看完整案例

收藏

下载
© Mario Wibowo
马里奥·维博沃
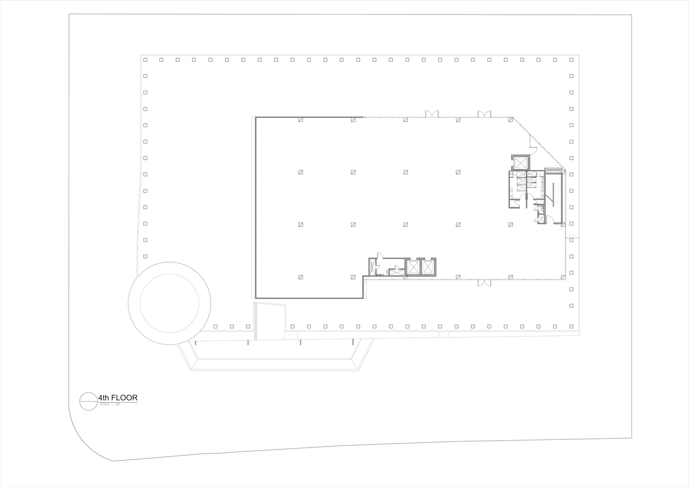
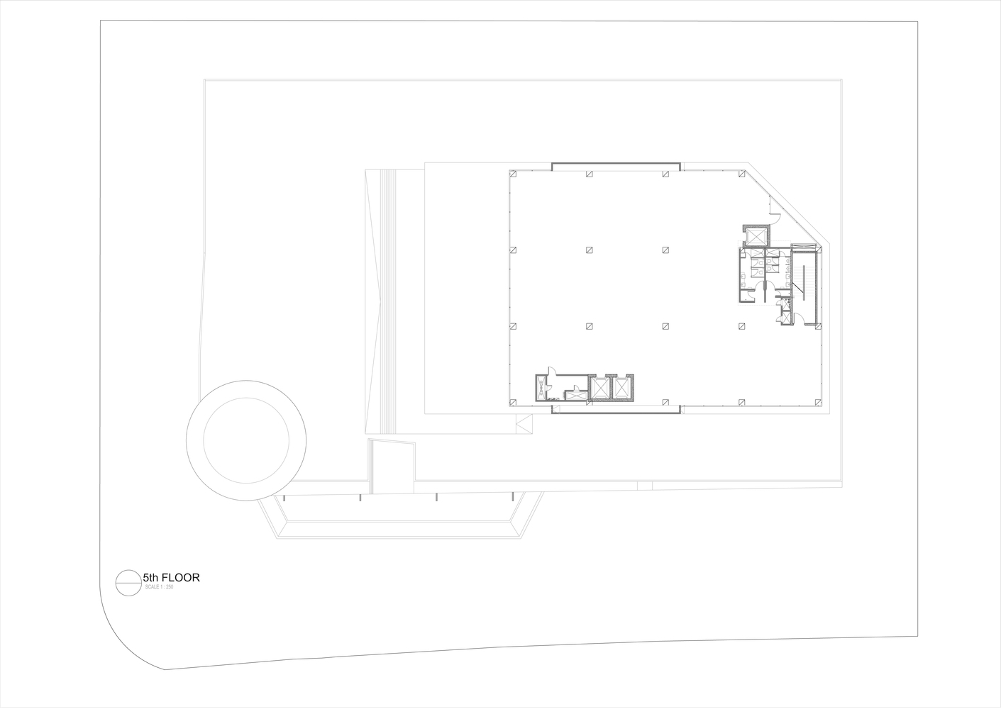
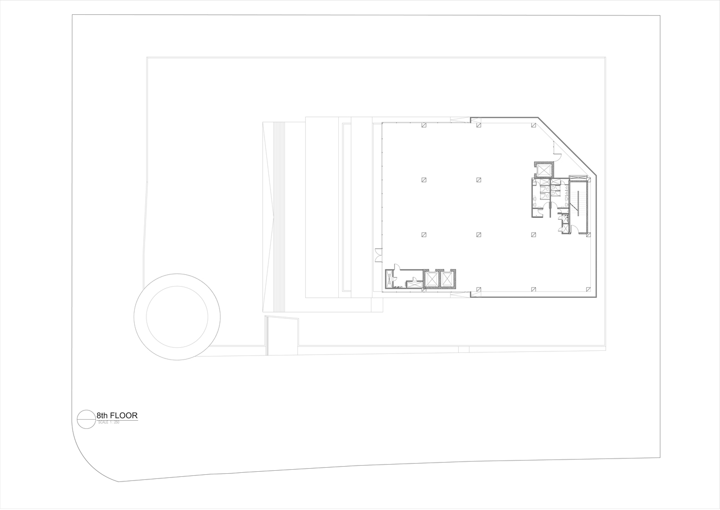
架构师提供的文本描述。客户想要作为展厅和办公室的建筑物,以满足需求和商业客户。而且在这座建筑的顶部也开放供租用的办公室。ANDParsitek作为被信任来处理该项目的建筑顾问,致力于创建具有客户业务代表性的建筑,但仍然可以对热带气候做出反应,并从足够高的建筑中容纳。热带的,充满活力的,现代的,标志性的组合。
Text description provided by the architects. Clients want buildings that serve as showrooms and offices that which accommodate the needs and business clients. And Also on the top of this building also open for rented office. ANDParsitek as architectural consultant trusted to handle this project seeks to create buildings that can be seen representative with the client's business, but can still respond to the tropical climate and accommodate from the high enough building. A combination of tropical, dynamic, modern, iconic.
© Mario Wibowo
马里奥·维博沃
建筑物的质量成为我们在这方面的重点之一。这就是为什么建筑本身创造了标志性的形式和动态的气氛。从功利的角度看,这种形式也呈现了由玻璃和固体隔墙两种材料组成的立面。这两种材料的结合也与具有防热防雨功能的层状材料相结合,增强了本工程的热带观念。此外,建筑师设计的标志性形式使这座建筑更易于维护。
The mass of the building become one of our focus point to in this area. That is why the building itself created the iconic form and dynamic atmosphere. From the utility perspective, this form also presenting the facade which combined two material: glass and solid partition. The combination of these two material also mixed with the layered material which have function as protection to the heat and rain, enhance the tropical concept of this project. In addition, the iconic form designed by the architect makes this building easier to maintain.
在实施方面,整个建筑的立面被GRC和铁架包围着。这对设计师来说是一个挑战,当他们开始做详细的描述时,车间的流程要在现场安装GRC。困难的出现是因为几乎70%的GRC模式在一个和另一个之间是不一样的。
In terms of implementation, the facade of this building as a whole is surrounded by GRC and iron frame as its construction. This is a challenge for designers when they start doing detailed depiction, the workshop process to the installation of the GRC in the field. The difficulty arises because almost 70% of the GRC pattern is not the same between one and the other.
© Mario Wibowo
马里奥·维博沃
Architects ANDParsitek
Location Jl. Kapten Soebijanto Djojohadikusumo, Kavling Sunburst Blok CBD II No.12, BSD City, Serpong, Lengkong Gudang, Serpong, Kota Tangerang Selatan, Banten 15322, Indonesia
Lead Architects Andi Pratama
Area 11700.0 m2
Project Year 2015
Photographs Mario Wibowo
Category Office Buildings
Manufacturers Loading...
客服
消息
收藏
下载
最近





























