查看完整案例

收藏

下载
© Rafael Soldi
拉斐尔·索尔迪
棚式建筑
SHED Architecture & Design, together with interior designer Jennie Gruss, gave this 1957 midcentury home—originally designed by PNW architect, Arnold Gangnes—a fresh update for a young family in Seattle, Washington. The design team set out to restore the home’s midcentury elements back to their original intent, while also integrating some of the firm’s own modern details.
© Rafael Soldi
拉斐尔·索尔迪
最初,房子的两层是镜像的,这是20世纪50年代常见的建筑方法。由于这个原因,棚屋没有做任何重大的结构变化,而是更新了厨房、浴室和卧室,使之更好地符合家庭的生活模式。
Originally, the two floors of the home were mirrored, which was a common architectural approach in the 1950s. For this reason, SHED did not make any major structural changes but instead updated the kitchen, bathrooms and bedrooms to better align with the family’s living patterns.
First floor plan
第一层平面图
在主地板上,统一的支柱提供了横向强度和一条基准线,从入口到厨房组织了不同的通道。厨房是更新的栗色层压板橱柜从山毛榉树木制品,因为业主想要一个流行的颜色。客厅和餐厅看到的硬木地板和入口的绿色石板地板都是原始的,但是地板在房子的其他地方被替换了。
On the main floor, the unifying strut provided lateral strength and a datum line that organized different passageways from the entry to the kitchen. The kitchen was updated with Maroon laminate cabinets from Beech Tree Woodworks because the homeowners wanted a pop of color. The hardwood floors see in the living room and dining room is original as well as the green slate floor in the entry but flooring was replaced elsewhere in the house.
© Rafael Soldi
拉斐尔·索尔迪
主套房最初是两间卧室,经过改造后,其中一间卧室变成了主浴室,其中有一间浮着的梳妆台和开放式淋浴。房主想在主地板上建一间化妆间,但由于空间有限,所以在主浴室外建立了一个单独的厕所隔间,以满足这两种用途。
The master suite, originally two bedrooms, was modified by transforming one of the bedrooms into the master bath, which features a floating vanity and open shower. The homeowners wanted a powder room on the main floor but there were space limitations so SHED created a separate toilet compartment off the master bath to serve both uses.
© Rafael Soldi
拉斐尔·索尔迪
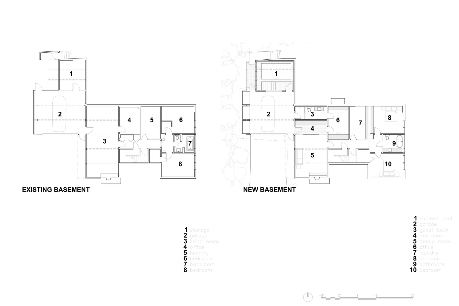
在底层,舍尔修改了车库的入口,创建了一个专用的泥房,使用一个木幕(室内设计),在不抑制光线的情况下,将弯曲/额外空间与入口分开。他们还把一个旧工具棚改造成了一个水池-房主的目标之一-由于脚印有限,这是很有挑战性的。
On the ground floor, SHED modified the entry from the garage and created a dedicated mud room using a wood screen (designed in house) to separate the flex/bonus space from the entry without inhibiting light. They also transformed an old tool shed into a pool—one of the homeowner’s goals—which was challenging due to the limited footprint.
© Rafael Soldi
拉斐尔·索尔迪
Architects SHED Architecture & Design
Location Seattle, United States
Lead Architects Thomas Schaer, Chris Phillips
Interior Design Jennie Gruss
Area 2250.0 ft2
Project Year 2017
Photographs Rafael Soldi
Category Renovation
Manufacturers Loading...
客服
消息
收藏
下载
最近
























