查看完整案例

收藏

下载
© Manoo Studio
c.Manoo Studio
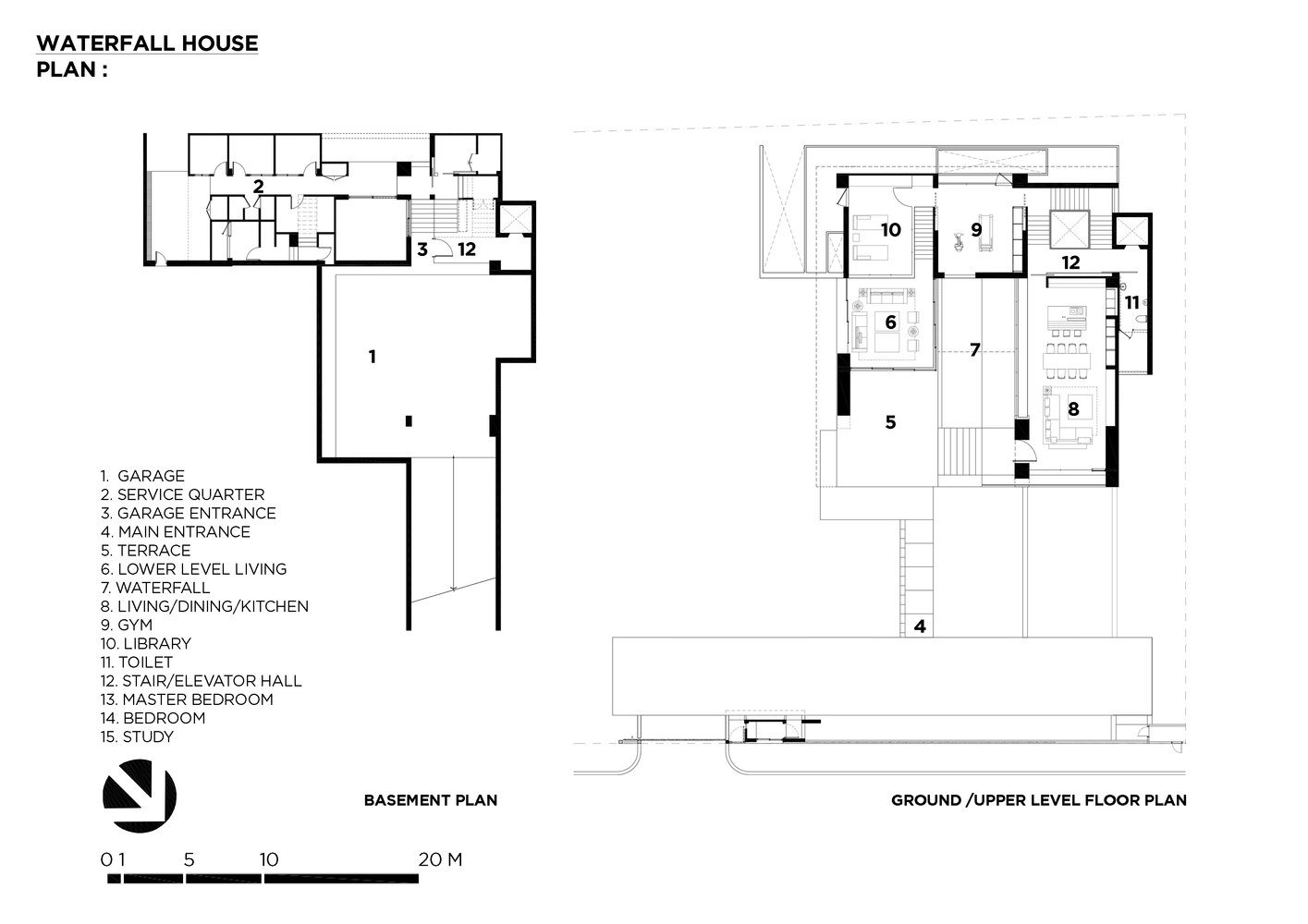
架构师提供的文本描述。“瀑布屋”的名字来源于位于房屋中心的瀑布功能。这个瀑布的特点是一个分层设计的结果,目的是在视觉和可访问性两个方面的生活空间之间的联系。瀑布的坡面具有分割和连接两种功能。
Text description provided by the architects. The name “Waterfall House” comes from the waterfall feature that locates at the center of the house. This waterfall feature is a result of a split-level design which aims to the connection in both visual and accessibility aspects between living spaces. The sloped surfaces of the waterfalls have two functions, dividing and connecting.
© Krisada Boonchaleow
(Krisada Boonchareow)
在分割功能上,倾斜楼板使停车空间与下层生活空间之间的半层分离成为可能,没有浪费空间。作为连接功能,斜坡成为连接上下居住空间的一个宜人的瀑布。两个居住空间之间的半水平差异提供了活动的分离,没有距离或封闭的墙。中央与瀑布开放,允许视觉连接上一层和气流,这是必要的热带房屋。
For dividing function, the sloped slab makes the half-level separation of parking space and lower level living space possible with no wasted space. For connecting function, the slope becomes a pleasant waterfall that links the lower and upper living spaces. The half-level difference between two living spaces provides separation of activities without distance or closed wall. The central opening with the waterfalls allows a visual connection to the upper floor and the air-flow which is necessary for a tropical house.
© Krisada Boonchaleow
(Krisada Boonchareow)
© Krisada Boonchaleow
(Krisada Boonchareow)
瀑布给周围的空间带来了凉爽和宁静的气氛。前面开阔的露台与一个大跨度的结构创造了一个独特的入口体验。这一覆盖的空间为室内客厅提供了良好的遮阳效果。房子的特征简单地反映了连接居住空间的概念,并通过连续折叠的白色表面直接表达了每个空间的不同体积。
The waterfalls bring in a cooling and tranquil atmosphere to the surrounding space. The front open-terrace with a wide span structure creates a unique entrance experience. This covered space provides good shading for the inner living room during late mornings and afternoons. The character of the house simply reflects the concept of connecting the living space and directly express the different volume of each space through the continuous folding white surface.
© Krisada Boonchaleow
(Krisada Boonchareow)
Architects Architects49 House Design Limited
Location Bangkok, Thailand
Lead Architect Woranol Sattayavinij
Area 900.0 m2
Project Year 2018
Photographs Krisada Boonchaleow, Manoo Studio
Category Houses
Manufacturers Loading...
客服
消息
收藏
下载
最近








































